Energieeffizient auf einer Ebene, QNG Förderfähig, inklusiv 855 m² Grundstück in 17168 Levitzow
Panoramablick ins Grüne
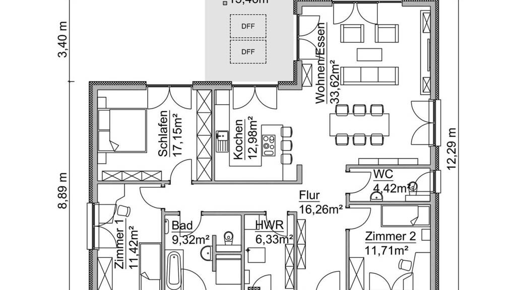
Der Winkelbungalow SH 147 WB lassen die beiden Panoramaverglasungen über Eck viel Licht in den Wohnraum, sodass er wie eine Galerie anmutet – was die Kathedraldeck zudem verstärkt.
ERST BAUEN - DANN ZAHLEN!
Es handelt sich hierbei um ein projektiertes, noch nicht fertig gestelltes Haus.
Selbstverständlich sind individuelle Änderungen (z.B. am Grundriss) problemlos umsetzbar.
Der Gesamtpreis setzt sich zusammen aus:
° Haus - SH 147 WB KfW 40 - 309.090,00 € ° Grundstück (externer Anbieter) - 855 m² - 76.900,00 €
Badezimmer: Badewanne, Bad mit Dusche, Bad mit Fenster
Gäste-WC
Fenster: Kunststoff
ERST BAUEN – DANN ZAHLEN ! Bei uns zahlen Sie erst, wenn Ihr ScanHaus steht.
Mit einer absoluten Festpreisgarantie sind Sie auf der sicheren Seite.
IInklusive folgender Ausstattungsmerkmale:
° inkl. Planungskosten ° inkl. Thermobodenplatte inkl. 20 cm Erdarbeiten u. Mehrspartenhauseinführung ° Estrich im gesamten EG ° Putzfassade inkl. Wärmedämmverbundsystem ° Fußbodenheizung im EG sowie modernster Luft/Wasser/Wärmepumpe ° 3-fach-verglaste Kunststoff-Isolierfenster inkl. Grundlüftungssystem ° komplett fertiger Innenausbau ° Innentüren inkl. Drückergarnituren ° Sanitärelemente für Hauptbad mit Badewanne, Waschtisch, WC, Bodengleiche Dusche und inkl. Handtuchheizkörper sowie Gäste-WC ° Blower Door Test
° NUR Wand- und Bodenbeläge sowie Maler- und Spachtelarbeiten in Eigenleistung.
Grundrisse
Verschaffe dir einen genauen Überblick über die Raumaufteilung.
Bausubstanz und Energie
Möchtest du Details zum Energieverbrauch?
Zustand der ImmobilieNeubau, Fertighaus, Projektiert
HaustypKfW 40
HeizungsartFußbodenheizung
EnergieträgerLuft-/Wasser-Wärmepumpe
Preisdetails
Kaufpreis
385990 €385.990 €
2.618,83 €/m²
Provision für Käufer
provisionsfrei
Geschätzte Gesamtkosten
416.869 €1
Kaufpreis
385.990 €
Kaufnebenkosten
30.879 €
2
Notarkosten (1,5%)
5.790 €
Grunderwerbsteuer (6%)
23.159 €
Grundbucheintrag (0,5%)
1.930 €
1Der angezeigte Wert ist eine automatisch berechnete Schätzung von immowelt.
2Bei den Angaben handelt es sich um ortsübliche Werte. Individuelle Kosten können abweichen.
Lage
An der Rohrwiese, Levitzow, Sukow-Levitzow (17168)
Levitzow ist eine Gemeinde im Landkreis Rostock in Mecklenburg-Vorpommern. Die Gemeinde wird vom Amt Mecklenburgische Schweiz mit Sitz in der nicht amtsangehörigen Stadt Teterow verwaltet. Östlich von Levitzow verläuft das Tal der oberen Peene. Der Südostteil des Gemeindegebietes liegt im Naturpark Mecklenburgische Schweiz und Kummerower See.
Zur Gemeinde Levitzow gehören die Ortsteile Sukow- Levitzow, Sukow-Marienhof und Pohnstorf. Die Ortsteile Levitzow und Marienhof liegen an der Verbindungsstraße von Teterow nach Gnoien, im Nachbarort Thürkow besteht Anschluss an die Bundesstraße 108 (Teterow Rostock). Der nächste Bahnhof befindet sich im 10 km entfernten Teterow. Das Grundstück befindet sich in einem kleinen Baugebiet in Levitzow. Die Erschließung ist bereits abgeschlossen und die Hochbaureife ist gegeben. Baubeginn sofort möglich. Voll erschlossen.
Weitere Informationen
Sonstiges
ScanHaus Marlow ist nicht der Eigentümer des im Angebotspreis enthaltenen Grundstücks. Dieses wird von einem externen Anbieter veräußert. Ein sofortiger Baubeginn ist möglich.
Die in dieser Anzeige dargestellten Abbildungen enthalten zum Teil aufpreispflichtige Sonderausstattungen.
Profitieren Sie von einem der gesündesten und erfahrensten Unternehmen in der Branche! Auch dieses Jahr, wurden wir wieder mit der Bestnote im Bereich Unternehmensliquidität ausgezeichnet! BESSER GEHT ES NICHT!
Ihr Vorteile bei ScanHaus auf einen Blick ° Sie zahlen Ihr Haus erst nach der Endabnahme ° Sie erhalten von uns eine 18-monatige Festpreisgarantie ° Bei ScanHaus Marlow erhalten Sie alles "aus einer Hand" ° Jahrzehnte lange Erfahrung im Hausbau ° eigene Architekten ° wir verwenden ausschließlich Markenprodukte von deutschen Herstellern ° keine ausgelagerte Produktion - alle Arbeiten werden in unserem Werk in Marlow (Mecklenburg- Vorpommern) durchgeführt
Wir führen Sie sicher durch das unbekannte Gewässer "Hausbau", denn ScanHaus Marlow ist Ihr Lotse auf dem Weg zu Ihrem Traumhaus. Sie genießen umfangreiche Garantien und einen aufmerksamen Kundenservice.
Nicht das passende Haus für Ihre Bedürfnisse? Nicht das passende Grundstück? Nicht Ihr gewünschtes Budget?
Wir finden eine individuelle Lösung für Sie und beraten Sie gerne kostenlos und unverbindlich. Finanzierungsanfragen ebenfalls möglich.
Kontaktieren Sie uns gerne jederzeit unter 038221-40032 bzw. 0152-09309160.