

Wohnung zum Kauf95000 €1.397 €/m²3 Zimmer • 68 m² • 11. Geschoss
95000 €
1.397 €/m²
3 Zimmer • 68 m² • 11. Geschoss
Knittelfeld: neu renovierte 3 Zimmer Stadtwohnung mit Weitblick, in zentraler Lage!
Merkmale
- 11. Geschoss
- Personenaufzug
- Gäste-WC
- Bad mit Dusche
- Bodenbelag: Fliesen, Laminat
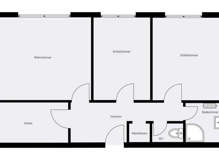
Grundrisse
Grundrisse
1 / 1
Virtueller Rundgang
3D tour

Realisiere Dein Projekt
Bausubstanz und Energie
Heizwärmebedarf (HWB)
C
Gesamtenergieeffizienz (fGEE)
C
- Baujahr1969
- EnergieträgerFernwärme
Preisdetails
Kaufpreis
95000 €
1.397,06 €/m²
Provision für Käufer
3% des Kaufpreises zzgl. 20% USt.
Lage

Knittelfeld (8720)
Weitere Informationen
Weitere Services
Lust auf eine Besichtigung?
Eine Frage zur Immobilie?
Über den Anbieter
ITL | Immo Treuhand LiebmingerMaklerbüro
Hauptplatz 14, 8720 KNITTELFELD
Partnerschaft
Rene LiebmingerDein Kontakt
Online-ID: 2mkkw52
Referenznummer: OBGC2025102214533217601e75ea455

ITL | Immo Treuhand Liebminger
Wie zufrieden bist du mit dieser Seite (nicht mit der Immobilie selbst)?

