Version: 8.26.0Navigation überspringen
990.000 €
7 Zimmer  •  245 m²
Immowelt logo

Einfamilienhaus zum Kauf
990000 €
4.041 €/m²
7 Zimmer  •  245 m²

Parc Bordelais - Renovierungsprojekt - John Taylor

Dieses 245 m² große, zu renovierende Haus liegt versteckt in der zweiten Reihe einer ruhigen Wohnstraße in der Nähe des Parc Bordelais und profitiert von einer gültigen und bereinigten Baugenehmigung.

Das Haus erstreckt sich über zwei Ebenen und bietet im Erdgeschoss großzügige, lichtdurchflutete Empfangsräume, die sich zu einem nach Süden ausgerichteten Garten hin öffnen.

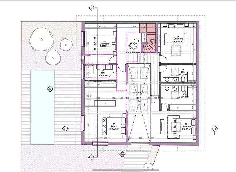
Im Obergeschoss, um einen eleganten, auf eine Kathedraldecke hin offenen Gang herum, befinden sich vier Schlafzimmer und mehrere Badezimmer in einer schönen Harmonie von Volumen und Perspektiven.

Das auf 300.000 € veranschlagte Bauvolumen ermöglicht es Ihnen, Ihren Kostenrahmen zu kontrollieren und gleichzeitig die Endbearbeitung nach Ihrem Geschmack zu gestalten.

Das fast 300 m² große Grundstück ist komplett eingezäunt und bietet Platz für eine große Terrasse, einen Pool sowie einen Parkplatz für zwei Fahrzeuge.

Eine seltene Gelegenheit, einen hochwertigen Familienwohnsitz in ruhiger Lage zu errichten und gleichzeitig die unmittelbare Nähe des Parc Bordelais, der renommierten Schulen, der Verkehrsmittel und der Geschäfte zu genießen.

Eine seltene Gelegenheit, die bei John Taylor Bordeaux, Ihrem zuverlässigen Partner für außergewöhnliche Immobilien, erhältlich ist. Kontaktieren Sie uns jetzt für eine private Besichtigung...

Merkmale

  • Bezug: Ab sofort
  • Garten
  • Badewanne
  • voll klimatisiert
  • offener Kamin

Grundrisse

Grundrisse
1 / 2

Bausubstanz und Energie

Möchtest du Details zum Energieverbrauch?info_energy_calculation-icon
  • Baujahr1968
  • Zustand der Immobilierenovierungsbedürftig / sanierungsbedürftig
  • EnergieträgerElektro
Immowelt logo

Preisdetails

Kaufpreis
990000 €
4.040,82 €/m²
Provision für Käufer
5.32%

Lage

address-icon
CaudéranLe Bouscat (33110)
Der Anbieter hat die genaue Adresse nicht freigegeben

Weitere Informationen

Stichworte Gesamtfläche: 245,00 m², Anzahl der Schlafzimmer: 5, Anzahl der Badezimmer: 4, Anzahl der separaten WCs: 1, Gartenfläche: 250,00 m², 2 Etagen

Weitere Services

Lust auf eine Besichtigung?
Eine Frage zur Immobilie?
Nachricht hinzufügen
Mit der Nutzung der oben angegebenen Telefonnummer oder durch Klicken auf „Kontaktieren“ akzeptierst Du die Allgemeinen Nutzungsbedingungen, denen Du jederzeit widersprechen kannst. Weitere Informationen zum Datenschutz

Über den Anbieter

Place des Moulins, 98000 MONACO
partner badge
Partnerschaft
John Taylor Bordeaux John Taylor BordeauxDein Kontakt
Online-ID: 25JKPX61VIWC
Referenznummer: V0423BX
Wie zufrieden bist du mit dieser Seite (nicht mit der Immobilie selbst)?