Version: 8.24.0Navigation überspringen
Graske Immobilien
245.000 €
4 Zimmer  •  106 m²  •  150 m² Grundstück

Einfamilienhaus zum Kauf
245000 €
2.311 €/m²
4 Zimmer  •  106 m²  •  150 m² Grundstück

Modernes Einfamilienhaus in Garz auf der Insel Rügen sucht neue Familie

Ein modernes Einfamilienhaus als Stadthaus wird in der Stadt Garz auf der Insel Rügen verkauft und sucht eine neue Familie.
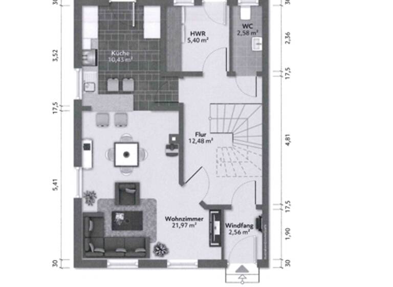
Im Haus befinden sich im Erdgeschoss eine kleine Diele, ein Wohnzimmer mit Kamin, eine Küche mit eingebauter moderner Einbauküche, ein Gäste-WC und ein Hauswirtschaftsraum mit Zugang zur Terrasse.
Im Obergeschoss sind 3 Schlafzimmer und ein Bad mit Eckbadewanne und Flachdusche.
Der große Spitzboden ist über eine Einschubtreppe erreichbar.
Bei Bedarf kann dieser sicherlich auch zu Wohnzwecken genutzt werden. Dies müsste der zukünftige Eigentümer selbst prüfen und entsprechend ausbauen.
Die Immobilie befindet sich in einem guten, gepflegten Zustand.
Der Aus- bzw. Umbau erfolgte im Jahre 2001. Im Jahre 2016 wurden nochmals komplette Renovierungsarbeiten vorgenommen.
Auf dem kleinen Grundstück befindet sich eine Terrasse und ein Nebengebäude, welche als Abstellmöglichkeit für Fahrräder und sonstiges genutzt wird.
Ein eigener Stellplatz ist nicht vorhanden. Gegebenenfalls müsste mit dem Nachbarn über die Möglichkeit der Nutzung eine Vereinbarung getroffen werden. Zurzeit steht nur ein PKW Stellplatz im öffentlichen Bereich an der Straße zur Verfügung bzw. wird entsprechend genutzt. Die Immobilie ist bereits frei gezogen und kann kurzfristig übernommen werden.

Merkmale

  • Bezug: nach Vereinbarung
  • 150 m² Grundstück
  • Kein Keller
-Gaszentralheizung
-Kamin im Wohnzimmer
-Bad mit Eckwanne und Flachdusche
-moderne Einbauküche
-Nebengebäude als Gerätehaus mit Abstellvariante

Grundrisse

Grundrisse
1 / 4

Realisiere Dein Projekt

Bausubstanz und Energie

Energieausweis

D
  • Baujahr2001
  • Zustand der ImmobilieGepflegt
  • HeizungsartZentralheizung
  • EnergieträgerGas
MediumRectangleTop

Preisdetails

Kaufpreis
245000 €
2.311,32 €/m²
Provision für Käufer
3,57 % des Kaufpreises incl. MwSt.
Geschätzte Gesamtkosten
273.346 €1
Kaufpreis
245.000 €
Notarkosten (1,5%)
3.675 €
Grunderwerbsteuer (6%)
14.700 €
Provision für Käufer (3,57%)
8.746 €
Grundbucheintrag (0,5%)
1.225 €
1Der angezeigte Wert ist eine automatisch berechnete Schätzung von immowelt.
2Bei den Angaben handelt es sich um ortsübliche Werte. Individuelle Kosten können abweichen.

Lage

address-icon
Lange Straße 8GarzGarz/Rügen (18574)
Die kleine Stadt Garz auf der wunderschönen Insel Rügen ist eine Landstadt im Landkreis Vorpommern-Rügen in Mecklenburg-Vorpommern. Die Stadt wird vom Amt Bergen auf Rügen mit Sitz in der gleichnamigen Stadt verwaltet, für seine Umgebung bildet Garz ein Grundzentrum. Garz ist die älteste und gleichzeitig mit ca. 2.300 Einwohnern auch die kleinste Stadt auf Rügen. Die Stadt liegt im Süden der Insel, etwa 5 Kilometer von der Küste entfernt und galt bis ins Mittelalter sogar als Hauptstadt der Insel. Als erster Ort auf Rügen erhielt Garz im Jahr 1316 das Stadtrecht.
Die ehemalige Ackerbürgerstadt ist inmitten der zauberhaften Landschaft der Rügischen und Greifswalder Boddenküste gelegen und verfügt über ein sehr gut ausgebautes Netzwerk von Radwegen. Garz ist ein beschaulicher Ort, der für alle, die nach Stille und Natur suchen noch einige kulturelle Besonderheiten bietet. Zu den beliebtesten Sehenswürdigkeiten in Garz zählen der gut erhaltene Burgwall des legendären Fürstensitzes "Charenza" aus dem 11. bis 12. Jahrhundert, das Ernst-Moritz-Arndt-Museum, welches das älteste Museum auf Rügen ist und die spätgotische Sankt-Petri-Kirche aus dem 14. Jahrhundert.
Der Ort beheimatet aber nicht nur tolle Sehenswürdigkeiten, sondern bietet auch vielfältige Einkaufsmöglichkeiten und ist gut mit allen anderen wichtigen Orten auf Rügen verbunden. Nur 4 Kilometer von der Stadt entfernt liegt ein ehemaliger Kreidebruch mit mehr als 100 natürlichen Wasserquellen. In der Nähe der Stadt befinden sich außerdem auch der Zicker See, eine kleine Bucht im Naturschutzgebiet Mönchgut und der natürliche Sandstrand von Palmer Ort, dem südlichsten Punkt Rügens.
Bis nach Zudar mit dem Fähranleger zum Festland und dem anliegenden Boddengewässer sind es nur wenige Kilometer.
Auch die Ostsee ist relativ schnell erreichbar.

Weitere Informationen

Sonstiges Nutzen Sie die zurzeit sehr günstigen Zinsen zum Erwerb von Eigentum;
Wir beraten Sie gern über verschiedene Finanzierungsvarianten und Fördermöglichkeiten;
Bei ernsthaftem Interesse bitten wir um ein schriftliches Kaufpreisangebot, da der angegebene Kaufpreis als Verhandlungsbasis anzusehen ist.
Alle Angaben zum Verkaufsobjekt beruhen auf Information bzw. Aussagen des Verkäufers. Eine Gewähr für die Richtigkeit können wir daher nicht übernehmen. Irrtümer und anderweitiger Verkauf vorbehalten. Das Angebot ist freibleibend.
Bitte haben Sie Verständnis, dass nur Anfragen mit vollständigen Namen und Adressangaben beantwortet werden können.
Gern übernehmen wir bei Interesse auch die Vermietung der Immobilie für den zukünftigen Eigentümer, falls der Bedarf besteht, diese Immobilie als Anlageobjekt zu vermieten.
Solvente Mietinteressenten sind in jedem Falle vorhanden.
Für die Abfuhr der Mülltonnen bzw. Begehbarkeit des Grundstückes ist eine Baulast beim Nachbarn eingetragen worden. Stichworte Nutzfläche: 130,00 m², Anzahl der Schlafzimmer: 3, Anzahl der Badezimmer: 2, Anzahl der separaten WCs: 1, 2 Etagen, Distanz vom Zentrum: 0.50

Weitere Services

Lust auf eine Besichtigung?
Eine Frage zur Immobilie?
Nachricht hinzufügen
Mit der Nutzung der oben angegebenen Telefonnummer oder durch Klicken auf „Kontaktieren“ akzeptierst Du die Allgemeinen Nutzungsbedingungen, denen Du jederzeit widersprechen kannst. Weitere Informationen zum Datenschutz

Über den Anbieter

Wasserstr. 63, 18439 Stralsund
partner badge
Partnerschaft
Herr Ulf Graske
Herr Ulf GraskeDein Kontakt
Online-ID: 23l4d5e
Referenznummer: QQ774
Graske Immobilien
title
Graske Immobilien
Bewertung: 4,8 von 5 Sternen
Nachricht hinzufügen
Mit der Nutzung der oben angegebenen Telefonnummer oder durch Klicken auf „Kontaktieren“ akzeptierst Du die Allgemeinen Nutzungsbedingungen, denen Du jederzeit widersprechen kannst. Weitere Informationen zum Datenschutz
MediumRectangleTop
MediumRectangleBottom
MediumRectangleTop
Wie zufrieden bist du mit dieser Seite (nicht mit der Immobilie selbst)?