Version: 8.26.0Navigation überspringen
IMMORath
180.000 €
5 Zimmer  •  101 m²

Maisonette zum Kauf
180000 €
1.782 €/m²
5 Zimmer  •  101 m²

IMMORath.de - Rohbau mit Potenzial: Schaffen Sie Ihr Traum-Zuhause!

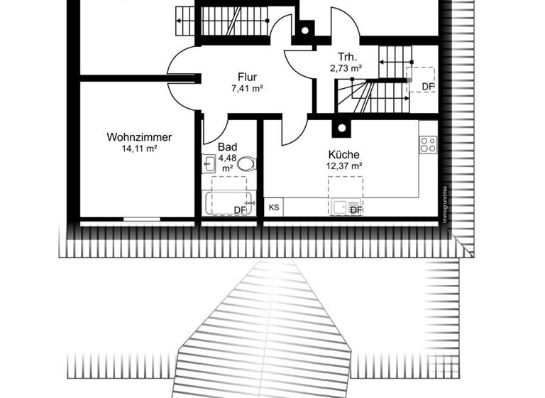
- Großzügige 5-Zimmer-Maisonettewohnung im Rohbauzustand, ideal für individuelle Gestaltung
- Attraktive Lage in Ettenheim-Münchweier, im Obergeschoss eines Mehrfamilienhauses mit drei Einheiten
- Voraussichtlich ca. 100 m² Wohnfläche bieten ausreichend Platz zur Verwirklichung Ihrer Wohnträume
- Profitieren Sie von den bereits erledigten Vorarbeiten: Die Wohnung wurde 2023 vollständig entkernt, neue Dachfenster wurden eingebaut und das Dach ist gedämmt
- Die Vorbereitung für Wasser- und Heizungsleitungen sowie die Installation sanitärer Vorwandelemente sind bereits erfolgt
- Eine neue Pelletsheizung (Installation im Jahr 2023) sorgt für eine zukunftssichere und umweltfreundliche Wärmeversorgung
- Es besteht die Möglichkeit, eine günstige Finanzierung zu übernehmen, was den Start in Ihr Renovierungsprojekt erleichtert
- Der Innenausbau kann frei nach Ihren Wünschen und Vorstellungen gestaltet werden
- Ein Kellerabteil bietet zusätzlichen Stauraum

Nutzen Sie diese einmalige Gelegenheit, um Ihr Traumzuhause in einer attraktiven Lage zu schaffen.

Merkmale

  • Bezug: Frei nach Absprache
  • Kelleranteil

Grundrisse

Grundrisse
1 / 2

Bausubstanz und Energie

Energieausweis

G
  • Baujahr1900
  • HeizungsartZentralheizung
  • EnergieträgerPellets
MediumRectangleTop

Preisdetails

Kaufpreis
180000 €
1.782 €/m²
Provision für Käufer
3,57% inkl. MwSt.
Geschätzte Gesamtkosten
199.026 €1
Kaufpreis
180.000 €
Notarkosten (1,5%)
2.700 €
Grunderwerbsteuer (5%)
9.000 €
Provision für Käufer (3,57%)
6.426 €
Grundbucheintrag (0,5%)
900 €
1Der angezeigte Wert ist eine automatisch berechnete Schätzung von immowelt.
2Bei den Angaben handelt es sich um ortsübliche Werte. Individuelle Kosten können abweichen.

Lage

address-icon
MünchweierEttenheim (77955)
Der Anbieter hat die genaue Adresse nicht freigegeben
Die Maisonette-Wohnung befindet sich in der charmanten südlichen Stadt Ettenheim, die Teil der wunderschönen Ortenau ist. Ettenheim zeichnet sich durch seine malerischen Gässchen und bezaubernden Fachwerkhäuser aus, was der Stadt ein einzigartiges und historisches Flair verleiht. Die Umgebung ist ideal für Familien, da sie sich durch eine starke Gemeinschaft und vielfältige Freizeitmöglichkeiten auszeichnet.

Die Innenstadt von Ettenheim ist nur etwa 3,7 Kilometer entfernt und bietet zahlreiche Einkaufsmöglichkeiten, Restaurants und kulturelle Einrichtungen. Für Pendler und Reisende ist die Anbindung an die Autobahn in ca. 12,4 Kilometer gut erreichbar, was eine unkomplizierte Verbindung zu größeren Städten gewährleistet.

Für Familien mit Kindern ist die Nähe zu Bildungseinrichtungen besonders attraktiv. Ein Kindergarten und eine Grundschule befinden sich in einer Entfernung von lediglich 450 Metern, was kurze Wege und große Flexibilität im Alltag ermöglicht. Auch weiterführende Schulen wie eine Realschule in etwa 4 Kilometer und ein Gymnasium in circa 3,8 Kilometer Entfernung sind schnell zu erreichen.

Die Lage dieser Wohnung eignet sich ideal für all jene, die ein gemütliches und familienfreundliches Umfeld suchen, ohne auf die Annehmlichkeiten einer gut entwickelten Infrastruktur verzichten zu müssen.

Weitere Informationen

Sonstiges Sie haben Interesse und möchten zeitnah die Immobilie besichtigen? Kein Problem! Schicken Sie uns gerne Ihre Anfrage, Sie werden von der Immobilie begeistert sein!

Alle vom Eigentümer bereitgestellten Informationen werden als zuverlässig erachtet, aber nicht garantiert und sollten unabhängig verifiziert werden. Wir übernehmen keinerlei Gewähr für die Richtigkeit der Angaben.

Der Courtageanteil des Käufers beträgt 3,57% des tatsächlichen Kaufpreises inklusive der gesetzlichen Mehrwertsteuer.
Der Courtageanteil ist im Kaufpreis nicht enthalten und ist vom Käufer an uns zu zahlen. Er ist fällig und zahlbar bei Notariat.

Einzelne Bilder wurden digital optimiert (KI-gestütztes Wetter- und Umgebungs-Editing). Die bauliche Substanz wurde nicht verändert. Die Darstellungen dienen der Illustration; verbindlich ist der Zustand bei der persönlichen Besichtigung. Stichworte Distanz zum Kindergarten: 0.45, Distanz zur Grundschule: 0.45, Distanz zur Realschule: 4.00, Distanz zum Gymnasium: 3.80, Distanz zur Autobahn: 12.40, Distanz vom Zentrum: 3.70

Weitere Services

Lust auf eine Besichtigung?
Eine Frage zur Immobilie?
Nachricht hinzufügen
Mit der Nutzung der oben angegebenen Telefonnummer oder durch Klicken auf „Kontaktieren“ akzeptierst Du die Allgemeinen Nutzungsbedingungen, denen Du jederzeit widersprechen kannst. Weitere Informationen zum Datenschutz

Über den Anbieter

Habsburgerstraße 11, 79104 Freiburg im Breisgau
partner badge
3 Jahre Partnerschaft
Herr Nicola SabatinoDein Kontakt
Online-ID: 25SJXLIYA5U8
Referenznummer: IR0425320
MediumRectangleTop
Wie zufrieden bist du mit dieser Seite (nicht mit der Immobilie selbst)?