Version: 8.26.0Navigation überspringen
80.000 €
5 Zimmer  •  83 m²  •  550 m² Grundstück
Immowelt logo

Doppelhaushälfte zum Kauf
80000 €
964 €/m²
5 Zimmer  •  83 m²  •  550 m² Grundstück

Gemütliches Haus mit Ausbaupotenzial in familienfreundlicher Wohnlage in Klein Wanzleben

Ein charmantes Sanierungsobjekt in Klein Wanzleben mit rund 83 m² Wohnfläche, eignet sich besonders für Paare, Singles oder kleine Familien, die ein Haus mit Substanz suchen und Freude daran haben, es Schritt für Schritt in ihr persönliches Wohlfühl-Zuhause zu verwandeln.

Diese Doppelhaushälfte aus dem Jahr 1956 steht auf einem großzügigen Grundstück von circa 550 m² in ruhiger Wohnlage von Klein Wanzleben. Die solide Bausubstanz und der klassische Grundriss bieten jedoch sehr gute Voraussetzungen, um hier ein individuelles Zuhause mit Charakter und Wohlfühlfaktor zu schaffen. Das Haus wird über Nachtspeicheröfen beheizt.

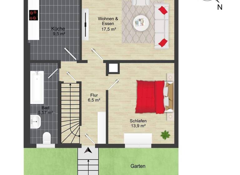
Im Erdgeschoss befinden sich ein Wohnzimmer, ein Schlafzimmer, eine separate Küche sowie ein Tageslichtbad. Alle Räume sind über den zentral gelegenen Flur erreichbar.
Das Dachgeschoss bietet drei weitere Zimmer, die flexibel als Kinderzimmer, Homeoffice oder Gästezimmer genutzt werden können.

Vom Flur im Erdgeschoss besteht ein direkter Zugang zum Keller. Dort stehen ein Hausanschlussraum sowie weitere Abstell- und Lagerräume zur Verfügung, die zusätzlichen Nutzraum bieten.

Das Grundstück verfügt über eine komfortable Größe und eröffnet vielfältigen Spielraum für die eigene Gestaltung - ob für Freizeit, Gartenplanung oder zukünftige Erweiterungen.

Überzeugen Sie sich selbst, welche Möglichkeiten Ihnen diese Immobilie bietet und vereinbaren Sie noch heute einen Termin mit mir, um Ihnen die Immobilie ausführlich zu präsentieren. Ich freue mich auf Ihre Anfrage!

Wir bitten um Ihr Verständnis, dass wir das Exposé lediglich bei Angabe der vollständigen Kontaktdaten versenden können.

Merkmale

  • 550 m² Grundstück
  • Keller
  • 2 Stellplätze: 2 Außen-Stellplätze
Das Einfamilienhaus ist wie folgt aufgeteilt:

Erdgeschoss:
- Flur mit Zugang zum Keller,
- Tageslicht-Bad mit Badewanne,
- Kochen,
- Wohnen,
- Schafen,

Dachgeschoss:
- Flur,
- drei Zimmer,

Kellergeschoss:
- Hausanschlussraum,
- 3 Abstell- und Lagerräume,

Außenanlage:
- Garten mit Gerätehaus,

Sanierungen/Modernisierungen:
- Bad im Jahr 2014
- Dach im Jahr 2007
- Fenster, Leitungen, Elektro im Jahr 1994

Grundrisse

Grundrisse
1 / 3

Bausubstanz und Energie

Energieausweis

H
  • Baujahr1956
  • Zustand der ImmobilieGepflegt
  • HeizungsartEtagenheizung
  • EnergieträgerElektro
Immowelt logo

Preisdetails

Kaufpreis
80000 €
963,86 €/m²
Provision für Käufer
Käuferprovision 4.170Euro inkl. der gesetzlichen MwSt. inkl. MwSt.
Weitere Preisinformationen
2 Stellplätze
Geschätzte Gesamtkosten
88.456 €1
Kaufpreis
80.000 €
Notarkosten (1,5%)
1.200 €
Grunderwerbsteuer (5%)
4.000 €
Provision für Käufer (3,57%)
2.856 €
Grundbucheintrag (0,5%)
400 €
1Der angezeigte Wert ist eine automatisch berechnete Schätzung von immowelt.
2Bei den Angaben handelt es sich um ortsübliche Werte. Individuelle Kosten können abweichen.

Lage

address-icon
Klein Wanzleben (39164)
Der Anbieter hat die genaue Adresse nicht freigegeben
Klein Wanzleben ist ein Ortsteil der Stadt Wanzleben-Börde und liegt in der Magdeburger Börde, einer Region mit ausgeprägter landwirtschaftlicher Nutzung. Der Ort befindet sich etwa 20 Kilometer südwestlich von Magdeburg und ist über die Bundesstraße B 246a sowie die nahegelegene Autobahn A14 verkehrstechnisch gut angebunden.

Die Lage ist ländlich und ruhig, geprägt von offenen Feldern und einer gut entwickelten lokalen Infrastruktur. Ein prägendes wirtschaftliches Merkmal des Ortes ist die Zuckerfabrik des Unternehmens Pfeifer & Langen, die seit vielen Jahren fester Bestandteil der regionalen Wirtschaft ist.

Durch die Kombination aus naturnahem Umfeld und guter Erreichbarkeit bietet Klein Wanzleben einen attraktiven Wohnstandort, insbesondere für Pendler mit Arbeitsplatz in Magdeburg, die ein ruhiges Wohnumfeld schätzen.

Weitere Informationen

Sonstiges Alle Daten in diesem Exposé beruhen auf Angaben des Verkäufers. Die Objektangaben wurden mit großer Sorgfalt zusammengestellt. Für die Richtigkeit der Verkäufer-, Anbieter- und Angebotsangaben können wir keine Haftung übernehmen. Irrtümer bleiben vorbehalten.

Impressum & Datenschutzhinweise:
https://www.remaxmagdeburg.de/impressum
https://www.remaxmagdeburg.de/datenschutz

Möchten Sie Ihre Immobilie verkaufen?
Anruf genügt: 0176 401 373 56
Ihre persönliche Ansprechpartnerin: Julia Springel Stichworte Stellplatz vorhanden, Nutzfläche: 142,00 m², Anzahl der Schlafzimmer: 3, Anzahl der Badezimmer: 1, 2 Etagen, Distanz zum Kindergarten: 5.90, Distanz zur Grundschule: 5.30, Distanz zur Realschule: 6.10, Distanz zur nächsten Einkaufsmöglichkeit: 0.70, Distanz zum Gymnasium: 7.50, Distanz zur Autobahn: 19.00, Distanz zum Bus: 0.30, Distanz vom Zentrum: 6.30

Weitere Services

Lust auf eine Besichtigung?
Eine Frage zur Immobilie?
Nachricht hinzufügen
Mit der Nutzung der oben angegebenen Telefonnummer oder durch Klicken auf „Kontaktieren“ akzeptierst Du die Allgemeinen Nutzungsbedingungen, denen Du jederzeit widersprechen kannst. Weitere Informationen zum Datenschutz

Über den Anbieter

Liebknechtstr. 24, 39108 Magdeburg
Frau Julia Springel
Frau Julia SpringelDein Kontakt
Online-ID: 25L6KSC8HN24
Referenznummer: 1134-1512-JSP
Wie zufrieden bist du mit dieser Seite (nicht mit der Immobilie selbst)?