Version: 8.26.0Navigation überspringen
ohne-makler.net - Immobilien selbst vermarkten
420.000 €
698 m² Grundstück

Grundstück zum Kauf • provisionsfrei
420000 €
602 €/m²
698 m² Grundstück

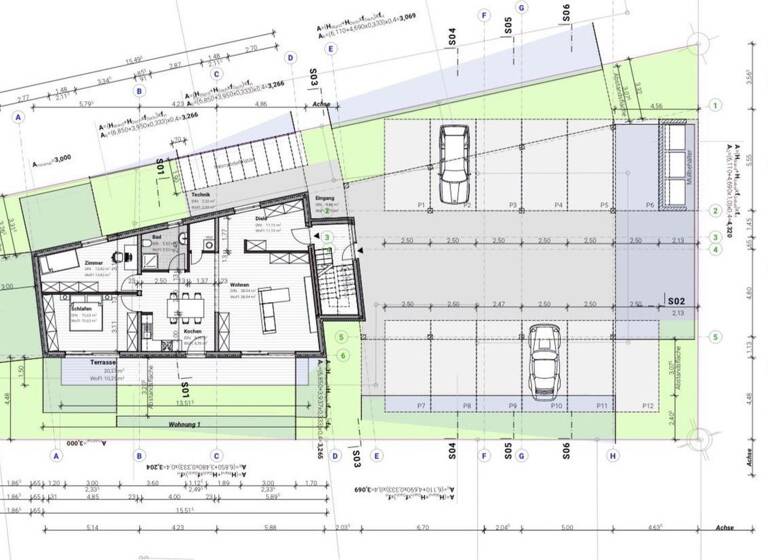
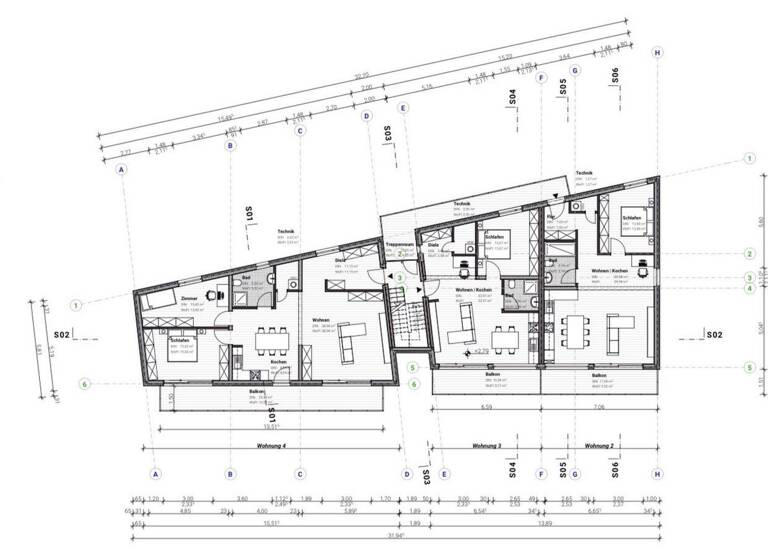
Projektiertes 6 Familienhaus mit 500 m² Wohnfläche in Senden Top Lage

Attraktives Baugrundstück in Toplage von Senden - inkl. abgestimmter Projektierung für ein Mehrfamilienhaus mit 6 Wohneinheiten mit ca. 500 m² Wohnfläche.

Zum Verkauf steht ein äußerst interessantes Grundstück in begehrter Lage von Senden mit einer Fläche von ca. 700 m².

Aktuell befindet sich auf dem Grundstück ein Bestandsgebäude (Abbruchhaus). Für das Grundstück wurde bereits ein modernes Fünf-Familienhaus inklusive Stellplatzkonzept projektiert. Die Planung wurde dabei eng mit der Stadt Senden abgestimmt, sodass eine ideale Grundlage für eine zeitnahe und reibungslose Umsetzung gegeben ist.

Die Lage überzeugt zusätzlich durch ihre hervorragende Infrastruktur: Der Bahnhof ist in nur ca. 5 Minuten fußläufig erreichbar und bietet eine optimale Anbindung für Pendler.

Dieses Angebot richtet sich insbesondere an Bauträger, Investoren oder Projektentwickler, die ein attraktives Wohnbauprojekt in gefragter Lage realisieren möchten.

Wichtige Hinweise:
.Der Kaufpreis bezieht sich ausschließlich auf das Grundstück inkl. Projektierung
.Die Kosten für den Abbruch des Bestandsgebäudes sind vom Käufer zu tragen
.Die Spekulationsfrist ist bereits abgelaufen - das Objekt wird aus strategischen Gründen veräußert

Ein vergleichbares Projekt würden wir unter normalen Umständen selbst realisieren, jedoch bietet sich hier eine seltene Gelegenheit für externe Investoren, ein bereits vorbereitetes Bauvorhaben zu übernehmen.

Highlights auf einen Blick:
.Ca. 700 m² Grundstück
.Top Lage in Senden
.Projektierung für ein 6-Familienhaus mit 500 m² Wohnfläche bereits vorhanden
.Planung eng mit der Stadt abgestimmt
.Stellplatzlösung eingeplant
.Bahnhof in ca. 5 Minuten fußläufig erreichbar
.Ideal für Bauträger & Investoren
.Sofortige Projektumsetzung möglich

Gerne stellen wir Ihnen auf Anfrage weitere Unterlagen zur Projektierung sowie Details zur Bebauung zur Verfügung.

Merkmale

  • Bezug: sofort
  • 698 m² Grundstück
  • voll erschlossen

Grundrisse

Grundrisse
1 / 4
MediumRectangleTop

Preisdetails

Kaufpreis
420000 €
601,72 €/m²
Provision für Käufer
provisionsfrei; keine Provision, courtagefrei
Geschätzte Gesamtkosten
420.000 €1
Kaufpreis
420.000 €
1Der angezeigte Wert ist eine automatisch berechnete Schätzung von immowelt.

Lage

address-icon
Silcherwerg 4AufheimSenden (89250)
Das Grundstück befindet sich in äußerst zentraler und dennoch sehr ruhigen Lage von Senden und überzeugt durch eine hervorragende Infrastruktur sowie kurze Wege im Alltag.

Sämtliche Einrichtungen des täglichen Bedarfs sind bequem fußläufig erreichbar. Dazu zählen unter anderem Bäckereien, Ärzte, Apotheken sowie diverse Einkaufsmöglichkeiten. Auch gastronomische Angebote und weitere Dienstleistungen befinden sich in unmittelbarer Umgebung.

Ein besonderes Highlight ist die sehr gute Anbindung an den öffentlichen Nahverkehr: Der Bahnhof ist in nur ca. 5 Minuten zu Fuß erreichbar und ermöglicht eine schnelle Verbindung in die umliegenden Städte und Regionen.

Die Kombination aus zentraler Lage, optimaler Infrastruktur und hervorragender Erreichbarkeit macht diesen Standort sowohl für Eigennutzer als auch für Mieter besonders attraktiv.
Infrastruktur (im Umkreis von 5 km):
Apotheke, Lebensmittel-Discount, Allgemeinmediziner, Kindergarten, Grundschule, Hauptschule, Realschule, Gesamtschule, Öffentliche Verkehrsmittel

Weitere Informationen

Sonstiges Makleranfragen nicht erwünscht. Nach § 7 UWG sind unaufgeforderte Kontaktaufnahmen durch Makler ohne ausdrückliche Einwilligung des Empfängers verboten!

ohne-makler (OM) ist weder Anbieter noch Vermittler der Immobilie. OM betreibt eine Plattform für Immobilieneigentümer, die unter anderem die gleichzeitige Veröffentlichung einzelner Inserate auf mehreren Immobilienportalen ermöglicht. Die Inhalte dieser Inserate werden ausschließlich von Dritten verantwortet. Für die Richtigkeit, Vollständigkeit oder Rechtmäßigkeit der Angaben übernimmt OM keine Haftung. Hinweise auf mögliche Rechtsverstöße können jederzeit gemeldet werden und werden nach Prüfung umgehend bearbeitet. Stichworte Bundesland: Bayern

Weitere Services

Lust auf eine Besichtigung?
Eine Frage zur Immobilie?
Nachricht hinzufügen
Mit der Nutzung der oben angegebenen Telefonnummer oder durch Klicken auf „Kontaktieren“ akzeptierst Du die Allgemeinen Nutzungsbedingungen, denen Du jederzeit widersprechen kannst. Weitere Informationen zum Datenschutz

Über den Anbieter

Humboldtstr. 25 A, 21509 Glinde
partner badge
10 Jahre Partnerschaft
Privat von Oktay SaglamDein Kontakt
Keine Telefonnummer hinterlegt
Keine Telefonnummer hinterlegt
Online-ID: 26P9IAB453VZ
Referenznummer: 445063
MediumRectangleTop
Wie zufrieden bist du mit dieser Seite (nicht mit der Immobilie selbst)?