Version: 8.26.0Navigation überspringen
357.990 €
319 m² Grundstück  •  frei ab sofort
Immowelt logo

Grundstück zum Kauf • provisionsfrei
357990 €
2.745 €/m²
319 m² Grundstück  •  frei ab sofort

(Zweit)wohnsitz auf Rügen

Das hier beispielhaft dargestellte Haus wird von Elbe-Haus® in gewohnt qualitativ hochwertiger Bauweise errichtet und kann natürlich auch in den Abmaßen und Grundrissen nahezu beliebig (materialbereinigt) kostenfrei verändert werden und erfüllt mit Sicherheit Ihre sämtlichen Qualitätsansprüche. Im angegebenen Hauspreis (zzgl. BNK) ist der Grundstückspreis (319 m²) bereits erhalten. Provisionen für Haus und Grundstück fallen nicht mehr an. Kalkuliert ist hier die bezugsfertige Fertigstellung (außer Fußboden- und Malerarbeiten der nicht gefliesten Flächen) ohne weitere Eigenleistungen (können aber auch vereinbart werden). Zur Sicherheit unserer Bauherren wird nicht nur der Festpreis für 24 Monate garantiert, sondern auch die Bauzeit und der Baubeginn vertraglich fixiert. Ein unabhängiger Bausachverständiger der DEKRA überwacht den Bauablauf und zertifiziert bei Übergabe die fachgerechte Ausführung.

Merkmale

  • frei ab sofort
  • 319 m² Grundstück
  • Bebauungsplan
  • voll erschlossen
  • Strom, Telekommunikation, Wasser
Zur Grundausstattung gehören u.a. eine unterseitig gedämmte Bodenplatte, 3-fach verglaste Fenster, gedämmte Aluminium-Rollläden in allen Etagen, engobierte bzw. glasierte Tondachziegel, Silikonharzputz in div. Farben, Buntsteinputz im Sockelbereich, Fußbodenheizung in allen Geschossen, Luft-Wasser-Wärmepumpe mit integrierter Kühlfunktion, kontrollierte Wohnraumlüftung mit Wärmerückgewinnung, Badausstattung namhafter Markenunternehmen (Villeroy & Boch, Vigour, HansGrohe, …), Fliesen in Fachmarktqualität (40,-€ / m² kalkuliert), … .

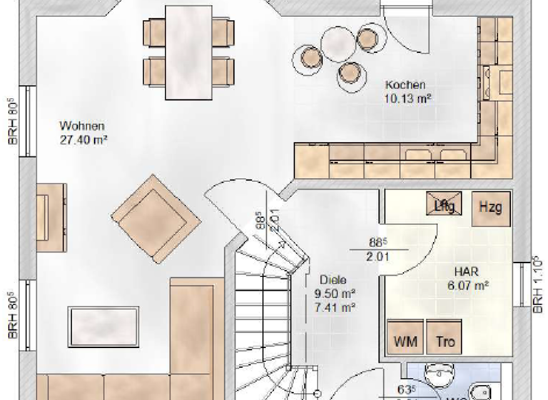
Grundrisse

Grundrisse
1 / 2

Bausubstanz und Energie

Energieausweis

Ein Energieausweis ist für diesen Gebäudetyp nicht notwendig.
Immowelt logo

Preisdetails

Kaufpreis
357990 €
2.745 €/m²
Provision für Käufer
provisionsfrei
Geschätzte Gesamtkosten
357.990 €1
Kaufpreis
357.990 €
1Der angezeigte Wert ist eine automatisch berechnete Schätzung von immowelt.

Lage

address-icon
Zirkow (18528)
Der Anbieter hat die genaue Adresse nicht freigegeben
Sie können hier Ihren neuen Wohnsitz in ruhiger Insellage erwerben. Einige Hotspots, wie z.B. die Strandpromenaden von Binz, Sellin, Göhren, … sind in wenigen Fahrradminuten erreicht. Die Kreishauptstadt Bergen liegt etwa 8 Autominuten entfernt. Die bekanntermaßen staub- und allergenarme Luft auf Rügen bietet nicht nur für Allergiker und Neurodermitiker eine deutlich erhöhte Lebensqualität.

Weitere Informationen

Für sämtliche übliche Obliegenheiten eines Bauherren, wie z.B. Organisation der Medienanschlüsse, Umgang mit Behörden, Notar, Finanzierung, … stehe ich Ihnen jederzeit aktiv zur Seite, so dass Ihre Mitwirkung eher von sporadischer Natur sein dürfte.

Weitere Services

Lust auf eine Besichtigung?
Eine Frage zur Immobilie?
Nachricht hinzufügen
Mit der Nutzung der oben angegebenen Telefonnummer oder durch Klicken auf „Kontaktieren“ akzeptierst Du die Allgemeinen Nutzungsbedingungen, denen Du jederzeit widersprechen kannst. Weitere Informationen zum Datenschutz

Über den Anbieter

Adele-Sandrock-Straße 20, 12627 Berlin
partner badge
Partnerschaft
Hans-J. Kuehl
Hans-J. KuehlDein Kontakt

Weitere Unterlagen

Online-ID: 26N935C5SWS6
Referenznummer: 15032026-1
Wie zufrieden bist du mit dieser Seite (nicht mit der Immobilie selbst)?