Wohnung in Bozen
D13
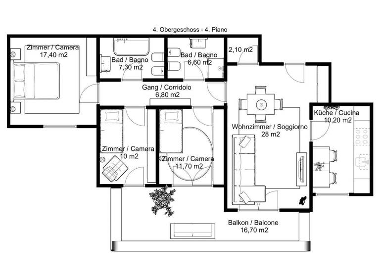
Die Vierzimmerwohnung im vierten Stock besteht aus einem Eingangsbereich, einem großen Wohnzimmer mit Essbereich und direktem Zugang zur großzügigen Terrasse, die sich perfekt für entspannte Momente im Freien eignet, einer Wohnküche, einem praktischen Abstellraum sowie einem Flur, der in den Schlafbereich führt. Dieser umfasst ein geräumiges Doppelzimmer mit kleinem Balkon und zwei gut geschnittene Einzelzimmer, die beide Zugang zur Hauptterrasse haben.
Die Immobilie verfügt über zwei Bäder: eines mit Fenster und Badewanne sowie ein weiteres mit Dusche und Platz für die Waschmaschine.
Dank der hervorragenden Ausrichtung und der großen Fensterflächen ist die Wohnung den ganzen Tag über lichtdurchflutet und bietet eine angenehme, einladende Wohnatmosphäre. Ideal für alle, die in einem gepflegten und gut angebundenen Umfeld wohnen möchten, ohne auf den Komfort großzügiger Innen- und Außenbereiche zu verzichten.
Hauptmerkmale:
KlimaHaus A Gebäude: Bau mit hohen Standards in Energieeffizienz und Nachhaltigkeit.
Zentrale kontrollierte Belüftung: System, das für optimalen Luftaustausch in den Räumen sorgt.
Schallisolierte Fenster mit elektrischen Rollläden: Schallschutz durch Fenster und motorisierte Rollläden für zusätzlichen Komfort.
Fußbodenheizung: Heizsystem unter dem Boden für gleichmäßige Wärme.
Photovoltaik-Paneele: Eigenständige Stromerzeugung durch Solarzellen.
Solarthermische Paneele: System zur Warmwasserbereitung durch Solarenergie.
Lage und Kontext der Immobilie:
Das Viertel Rentsch in Bozen ist eine ruhige Oase nur wenige Schritte vom Stadtzentrum entfernt. Diese exklusive Wohngegend bietet das perfekte Gleichgewicht zwischen städtischer Bequemlichkeit und Entspannung, umgeben von Weinbergen und Grünflächen, die eine ruhige und private Atmosphäre schaffen. Die Nähe zur Altstadt von Bozen ermöglicht es, die Lauben und alle wichtigen Sehenswürdigkeiten der Stadt bequem zu Fuß zu erreichen, was das Wohnhaus ideal für diejenigen macht, die städtische Lebendigkeit genießen möchten, ohne auf Ruhe verzichten zu müssen. Es ist eine perfekte Wahl für Familien, die eine sichere und einladende Umgebung suchen, mit einer Vielzahl von Dienstleistungen und Geschäften in unmittelbarer Nähe: Supermärkte, Apotheken, Restaurants, Cafés und ein Einkaufszentrum bieten alles, was für einen praktischen und angenehmen Lebensstil notwendig ist. Außerdem liegt das Wohnhaus nahe am Radwegenetz, Bushaltestellen, dem Bahnhof, der Seilbahn auf das Rittner Hochplateau und Wanderwegen, die eine einfache Erkundung der umliegenden Natur und Panoramaspaziergänge ermöglichen. Das Viertel Rentsch bietet eine hohe Lebensqualität, ideal für Familien, in einer ruhigen Umgebung, die gut mit dem pulsierenden Zentrum von Bozen verbunden ist.
Vermittlungsvergütung:
Der Makler hat Anspruch auf die Provision, wenn das Geschäft durch sein Zutun zustande gekommen ist.
Provision in Höhe von 3 % (drei Prozent) zzgl. gesetzlicher MwSt. auf den Verkaufspreis.
Der Anspruch des Maklers entsteht mit Abschluss des Geschäfts und ist vom Käufer an den Makler innerhalb von 30 Tagen ab der Annahme des Kaufantrages oder der Unterzeichnung des Kaufvorvertrages zu entrichten.
Wir bemühen uns, auf dieser Website richtige und vollständige Informationen zur Verfügung zu stellen. Wir übernehmen jedoch keine Haftung oder Garantie für die Aktualität, Richtigkeit und Vollständigkeit der bereitgestellten Informationen und Bildmaterial. Zweidimensionale Grundrisse und dreidimensionale Renderings sind größtenteils figurativ und nicht immer maßstabsgetreu bzw. entsprechen nicht immer der Realität. Wir behalten uns das Recht vor, ohne vorherige Ankündigung Änderungen oder Ergänzungen der bereitgestellten Informationen vorzunehmen.