

Wohnung zum Kauf249000 €3.626 €/m²2 Zimmer • 68,7 m²
249000 €
3.626 €/m²
2 Zimmer • 68,7 m²
Nur ein Steinwurf vom Westpfalz-Klinikum entfernt - Altersgerecht Wohnen im KFW 55-Mehrfamilienhaus
Merkmale
- vermietet
- Personenaufzug
- Balkon
- Außen-Stellplatz
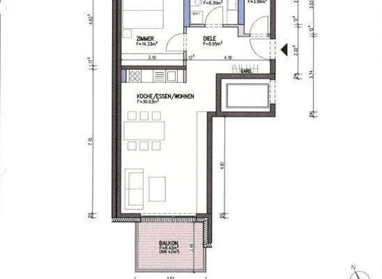
Grundrisse
Grundrisse
1 / 1
Realisiere Dein Projekt
Bausubstanz und Energie
Energieausweis
A
- Baujahr2022
- Zustand der Immobilieneuwertig
- EnergieträgerFernwärme
Preisdetails
Kaufpreis
249000 €
3.625,51 €/m²
Preis pro Stellplatz
10000 €
Hausgeld
186 €
Provision für Käufer
3,57% inkl. MwSt.
Weitere Preisinformationen
1 Stellplatz, Kaufpreis: 10.000,00 EUR
Geschätzte Gesamtkosten
275.319 €1
Kaufpreis
249.000 €
Kaufnebenkosten
26.319 €
2Notarkosten (1,5%)
3.735 €
Grunderwerbsteuer (5%)
12.450 €
Provision für Käufer (3,57%)
8.889 €
Grundbucheintrag (0,5%)
1.245 €
1Der angezeigte Wert ist eine automatisch berechnete Schätzung von immowelt.
2Bei den Angaben handelt es sich um ortsübliche Werte. Individuelle Kosten können abweichen.
Lage

Innenstadt, Kaiserslautern (67655)
Der Anbieter hat die genaue Adresse nicht freigegeben
Weitere Informationen
Weitere Services
Lust auf eine Besichtigung?
Eine Frage zur Immobilie?
Über den Anbieter
Schneiderstraße 12, 67655 Kaiserslautern
Firma N1 Immobilien Management OHG ...von Anfang an ein gutes Gefühl!Dein Kontakt
Online-ID: 266RSD3LS1MV
Referenznummer: 26-ON-21

N1 Immobilien Management OHG
Wie zufrieden bist du mit dieser Seite (nicht mit der Immobilie selbst)?

