

Wohnung zum Kauf2358800 €7.349 €/m²4 Zimmer • 176,3 m² • EG
2358800 €
7.349 €/m²
4 Zimmer • 176,3 m² • EG
Luxus-Appartements direkt am Meer - Falkensteiner Resort, Punta Skala (Kroatien)
Merkmale
- Erdgeschoss
- Personenaufzug
- Garage, Tiefgarage
- Bidet
- Balkon
- Terrasse
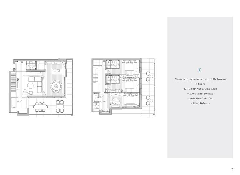
Grundrisse
Grundrisse
1 / 2
Realisiere Dein Projekt
Bausubstanz und Energie
Der Anbieter hat keine Informationen zum Energieverbrauch bereit gestellt.
- Baujahr2025
- Zustand der ImmobilieProjektiert
- HeizungsartEtagenheizung
- EnergieträgerElektro, Luft-/Wasser-Wärmepumpe
Preisdetails
Kaufpreis
2358800 €
7.348,52 €/m²
Provision für Käufer
ja maklerprovision im Preis nicht inbegriffen zzgl. MwSt.
Weitere Preisinformationen
1 Garagenstellplatz
1 Tiefgaragenstellplatz
1 Tiefgaragenstellplatz
Lage

Petrcane Ulica XIII, Punta Skala
Weitere Informationen
Weitere Services
Lust auf eine Besichtigung?
Eine Frage zur Immobilie?
Über den Anbieter
Garda Haus SrlMaklerbüro
Via Meucci 77, 25080 PADENGHE SUL GARDA
Partnerschaft
Herr Filippo GiubelliniDein Kontakt
Online-ID: 2jext5u
Referenznummer: LV-1245

Garda Haus Srl
Wie zufrieden bist du mit dieser Seite (nicht mit der Immobilie selbst)?

