Version: 8.26.0Navigation überspringen
295.000 €
701 m² Grundstück
Immowelt logo

Gewerbegrundstück zum Kauf
295000 €
421 €/m²
701 m² Grundstück

Bebautes Gewerbegrundstück | Nutzung laut B-Plan | www.LUTTER.net

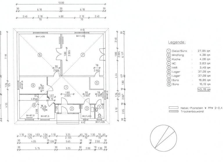
Mit Lager- und Büroflächen bebautes Gewerbegrundstück zum Kauf, das sowohl Funktionalität als auch Komfort bietet. Dieses gepflegte Gebäude verfügt über 5 Zimmer (2 mal Büro; 2 mal Lager; Diele/Büro) und liegt auf einem großzügigen Grundstück von ca. 701 m².

Die Immobilie eignet sich hervorragend für Kleingewerbe und bietet zudem die Möglichkeit, in Ausnahmefällen auch als Wohnraum genutzt zu werden. Allerdings muss diese Nutzung dem Gewerbe untergeordnet sein und auch beantragt werden.


Die angebotene Immobilie zeichnet insbesondere aus:
- ein gepflegtes und gut erhaltenes Gebäude
- 5 vielseitig nutzbare Zimmer
- großzügiges Grundstück mit 701 m²
- Außenstellplätze für bequemes Parken
- Garage für zusätzlichen Schutz und Stauraum
- direkter und kurzer Weg zur A20

Dieses Objekt in Satow verbindet praktische Nutzbarkeit mit einem ansprechenden Ambiente und bietet somit die ideale Lösung für ihr Gewerbe.
Das Grundstück ist Bestandteil des B-Plangebietes - Nr. 2 und als Gewerbefläche ausgewiesen.

Merkmale

  • Bezug: sofort
  • 701 m² Grundstück
  • voll erschlossen
  • 4 Stellplätze: 4 Außen-Stellplätze
Bungalow (Dachneigung 20°)
Gasheizung / Warmwasseraufbereitung mit Boiler
Putzfassade
Teeküche/ WC
Dach-und Fassadensanierung 2021
zentrale Schließanlage
Glasfaseranschluss

Grundrisse

Grundrisse
1 / 1

Bausubstanz und Energie

  • Baujahr1997
  • Zustand der ImmobilieGepflegt
  • EnergieträgerGas
Immowelt logo

Preisdetails

Kaufpreis
295000 €
420,83 €/m²
Provision für Käufer
7,14 % vom Kaufpreis inkl. MwSt.
Weitere Preisinformationen
4 Stellplätze
Geschätzte Gesamtkosten
316.063 €1
Kaufpreis
295.000 €
Provision für Käufer (7,14%)
21.063 €
1Der angezeigte Wert ist eine automatisch berechnete Schätzung von immowelt.
2Bei den Angaben handelt es sich um ortsübliche Werte. Individuelle Kosten können abweichen.

Lage

address-icon
Satow (18239)
Der Anbieter hat die genaue Adresse nicht freigegeben

Weitere Informationen

Sonstiges Besuchen Sie auch gerne unsere Homepage.

www.LUTTER.net

Wir freuen uns auf Ihr Feedback - Ihr LUTTER Immobilien-Team Stichworte Garage vorhanden, Stellplatz vorhanden, Nutzfläche: 143,76 m², Gesamtfläche: 143,76 m², Bundesland: Mecklenburg-Vorpommern

Weitere Services

Lust auf eine Besichtigung?
Eine Frage zur Immobilie?
Nachricht hinzufügen
Mit der Nutzung der oben angegebenen Telefonnummer oder durch Klicken auf „Kontaktieren“ akzeptierst Du die Allgemeinen Nutzungsbedingungen, denen Du jederzeit widersprechen kannst. Weitere Informationen zum Datenschutz

Über den Anbieter

Kröpeliner Straße 57, 18055 Rostock
Herr Norman LutterDein Kontakt
Online-ID: 26XIW5QQRF6M
Referenznummer: 8124
Wie zufrieden bist du mit dieser Seite (nicht mit der Immobilie selbst)?