Kernsanierte 3,5-Zim.-Maisonette-ETW im EH55-Standard!
Kurzbeschreibung
Seltene Gelegenheit in ortkernnaher Randlage von Senden!
Objekt
Seltene Gelegenheit in begehrter Lage von Senden!
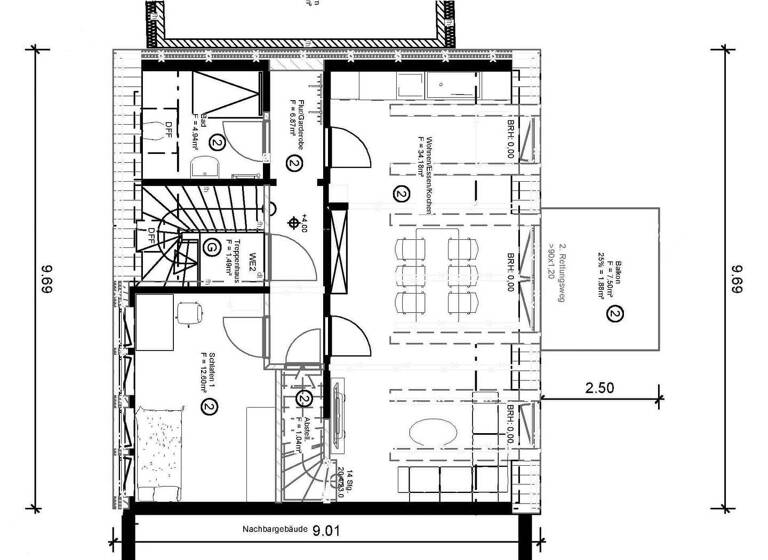
Zum Angebot steht hier eine attraktive, ca. 83m² große 3,5-Zimmer Maisonettewohnung, die im Dachgeschoss und Spitzboden eines Zweiparteienhauses auf ein neubauähnliches Niveau umgebaut, ausgebaut und kernsaniert wird.
In Randlage, aber dennoch ortskernnah gelegen, erwartet Sie hier eine moderne Eigentumswohnung, die nach umfassenden Umbau- und Sanierungsmaßnahmen im Erstbezug einen neuen Besitzer sucht. Ob als Kapitalanlage oder zur Selbstnutzung - hier finden Sie Ihre neue Wohnimmobilie. Insgesamt werden vier Eigentumswohnungen - zwei im Bestandsbau und zwei als Neubau - auf dem Grundstück entstehen. Teileigentum wurde bereits mit notarieller Teilungserklärung gebildet, so dass jede Wohnung über ein eigenes Grundbuch verfügt.
Ursprünglich wurde das Bestandsgebäude 1951 traditionell Stein auf Stein als klassischer 1 ¹/² Stock mit Satteldach auf einem ca. 989m² großen Eigentumsgrundstück erbaut. Durch solide Handwerkskunst steht das Objekt heute noch zeitlos da. Die Massivbauweise besticht durch gute Bauqualität und wird in den nächsten Monaten durch sorgfältige Umbau-/Sanierungs- und Erweiterungsmaßnahmen zu einem zeitgemäßen Wohntraum weiterentwickelt. Ziel der der Maßnahme wird es sein, den Bestand soweit es geht zu erhalten, zu nutzen, ihn gleichzeitig mit modernen Standards zu vereinen und durch ein Anbau zu erweitern.
Im Zuge der Baumaßnahmen wird das bestehende Gebäude in vielen Bereichen erneuert und zum Energieeffizienzhaus (EH) 55 ertüchtigt. So wird ein modernes Wärmedämmverbundsystem (WDVS) und neue Fenster und Türen verbaut, um sowohl den Wohnkomfort als auch die Energieeffizienz zu verbessern. Ein neuer Dachstuhl inkl. Dämmung und Dacheindeckung sorgt dafür, dass das Gebäude in einem modernen und gepflegten Zustand erstrahlen und auch hier der neuste energetische Standard erfüllt sein wird. Die Haustechnik wird vollständig auf den aktuellen Stand gebracht, und eine innovative Luft-Wasser-Wärmepumpenanlage soll das Herzstück der neuen Heizungsanlage bilden. Zudem erhält die komplette Wohnung eine Fußbodenheizung, die für ein angenehmes Wohnklima sorgen wird.
Weiter erwarten Sie im Innenbereich umfassende Umbau- und Sanierungsmaßnahmen. Neben der vollständigen Erneuerung des Bades mit hochwertigen, modernen Fliesen und Sanitäranlagen, wird auch eine ebenerdige, barrierefrei Dusche eingerichtet. Sämtliche restlichen Oberböden der Wohnung erhalten einen attraktiven Designvinylboden, der nicht nur optisch überzeugt, sondern durch seine Beschaffenheit besonders robust und pflegeleicht ist. Moderne, weiße Innentüren werden den Räumen eine helle und einladende Atmosphäre verleihen.
Das Gebäude ist unterkellert. Hier steht der Wohnung neben gemeinschaftlichen Kellerräumen ein eigener, separater Kellerraum zur Verfügung.
Die Wohnung verfügt im Dachgeschoss (1.Etage) über eine große Balkonanlage, die bei herrlicher Sonnenausrichtung mit Blick über Feld und Wiese zum gemütlichen Verweilen im Freien einlädt.
Weiter erhält die Wohnung einen eigenen PKW-Außenstellplatz, der optional gegen Aufpreis mit einem Stromanschluss zur Ladung von E-Autos ausgestattet werden kann.
Die Wohnung wird solides Handwerk, modernste Technik und ein durchdachtes Wohnkonzept zu einem attraktiven Gesamtpaket verbinden.
Haben wir Ihr Interesse geweckt, so fordern Sie gerne das ausführliche Exposé von uns an und vereinbaren einen Besprechungstermin mit uns. Wir freuen uns auf SIE!