Gonsenheim ist immer gut- in diesem gepflegten Haus befindet sich diese sonnige 3 Zimmerwohnung im 3. Stock mit mega Balkon und einer Garage und einem Stellplatz. Straßenbahn in die Stadt und zur Breite Straße vor dem Haus!
Die Wohnung ist an zuverlässige und ordentliche Mieter vermietet, um deren Privatsphäre zu wahren haben wir innen keine Bilder gemacht.
Eine Bitte: Stellen Sie doch Ihre Anfrage mit Ihrem Namen, Telefonnummer und Adressangaben ausschließlich über dieses Portal !
Lust auf Sommer, Sonne, Strand und Meer? Besuchen Sie doch unseren deutschsprachigen Lieblingskollegen in Spanien und lassen sich durch den Zauber Spaniens inspirieren !
https://quintamar.de/immobilien-in-spanien-entdecken/
Hinweis -Die Aufnahme von Verhandlungen mit uns bedeutet die Anerkennung insbesondere nachfolgender Geschäftsbedingungen: Sollten Sie als Empfänger dieses Angebot bereits kennen, bitten wir Sie, uns dies innerhalb von 8 Tagen mit Quellennachweis schriftlich mitzuteilen - andernfalls gilt dieses Angebot als Erstnachweis. Die Weitergabe an Dritte ist nicht gestattet. Alle Angaben erfolgen von uns immer im Namen des Verkäufers; wir übernehmen deshalb hierfür keine eigene Gewähr. Unsere Nachweis- oder Vermittlungsprovision entsteht erst mit Vertragsabschluss und ist - soweit die Angebote keinen entsprechend anders lautenden Hinweis enthalten - vom Käufer zu zahlen und dem Kaufpreis mit 3,57 % inkl. 19 % Mwst. hinzuzurechnen.
Ein Energieausweis ist in Bearbeitung und liegt bei Besichtigung vor.
Merkmale
vermietet
3. Geschoss
separate Küche
Personenaufzug
Keller (gesamt 6 m²)
Garage, Außen-Stellplatz
2 WCs
Balkon
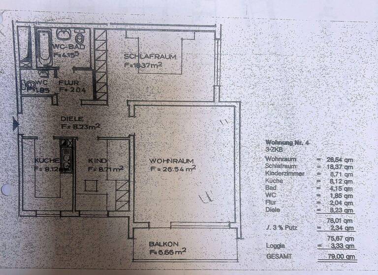
Grundrisse
Grundrisse
1 / 1
Bausubstanz und Energie
Energieausweis
Ein Energieausweis ist für diesen Gebäudetyp nicht notwendig.
Baujahr1972
Preisdetails
Kaufpreis
250000 €250.000 €
3.164,56 €/m²
Provision für Käufer
3,57 % inkl. 19 % Mwst.
Geschätzte Gesamtkosten
276.425 €1
Kaufpreis
250.000 €
Kaufnebenkosten
26.425 €
2
Notarkosten (1,5%)
3.750 €
Grunderwerbsteuer (5%)
12.500 €
Provision für Käufer (3,57%)
8.925 €
Grundbucheintrag (0,5%)
1.250 €
1Der angezeigte Wert ist eine automatisch berechnete Schätzung von immowelt.
2Bei den Angaben handelt es sich um ortsübliche Werte. Individuelle Kosten können abweichen.