
Immobilien - Finanzierungen - Projektentwicklung
Herr Ralf Becker
004 ···
Nr. anzeigenPreise & Kosten
Provision für Käufer
Bitte beachte, das Angebot kann bei Vertragsabschluss die Zahlung einer Provision beinhalten. Weitere Informationen erhältst Du vom Anbieter.
Lage
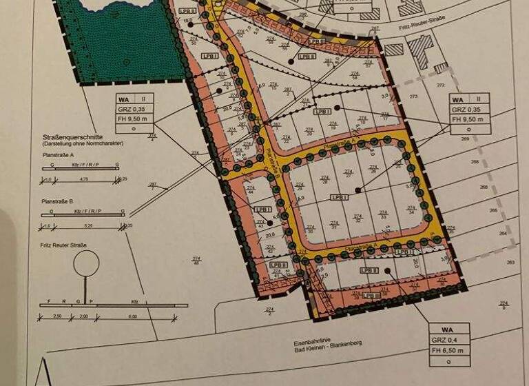
Die Gemeinde Hohen Viecheln liegt sehr exponiert am Ufer der Nordspitze des Schweriner Sees und somit fast mittig zwischen der Landeshauptstadt Schwerin ( 22 km ) und der Hansestadt Wismar ( 16 km ). Der neue Wohnpark befindet sich am Eingang Hohen Viechelns aus dem Nachbarort Bad Kleinen kommend. Bad Kleinen liegt nur 2 km...
Das Grundstück
Details
Objektbeschreibung
Dieses Baugrundstück mit Weitblick und einer Baubindung an die mehrfach ausgezeichnete Firma ARGE Massivhaus GmbH aus Rostock wartet im B-Plan Allgemeines Wohngebiet auf den Interessenten oder die Familie die hier in der achthundertjährigen Gemeinde Hohen Viecheln Ihren Wohnsitz einrichten möchten. Ob Familien mit Kindern...
Ausstattung
- voll erschlossenes Baugrundstück in einer Größe von 506 m²
- Baubindung an die Firma ARGE Massivhaus GmbH aus Rostock - mehrfach ausgezeichnet als fairster Massivhaushersteller
- unverbaubarer Weitblick oberhalb des Schweriner See´s
- 300 m Luftlinie zum Badestrand mit Liegewiese und Volleyballfeldern
- GRZ...
Weitere Informationen
Sonstiges
Besichtigungstermine
Damit Sie einen ersten Eindruck gewinnen können, sind in dem Immobilienangebot wesentliche Daten zusammengefasst. Über das Kontaktmail oder Ihrem persönlichen Anruf können Sie weitere Informationen erhalten. Auf Ihren Wunsch hin, stehen wir Ihnen für eine Besichtigung und...
Anbieter der Immobilie
Immobilien - Finanzierungen - Projektentwicklung
Zum Deichweg 6 B, 23946 Ostseebad Boltenhagen
Online-ID: 2mr235m
Referenznummer: 154
Finde Angebote wie dieses
Hier geht es zu unserem Impressum, den Allgemeinen Geschäftsbedingungen, den Hinweisen zum Datenschutz und nutzungsbasierter Online-Werbung.