Version: 8.24.0Navigation überspringen
Heidenheimer Treuhand GmbH
455.000 €
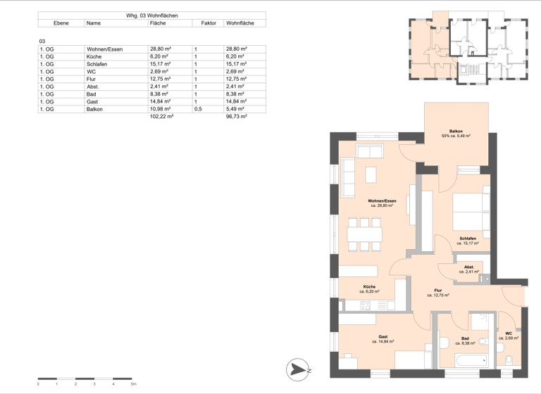
3 Zimmer  •  96,7 m²

Wohnung zum Kauf
455000 €
4.704 €/m²
3 Zimmer  •  96,7 m²

(W03) Stadtnahe Eigentumswohnung in Heidenheim-Mergelstetten

Einziehen & Wohlfühlen - Neubauwohnung mit neuer Einbauküche direkt an der Brenz

.

Die hochwertige Einbauküche wurde gerade neu eingebaut - Sie können sofort einziehen und sich zuhause fühlen!


In attraktiver Lage direkt am idyllischen Ufer der Brenz steht dieses moderne Wohnbauprojekt mit nur 10 Wohneinheiten.

Die Innenstadt mit zahlreichen Cafés, Restaurants und Einkaufsmöglichkeiten erreichen Sie bequem zu Fuß. Auch Ärzte, Apotheken, Banken und weitere Einrichtungen des täglichen Bedarfs befinden sich in unmittelbarer Nähe.



Das Gebäude ist in energiesparender Massivbauweise als KfW-Effizienzhaus 55 (A+) errichtet. Beheizt werden die Wohnungen über eine komfortable Fußbodenheizung, gespeist von einer modernen Luft-Wasser-Wärmepumpe. Eine Photovoltaikanlage unterstützt die Energieversorgung des Allgemeinstroms. Vom Untergeschoss bis ins Dachgeschoss gelangen Sie bequem mit dem Aufzug.



Die großzügig geschnittenen und lichtdurchfluteten Wohnungen verfügen über Balkone oder Dachterrassen.
Sämtliche Wohnräume sind nach Westen ausgerichtet und bieten einen herrlichen Blick Richtung Brenzufer - ideal, um die Abendsonne zu genießen.

DIE VORZÜGE DES NEUBAUPROJEKTS
. Effiziente Massivbauweise
. Helle, grosszügige Wohnungen
. Balkone und Dachterrassen erweitern den Wohnraum nach
außen
. Fussbodenheizung in allen Räumen
. Videosprechanlage
. Luft-Wasser-Wärmepumpe
. Photovoltaikanlage für Allgemeinstrom und Speicher
. Einzelgaragen oder Stellplatz
. Kellerraum zu jeder Wohnung
. Ideal für Eigennutzer und Kapitalanleger

Die zu dieser Wohnung zugeordnete Garage kann für
EUR 32.000,-- erworben werden.

Gerne senden wir Ihnen das Exposé mit allen Grundrissen.

Merkmale

  • Bezug: sofort
Innovative und zukunftsfähige Technik:
Luft-Wasser-Wärmepumpe
Photovoltaikanlage
Dreifachverglaste Kunststofffenster in weiß/grau
Video-Sprechanlage
Aufzug
Einzelgaragen

Grundrisse

Grundrisse
1 / 2

Realisiere Dein Projekt

Bausubstanz und Energie

Energieausweis

A+
  • Baujahr2023
MediumRectangleTop

Preisdetails

Kaufpreis
455000 €
4.703,81 €/m²
Provision für Käufer
provisionsfrei
Das Angebot ist für den Käufer provisionsfrei.
Unsere Angaben basieren auf den Angaben Dritter. Wir übernehmen deshalb für die Richtigkeit und Vollständigkeit keine Haftung. zzgl. MwSt.
Geschätzte Gesamtkosten
486.850 €1
Kaufpreis
455.000 €
Notarkosten (1,5%)
6.825 €
Grunderwerbsteuer (5%)
22.750 €
Grundbucheintrag (0,5%)
2.275 €
1Der angezeigte Wert ist eine automatisch berechnete Schätzung von immowelt.
2Bei den Angaben handelt es sich um ortsübliche Werte. Individuelle Kosten können abweichen.

Lage

address-icon
MergelstettenHeidenheim (89522)
Der Anbieter hat die genaue Adresse nicht freigegeben
Das Wohnhaus liegen in Mergelstetten, dem südlichsten Stadtteil von Heidenheim. direkt an der Verbindungsstraße zu den wichtigsten Arbeitgebern der Stadt Heidenheim. Die Firma Hartmann, Voith und Schwenk Zement sind in wenigen Minuten erreichbar. Auch das Zentrum von Heidenheim ist über die Paul-Hartmann-Straße schnell erreicht. Schulen und Kindergarten sind fußläufig erreichbar.

Weitere Informationen

Stichworte Gemeindecode: 10808135019006

Weitere Services

Lust auf eine Besichtigung?
Eine Frage zur Immobilie?
Nachricht hinzufügen
Mit der Nutzung der oben angegebenen Telefonnummer oder durch Klicken auf „Kontaktieren“ akzeptierst Du die Allgemeinen Nutzungsbedingungen, denen Du jederzeit widersprechen kannst. Weitere Informationen zum Datenschutz

Über den Anbieter

Karlstrasse 3, 89518 Heidenheim
partner badge
6 Jahre Partnerschaft
Frau Iris Junginger
Frau Iris JungingerDein Kontakt
Online-ID: 2d8635b
Referenznummer: A1684
Heidenheimer Treuhand GmbH
title
Heidenheimer Treuhand GmbH
Bewertung: 4,1 von 5 Sternen
Nachricht hinzufügen
Mit der Nutzung der oben angegebenen Telefonnummer oder durch Klicken auf „Kontaktieren“ akzeptierst Du die Allgemeinen Nutzungsbedingungen, denen Du jederzeit widersprechen kannst. Weitere Informationen zum Datenschutz
MediumRectangleTop
MediumRectangleBottom
MediumRectangleTop
Wie zufrieden bist du mit dieser Seite (nicht mit der Immobilie selbst)?