Zeitlose Eleganz mit riesiger Terrasse in El Terreno - Palma de Mallorca
Entdecken Sie dieses außergewöhnliche Apartment in El Terreno, einem der begehrtesten und ruhigsten Wohnviertel Palmas, das mallorquinischen Charme mit modernem Komfort vereint. Diese großzügige Wohnung im ersten Stock eines gepflegten Dreifamilienhauses bietet beeindruckende 212 m² Gesamtfläche - ideal für große Familien, Homeoffice-Nutzer mit Platzbedarf oder Liebhaber geselliger Runden.
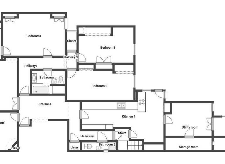
Die Immobilie verfügt über sechs geräumige Doppelschlafzimmer und zwei voll ausgestattete Badezimmer - genug Raum für individuelle Wohnkonzepte. Das helle 60 m² große Wohnzimmer lädt zu entspannten Abenden oder stilvollen Empfängen ein, während die 20 m² große Küche perfekt für Hobbyköche und Alltagskomfort ist.
Das absolute Highlight dieser Immobilie ist die 120 m² große private Terrasse - ein seltenes Juwel in der Stadt. Sie bietet viel Platz zum Sonnenbaden, Essen im Freien oder zum Genießen der offenen Aussicht und der mediterranen Brise. Ein zusätzlicher Balkon unterstreicht den Freiluftcharakter der Wohnung, während die Ost-Ausrichtung für viel Tageslicht von morgens bis zum Nachmittag sorgt.
Der typische Inselstil wurde liebevoll erhalten, gleichzeitig bietet das Objekt modernen Wohnkomfort wie Klimaanlage, elektrische Heizung, Einbauschränke sowie Abstellräume. Das Gebäude stammt aus dem Jahr 1950, umfasst lediglich drei Etagen und vermittelt ein ruhiges, nachbarschaftliches Wohngefühl. Ein automatischer Türöffner sorgt für zusätzlichen Komfort. Hinweis: Kein Aufzug vorhanden.
Highlights der Immobilie: 212 m² Gesamtfläche / 200 m² Wohnfläche 6 Doppelschlafzimmer | 2 Badezimmer 120 m² private Terrasse + Balkon Großzügiges 60 m² Wohnzimmer und 20 m² Küche Klimaanlage und elektrische Heizung Abstellräume und Einbauschränke Ost-Ausrichtung für viel Tageslicht Etage eines gepflegten 3-Parteienhauses (ohne Aufzug) Baujahr 1950, sehr guter Zustand Zur Lage - El Terreno, Palma de Mallorca: Zusätzlich gehört zur Immobilie ein großes Apartment im zweiten Stock mit einer voll ausgestatteten Kitchenette, perfekt für Gäste oder Familienmitglieder, die mehr Privatsphäre wünschen. Ein Hauswirtschaftsraum sowie ein großer Abstellraum sorgen für zusätzlichen Komfort und praktische Nutzungsmöglichkeiten.
Merkmale
1. Geschoss
Einbauküche
Balkon
Terrasse
Fernblick
offener Kamin
Grundrisse
Grundrisse
1 / 2
Virtueller Rundgang
Video
Realisiere Dein Projekt
Bausubstanz und Energie
Möchtest du Details zum Energieverbrauch?
Baujahr1954
Zustand der Immobilieneuwertig
Preisdetails
Kaufpreis
1166550 €1.166.550 €
5.832,75 €/m²
Hausgeld
60 €60 €
Provision für Käufer
provisionsfrei; keine Käuferprovision
Lage
Palma (07015)
Der Anbieter hat die genaue Adresse nicht freigegeben
El Terreno liegt zwischen dem belebten Paseo Marítimo und dem grünen Hügel des Bellver-Parks und ist ein Stadtviertel mit viel Charakter und Geschichte. Einst Treffpunkt von Künstlern und Intellektuellen, ist es heute eine gefragte Wohngegend mit charmanten Gassen, historischen Fassaden und einer ruhigen Atmosphäre. Die Nähe zum Stadtzentrum, zum Hafen, zu internationalen Schulen und kulturellen Einrichtungen macht El Terreno sowohl für Familien als auch für Investoren zu einer Top-Adresse in Palma.
Weitere Informationen
Sonstiges
FALC ist eine international aufgestellte Immobilienagentur, für die Kundenzufriedenheit an erster Stelle steht. Zahlreiche Auszeichnungen belegen dies. Unsere kompetenten Agenten vor Ort sind absolute Kenner des jeweiligen Marktes und freuen sich jederzeit über Ihre Kontaktaufnahme. Machen Sie sich Ihr eigenes Bild und lernen Sie uns am besten persönlich kennen. Wir sind der richtige Ansprechpartner, wenn es um den Kauf oder Verkauf Ihrer Traumimmobilie auf Mallorca geht. Gerne lassen wir Sie hierbei von unserem großen Netzwerk an professionellen Dienstleistern partizipieren, sei es steuerliche oder anwaltliche Beratung, Unterstützung bei der Administration oder Instandhaltung Ihrer Ferienimmobilie. Bitte beachten Sie, dass sämtliche Angaben teilweise oder ganz auf Angaben des Eigentümers beruhen und wir hierfür keine Gewähr übernehmen können. Die Inhalte und Bilder dieses Exposés könnten mithilfe von künstlicher Intelligenz (KI) erstellt worden sein.