

Sterling Immobilien
Herr Maik Sterling
015 ···
Nr. anzeigenPreise & Kosten
Provision für Käufer
Die Käufer-Provision beträgt 3570 Euro inkl. MwSt.
Abschreibung/Anlage
Denkmalschutz-Afa
Lage
Groß Schierstedt ist ein ländlich geprägter Ortsteil der Stadt Aschersleben. Das Anwesen liegt innerhalb des Ortes, eingefriedet und damit klar vom Straßenraum getrennt. Hinter dem Garten öffnet sich der Blick in die Feldflur - dort folgt keine dichte Bebauung mehr, sondern Weite und Landwirtschaft.
Die Umgebung ist...
Das Haus
Kategorie
Einfamilienhaus
Baujahr
1900
Energie & Heizung
Warum sehe ich diese Anzeige? – Du siehst diese Anzeige basierend auf Ihrer Navigation auf unserer Website und den Suchkriterien, die du verwendet hast.
Energieausweis: für diesen Gebäudetyp nicht notwendig
Details
Objektbeschreibung
Achtung: Kein Mietkauf möglich.
In Groß Schierstedt, ruhig eingefriedet im Ort, liegt dieses denkmalgeschützte Objekt mit klassischem Hofcharakter. Wer das Tor passiert, steht im geschützten Innenbereich: rechter Hand die befahrbare Garage, geradeaus das Wohnhaus, links das zweite Gebäude, das wir als Nebengelass...
Ausstattung
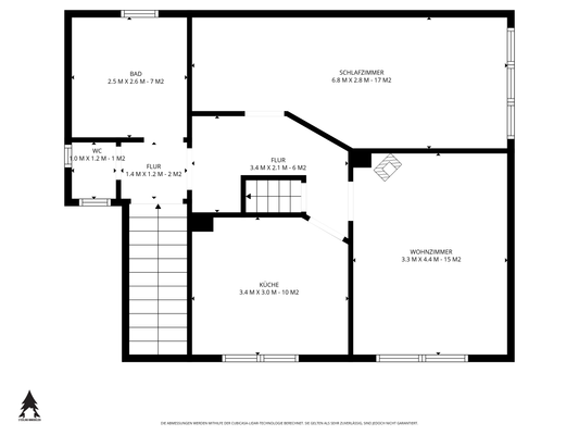
- ca. 690 Quadratmeter Grundstücksgröße
- ca. 65 Quadratmeter Wohnfläche
- Nebengelass
- Dach unbekannt
- Leitungen unbekannt
- Heizung, jeweils einzelne Öl-Öfen, ziehen sich von den Tanks das Öl
- Garten
- Garage
- Fenster, doppelt verglast, Kunststoff
- Baudenkmal
Unter den Dokumenten in...
Weitere Informationen
Sonstiges
Alle Daten in diesem Exposé beruhen auf Angaben des Eigentümers der Immobilie. Die Angaben zum Objekt sind von uns, Sterling-Immobilien.de, mit großer Sorgfalt zusammengestellt worden. Wir übernehmen keine Haftung für die Angaben des Angebotes, welche uns der Verkäufer/Anbieter übermittelt hat. Irrtümer bleiben...
Dokumente
Anbieter der Immobilie
Sterling Immobilien
Drosselweg 4, 06467 Hoym

Online-ID: 2mk5k5q
Referenznummer: SI-997
Finde Angebote wie dieses
Hier geht es zu unserem Impressum, den Allgemeinen Geschäftsbedingungen, den Hinweisen zum Datenschutz und nutzungsbasierter Online-Werbung.