Version: 8.22.6Navigation überspringen
Decus Immobilien GmbH
499.000 €
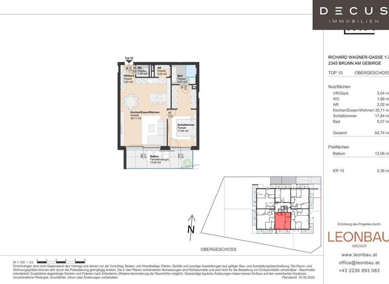
2 Zimmer  •  64,7 m²  •  1. Geschoss

Wohnung zum Kauf • provisionsfrei
499000 €
7.708 €/m²
2 Zimmer  •  64,7 m²  •  1. Geschoss

| PROVISIONSFREI | 2-ZIMMER | BALKON |

PROVISIONSFREIER NEUBAU MIT AUSSERGEWÖHNLICHER ARCHITEKTUR

 

AUSSTATTUNG

 

*
Heizsystem: Fernwärme der EVN für energieeffiziente und nachhaltige Beheizung

*
Sonnenschutz: Raffstores-Außenjalousien für optimalen Licht- und Wärmeschutz

*
Freiflächen:

*
Jede Wohnung verfügt über eine Terrasse, einen Balkon oder eine Dachterrasse

*
Erdgeschosswohnungen mit großzügigen Privatgärten

*
Dachgeschoss:

*
Exklusive Dachterrassen mit weitem Blick

*
Klimaanlage in allen DG-Wohnungen

*
Bodenbeläge: Individuelle Auswahlmöglichkeit - im Kaufpreis inkludiert

*
Küchen: Wohnungen werden ohne Küche übergeben, ansonsten voll ausgestattet

*
Provisionsfrei: Alle Wohnungen sind provisionsfrei

*
Stellplätz: Kosten eines Stellplatzes EUR 30.000 

 

ECKDATEN

 

*
Anzahl der Wohnungen: 17

*
Tiefgaragenstellplätze: 27

*
Wohnungsgrößen: Unterschiedliche Grundrisse für individuelle Bedürfnisse

*
Gebäudeart: Moderner Neubau mit hochwertiger Bauweise

*
Status: Provisionsfreier Erwerb

LAGE

 

Das Projekt befindet sich in Brunn am Gebirge, einer begehrten Wohngegend im Süden Wiens:

*
Verkehrsanbindung: Nähe zur Autobahnauffahrt ermöglicht schnelle Anbindungen in die Stadt und in die umliegenden Regionen

*
Infrastruktur: Einkaufsmöglichkeiten, Schulen, Kindergärten und Freizeitangebote befinden sich in unmittelbarer Umgebung

*
Lebensqualität: Ruhige Lage kombiniert mit idealer Erreichbarkeit der Stadt Wien

 

Bitte nehmen Sie zur Kenntnis, dass es sich bei den gezeigten Fotos um andere Wohnungen dieses Projekts, bzw. KI generierte Inhalte handeln kann. Bitte orientieren Sie sich am Plan.

Wir weisen darauf hin, dass zwischen dem Vermittler und dem zu vermittelnden Dritten ein familiäres oder wirtschaftliches Naheverhältnis besteht.

DECUS Immobilien GmbH - Wir beleben Räume

Für weitere Informationen und Besichtigungen steht Ihnen gerne Herr Ing. Nicolas Putzlager unter der Mobilnummer +43 660 302 61 70 und per E-Mail unter putzlager@decus.at persönlich zur Verfügung.

www.decus.at | office@decus.at 

 

Wichtige Informationen

Bitte beachten Sie, dass per 13.06.2014 eine neue Richtlinie für Fernabsatz- und Auswärtsgeschäfte in Kraft getreten ist.

Ab 1.4.2024 entfallen die Grundbuchs- und Pfandrechtseintragungsgebühren vorübergehend für Eigenheime bis zu einer Bemessungsgrundlage von EUR 500.000,-. Voraussetzung ist das dringende Wohnbedürfnis, ausgenommen davon sind vererbte oder geschenkte Immobilien. Die Befreiung ist jedoch für den Einzelfall zu prüfen, DECUS Immobilien übernimmt hierzu keine Haftung.

Ab 01.07.2023 gilt das Erstauftraggeber-Prinzip bei Wohnungsmietverträgen, ausgenommen davon sind Dienst-/Natural-/Werkswohnungen. Wir dürfen gem. § 17 Maklergesetz darauf hinweisen, dass wir auf die Doppelmaklertätigkeit gem. § 5 Maklergesetz bei Wohnungsmietverträgen verzichten und nur noch einseitig tätig sind (bei den restlichen Vermittlungsarten nicht) und ein wirtschaftliches Naheverhältnis zu unseren Auftraggebern besteht. 

Im Falle eines Abschlusses mit Ihnen oder einem von Ihnen namhaft gemachten Dritten bzw. bei beidseitiger Willensübereinstimmung beträgt unser Honorar (lt. Honorarverordnung für Immobilienmakler) 2 Bruttomonatsmieten (BMM) bei Dienst-/Natural-/Werkwohnungen sowie Suchaufträgen, 3 BMM bei Gewerbe-, PKW-, Keller- und Lagermietverträgen sowie bei Kaufobjekten 3 % des Kaufpreises, zuzüglich der gesetzlichen Umsatzsteuer.

Dieses Objekt wird Ihnen unverbindlich und freibleibend angeboten. Oben angeführte Angaben basieren auf Informationen und Unterlagen des Eigentümers und sind unsererseits ohne Gewähr.

Nähere Informationen sowie unsere AGBs und die Nebenkostenübersichtsblatt finden Sie auf unserer Homepage www.decus.at unter "Service" - "Rechtliches zum FAGG" sowie im Anhang der zugesendeten Objekt-Exposés!

Infrastruktur / Entfernungen

Gesundheit
Arzt <250m
Apotheke <500m
Klinik <3.500m
Krankenhaus <2.500m

Kinder & Schulen
Schule <750m
Kindergarten <750m
Universität <8.500m
Höhere Schule <4.500m

Nahversorgung
Supermarkt <500m
Bäckerei <1.000m
Einkaufszentrum <1.750m

Sonstige
Bank <500m
Geldautomat <500m
Post <1.000m
Polizei <750m

Verkehr
Bus <250m
U-Bahn <2.500m
Straßenbahn <3.250m
Bahnhof <1.000m
Autobahnanschluss <750m

Angaben Entfernung Luftlinie / Quelle: OpenStreetMap

Merkmale

  • 1. Geschoss
  • Balkon

Grundrisse

Grundrisse
1 / 1

Virtueller Rundgang

3D tour

Realisiere Dein Projekt

Bausubstanz und Energie

Heizwärmebedarf (HWB)

B

Gesamtenergieeffizienz (fGEE)

A
  • Baujahr2025
  • Zustand der ImmobilieNeubau
MediumRectangleTop

Preisdetails

Kaufpreis
499000 €
7.707,75 €/m²
Provision für Käufer
provisionsfrei; Provision bezahlt der Abgeber.

Lage

address-icon
Brunn am Gebirge (2345)
Der Anbieter hat die genaue Adresse nicht freigegeben
Brunn am Gebirge

Weitere Informationen

Stichworte Nutzfläche: 77,80 m², Anzahl der Badezimmer: 1, Anzahl der separaten WCs: 1, Anzahl Balkone: 1, Balkon-Terrassen-Fläche: 13,06 m², Bundesland: Niederösterreich, 3 Etagen

Weitere Services

Lust auf eine Besichtigung?
Eine Frage zur Immobilie?
Nachricht hinzufügen
Mit der Nutzung der oben angegebenen Telefonnummer oder durch Klicken auf „Kontaktieren“ akzeptierst Du die Allgemeinen Nutzungsbedingungen, denen Du jederzeit widersprechen kannst. Weitere Informationen zum Datenschutz

Über den Anbieter

Kärtner Straße 39/Annagasse 1, 1010 WIEN
partner badge
6 Jahre Partnerschaft
Herr Nicolas PutzlagerDein Kontakt

Weitere Unterlagen

Online-ID: 2nmqp5h
Referenznummer: OBGC20250926142914023cd29d787e9
Decus Immobilien GmbH
Decus Immobilien GmbH
Bewertung: 4,5 von 5 Sternen
Nachricht hinzufügen
Mit der Nutzung der oben angegebenen Telefonnummer oder durch Klicken auf „Kontaktieren“ akzeptierst Du die Allgemeinen Nutzungsbedingungen, denen Du jederzeit widersprechen kannst. Weitere Informationen zum Datenschutz
MediumRectangleTop
MediumRectangleBottom
MediumRectangleTop
Wie zufrieden bist du mit dieser Seite (nicht mit der Immobilie selbst)?