Version: 8.25.1Navigation überspringen
70.000 €
2 Zimmer  •  42,3 m²  •  frei ab sofort
Immowelt logo

Wohnung zum Kauf
70000 €
1.655 €/m²
2 Zimmer  •  42,3 m²  •  frei ab sofort

Eigentumswohnung in ruhiger Lage

Im Erdgeschoss eines Mehrfamilienhauses mit insgesamt 40 Wohnungen befindet sich diese Einheit. Sie liegt in einem ruhigen und einladenden Wohnviertel, das von gepflegten Einfamilien- und Mehrfamilienhäusern umgeben ist. Die kleinen Grünflächen in der Umgebung tragen zu einer harmonischen Nachbarschaft bei und schaffen eine entspannte Atmosphäre zum Wohnen.

Merkmale

  • frei ab sofort
  • Badezimmer: Badewanne, Bad mit Fenster
  • Bodenbelag: Fliesen, Linoleum, Teppich
  • Balkon
  • Fernblick
  • Fenster: Kunststoff
  • Reinigungsservice
In der 2-Raum-Wohnung erwartet Sie ein Bad, das mit einer Badewanne und einem Fenster ausgestattet ist, was für eine angenehme Belüftung sorgt. Der Fußboden im Schlafzimmer und Wohnzimmer ist mit einem Teppichboden versehen, während im Flur pflegeleichter Linoleum verlegt ist. Die Küche bietet Ihnen Platz für kreatives Kochen, und der Trockenplatz auf dem Boden ermöglicht es Ihnen, Ihre Wäsche bequem zu trocknen. Der Balkon lädt für gemütliche Stunden und Entspannung ein. Zusätzlichen Stauraum finden Sie im Keller, der Ihnen darüber hinaus wertvollen Platz für Alltagsgegenstände bietet. Für Ihren PKW stehen Parkmöglichkeiten direkt vor dem Haus zur Verfügung.

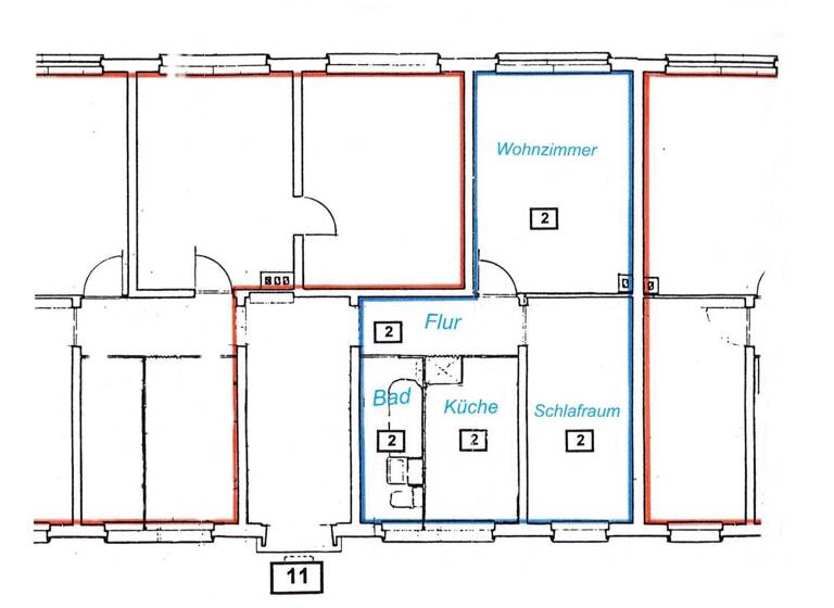
Grundrisse

Grundrisse
1 / 1

Realisiere Dein Projekt

Bausubstanz und Energie

Energieausweis

E
  • Baujahr1972
  • HeizungsartZentralheizung
  • EnergieträgerGas
Immowelt logo

Preisdetails

Kaufpreis
70000 €
1.654,85 €/m²
Hausgeld
158.33 €
Provision für Käufer
3,57 % der Kaufsumme inkl. gesetzlicher MwSt. für den Käufer
Geschätzte Gesamtkosten
77.399 €1
Kaufpreis
70.000 €
Notarkosten (1,5%)
1.050 €
Grunderwerbsteuer (5%)
3.500 €
Provision für Käufer (3,57%)
2.499 €
Grundbucheintrag (0,5%)
350 €
1Der angezeigte Wert ist eine automatisch berechnete Schätzung von immowelt.
2Bei den Angaben handelt es sich um ortsübliche Werte. Individuelle Kosten können abweichen.

Lage

address-icon
Heinrich-Heine-Straße 11Wernigerode (38855)
In einem ruhigen Wohngebiet gelegen, bietet diese Immobilie ein ideales Umfeld für Familien und Berufstätige. Die bequeme Erreichbarkeit von Einkaufsgelegenheiten, Schulen und Kindergärten sorgt für ein stressfreies Alltagsleben, während die lebendige Innenstadt von Wernigerode ebenfalls schnell sowohl mit dem Auto als auch mit öffentlichen Verkehrsmitteln erreichbar ist. Diese Kombination aus Wohnkomfort und Lebensqualität macht das Gebiet besonders attraktiv. Spaziergänge in der Umgebung können die Entspannung fördern und kulturelle Erlebnisse in der Stadt bereichern das Freizeitangebot für alle Altersgruppen.

Weitere Informationen

Heizungsart: Heizkoerper

Weitere Services

Lust auf eine Besichtigung?
Eine Frage zur Immobilie?
Nachricht hinzufügen
Mit der Nutzung der oben angegebenen Telefonnummer oder durch Klicken auf „Kontaktieren“ akzeptierst Du die Allgemeinen Nutzungsbedingungen, denen Du jederzeit widersprechen kannst. Weitere Informationen zum Datenschutz

Über den Anbieter

Salzbergstraße 2, 38855 Wernigerode
partner badge
6 Jahre Partnerschaft
Frau Sandra  Wolf
Frau Sandra WolfDein Kontakt
Online-ID: 26FHIBQ7VI86
Haus und Grund Harz e. V.
title
Haus und Grund Harz e. V.
Bewertung: 4,6 von 5 Sternen
Nachricht hinzufügen
Mit der Nutzung der oben angegebenen Telefonnummer oder durch Klicken auf „Kontaktieren“ akzeptierst Du die Allgemeinen Nutzungsbedingungen, denen Du jederzeit widersprechen kannst. Weitere Informationen zum Datenschutz
Wie zufrieden bist du mit dieser Seite (nicht mit der Immobilie selbst)?