
IMMOPARTNER-Ortenau
Herr Dietmar Roth
078 ···
Nr. anzeigenPreise & Kosten
Provision für Käufer
Der Erwerb ist für Sie provisionsfrei!
Lage
Hofstetten, ist ein sehr schönes Seitental, an der Kinzig gelegen. Sie Stadt liegt auf einer Höhe von ca. 260 m und hat ca. 1.800 Einwohner.
Hofstetten ist ein idyllisches Städtchen, in Mitten der Natur. Ein sehr attraktiver Wohnort, ohne Durchgangsverkehr. In dem Ort gibt es eine Bäckerei/Café sowie bekannte Gasthäuser...
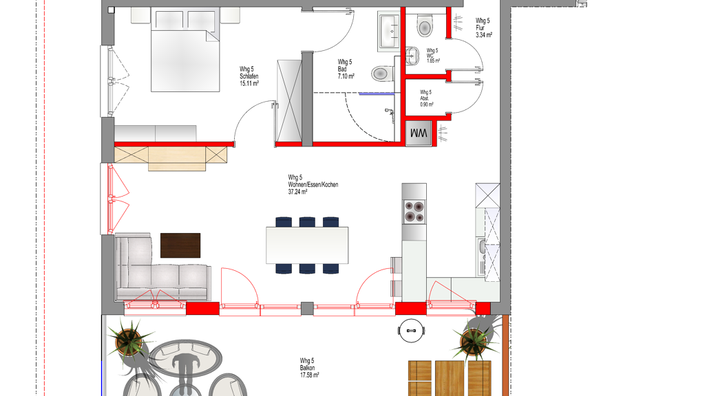
Die Wohnung
Kategorie
Apartment
Bezug
sofort
Wohnanlage
Energie & Heizung
Warum sehe ich diese Anzeige? – Du siehst diese Anzeige basierend auf Ihrer Navigation auf unserer Website und den Suchkriterien, die du verwendet hast.
Weitere Energiedaten
Heizungsart
Luft-/Wasser-Wärmepumpe
Details
Objektbeschreibung
Am Südhang von Hofstetten, entstehen 9 neue und hell gestaltete Eigentumswohnungen.
Der Grundriss Ihrer 2 Zimmer-Maisonette-Wohnung ist offen, modern und großzügig gestaltet.
Von der großen Terrasse und den Balkonen genießen Sie einen herrlichen Ausblick ins Tal.
Mit dem Personenaufzug gelangen Sie von der...
Ausstattung
Die modernen Wohnungen sind derzeit im Bau. Die modernen Tiefgaragen, sind bequem von der Straße aus anzufahren. Vor dem Haus, befinden sich mehrere Stellplätze. Die Wohnungen werden alle altersgerecht und barrierefrei gestaltet. Im Haus befindet sich ein moderner Personenaufzug, welcher von der Tiefgarage aus genutzt werden...
Weitere Informationen
Sonstiges
Vereinbaren Sie ein persönlichen Termin, für eine Besichtigung der Lage Ihrer Wohnung.
Stichworte
Garage vorhanden, Stellplatz vorhanden, Nutzfläche: 6,00 m², Anzahl der Schlafzimmer: 1, Anzahl der Badezimmer: 1, Anzahl der separaten WCs: 1, Anzahl Terrassen: 1, 3 Etagen, Lage im...
Anbieter der Immobilie
IMMOPARTNER-Ortenau
Hauptstr. 49, 77716 Haslach i.K.
Weitere Angebote des Anbieters
Online-ID: 2cads59
Referenznummer: 1036#qGdxQ