

Wohnung zum Kauf - Erstbezug458000 €6.430 €/m²2 Zimmer • 71,2 m²
458000 €
6.430 €/m²
2 Zimmer • 71,2 m²
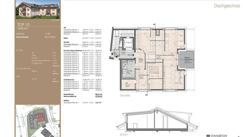
Voggenberg 2: 2-Zimmer-Dachgeschosswohnung Top 10
Merkmale
- Bezug: Frühjahr 2026
- Dachgeschoss
- Personenaufzug
- Balkon
- Bad mit Dusche
- Bodenbelag: Fliesen, Parkett
Realisiere Dein Projekt
Bausubstanz und Energie
Der Anbieter hat keine Informationen zum Energieverbrauch bereit gestellt.
- Zustand der ImmobilieNeubau, Massivhaus, Erstbezug
- HeizungsartFußbodenheizung
- EnergieträgerSolar, Luft-/Wasser-Wärmepumpe
Preisdetails
Kaufpreis
458000 €
6.429,88 €/m²
Provision für Käufer
Bitte beachte, das Angebot kann bei Vertragsabschluss die Zahlung einer Provision beinhalten. Weitere Informationen erhältst Du vom Anbieter.
Weitere Preisinformationen
Hausgeld = brutto Betrag, inkl. Heizung
Geschätzte Gesamtkosten
499.541 €1
Kaufpreis
458.000 €
Kaufnebenkosten
41.541 €
2Notarkosten (1,5%)
6.870 €
Grunderwerbsteuer (3,5%)
16.030 €
Provision für Käufer (3,57%)
16.351 €
Grundbucheintrag (0,5%)
2.290 €
1Der angezeigte Wert ist eine automatisch berechnete Schätzung von immowelt.
2Bei den Angaben handelt es sich um ortsübliche Werte. Individuelle Kosten können abweichen.
Lage

Voggenbergstraße 2, Surheim, Saaldorf-Surheim (83416)
Weitere Informationen
Weitere Services
Lust auf eine Besichtigung?
Eine Frage zur Immobilie?
Über den Anbieter
Bau I Holz I Immobilien HillebrandMaklerbüro
Krimpling 1, Wals Wals
10 Jahre Partnerschaft
Herr Mike MederakeDein Kontakt
Online-ID: 2dy6e5u
Referenznummer: OBGC202210031555348255ea11cdb6f

Bau I Holz I Immobilien Hillebrand
Wie zufrieden bist du mit dieser Seite (nicht mit der Immobilie selbst)?

