Version: 8.26.0Navigation überspringen
448.000 €
3 Zimmer  •  79 m²  •  EG
Immowelt logo

Wohnung zum Kauf
448000 €
5.671 €/m²
3 Zimmer  •  79 m²  •  EG

Barrierearme 3 Zimmer Eigentumswohnung (EG) in zentraler Lage von Eutin für den gehobenen Anspruch

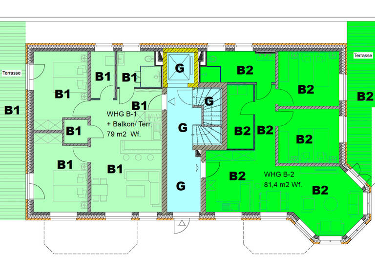
Diese barrierearme Eigentumswohnung befindet sich in einer, in massiver Bauweise errichteten Wohnanlage mit 14 Wohneinheiten, aufgeteilt auf zwei Baukörper. Die hier angebotene 3-Zimmer Wohnung (Nr. B1) im Erdgeschoss des Hauses B verfügt über ca. 79 m² Wohnfläche. Über das Treppenhaus gelangen Sie zur Wohnung. Es empfängt Sie ein offener Eingangsbereich, der direkt in den offen gestalteten Wohn-/Küchen-/Essbereich übergeht. Die beiden Schlafzimmer verfügen über direkten Zugang zur nach Westen ausgerichteten Terrasse. Zudem verfügt die Wohnung über ein Badezimmer mit ebenerdiger Dusche sowie einen HWR und ein separaten Abstellraum. Fußbodenheizung und die durchdachte architektonische Planung sind nur Beispiele für modernen Wohnkomfort und die hochwertige Bauausführung des ortsansässigen Bauherren. Malerarbeiten (Wand- und Deckenanstriche auf Malervlies in weiss) sind im Kaufpreis enthalten, ebenso Bodenbeläge aus hochwertigen Design-Vinylplanken in Holzoptik. Ein PKW Stellplatz kann optional für € 15.000,- erworben werden. Weitere bautechnische Details und im Kaufpreis enthaltende Leistungen, wie z.B. die Ausstattung der Badezimmer, stellen wir Ihnen im Rahmen einer Bau- und Leistungsbeschreibung gerne auf Wunsch zur Verfügung.

Merkmale

  • Bezug: 2026
  • Erdgeschoss
  • Personenaufzug
  • offene Küche
  • Badezimmer: Bad mit Dusche, Bad mit Fenster
  • Terrasse
  • Außen-Stellplatz
- barrierearme Bauausführung
- energieeffiziente Bauweise
- Wärmeversorgung über Wärmepumpe
- Glasfaser
- Fahrstuhl
- Stellplatz für € 15.000,- zusätzlich zu erwerben
- Malerarbeiten (Wand- und Deckenanstriche auf Malervlies in weiss) inkl.
- Nähere Details zu Bauausführung und Ausstattung der Bodenbeläge und Badezimmerausführung erhalten Sie auf Anfrage in der Bau- und Leistungsbeschreibung
- Zahlung erst nach Fertigstellung und Schlüsselübergabe

Grundrisse

Grundrisse
1 / 1

Bausubstanz und Energie

Energieausweis

A+
  • Baujahr2025
  • HeizungsartFußbodenheizung
  • EnergieträgerLuft-/Wasser-Wärmepumpe
Immowelt logo

Preisdetails

Kaufpreis
448000 €
5.670,89 €/m²
Preis pro Stellplatz
15000 €
Provision für Käufer
2,38% des Kaufpreises inkl. gesetzl. MwSt.
Weitere Preisinformationen
1 Stellplatz, Kaufpreis: 15.000,00 EUR
Geschätzte Gesamtkosten
496.742 €1
Kaufpreis
448.000 €
Notarkosten (1,5%)
6.720 €
Grunderwerbsteuer (6,5%)
29.120 €
Provision für Käufer (2,38%)
10.662 €
Grundbucheintrag (0,5%)
2.240 €
1Der angezeigte Wert ist eine automatisch berechnete Schätzung von immowelt.
2Bei den Angaben handelt es sich um ortsübliche Werte. Individuelle Kosten können abweichen.

Lage

address-icon
Eutin (23701)
Der Anbieter hat die genaue Adresse nicht freigegeben
Diese hochwertig gebaute und ausgestattete Wohnung empfängt Sie in einer begehrten und absolut zentralen Wohnlage Eutins. Nur wenige Gehminuten entfernt liegt der Große Eutiner See, welcher zu Spaziergängen oder auch zum Wassersport einlädt. Ebenso erreichen Sie die moderne Schwimmhalle, das Freibad sowie die Eutiner Innenstadt innerhalb weniger Gehminuten. Mit Ärzten, Behörden, verschiedenen Schulformen, sämtlichen Einkaufsmöglichkeiten und dem beliebten Wochenmarkt lässt der Stadtkern in direkter Nähe von Eutin keine Wünsche offen. Die Rosenstadt Eutin ist als Kreisstadt und Zentrum der Holsteinischen Schweiz mit ca. 17.000 Einwohnern auch historisches und kulturelles Zentrum der Region. Das Schloss, die hübschen Altstadthäuser und die einzigartige Wald- und Seenlandschaft machen Eutin zu einem begehrten Wohnsitz für Jung und Alt. Eutin liegt in etwa mittig zu der Hansestadt Lübeck und der Landeshauptstadt Kiel und ist mit dem Auto über die A1 (Hamburg-Lübeck) gut zu erreichen. Der in wenigen Minuten erreichbare Bahnhof bietet eine optimale Anbindung an den öffentlichen Nahverkehr mit direkten Verbindungen nach Kiel und Lübeck. Lübeck wird in ca. 25 Minuten und Kiel in ca. 35 Minuten mit der Regionalbahn erreicht. Auch die nahe gelegene B76 und die Autobahn A1 sorgen für sehr guten Anschluss an das Straßennetz. So sind die Ostseestrände von der Lübecker Bucht, wie z.B. Scharbeutz und Timmendorfer Strand, in ca. 20 Autominuten zu erreichen.

Weitere Informationen

Stichworte Anzahl der Schlafzimmer: 2, Anzahl der Badezimmer: 1, Anzahl Terrassen: 1 Zustand: Erstbezug, projektiert Sonstiges/Wohnen: seniorengerechtes Wohnen

Weitere Services

Lust auf eine Besichtigung?
Eine Frage zur Immobilie?
Nachricht hinzufügen
Mit der Nutzung der oben angegebenen Telefonnummer oder durch Klicken auf „Kontaktieren“ akzeptierst Du die Allgemeinen Nutzungsbedingungen, denen Du jederzeit widersprechen kannst. Weitere Informationen zum Datenschutz

Über den Anbieter

Peterstr. 12, 23701 Eutin
partner badge
3 Jahre Partnerschaft
Frau Kristin DobeDein Kontakt
Online-ID: 25D8KJQ5IHUX
Referenznummer: Immobilie-203_B1
Wie zufrieden bist du mit dieser Seite (nicht mit der Immobilie selbst)?