Version: 8.22.4Navigation überspringen
1.350.000 €
2 Zimmer  •  124,3 m²  •  2. Geschoss
Immowelt logo

Wohnung zum Kauf - Erstbezug
1350000 €
10.861 €/m²
2 Zimmer  •  124,3 m²  •  2. Geschoss

Wahrer Luxus entsteht, wenn die Privatsphäre stimmt: 124 m² Dachgeschosswohnung, Mils bei Hall

Wir definieren "Premium Wohnen" nicht ausschließlich über die verwendeten Materialien und Oberflächen - wahrer Luxus entsteht, wenn die Privatsphäre stimmt!

Unbelastete Grundstücke sind selten - auf diesem Bauplatz stört uns weder die Autobahn noch die Bahn, keine Stromleitungen oder Handymasten. Der Ausblick ist durch die leichte Hanglage unverbaubar. Hier findet sich vorwiegend kleinteilige Bebauung, Berge, Wiesen, Felder, Ruhe und frische Luft...soweit das Auge reicht.

 

Design und Komfort - Premium-Wohnen für Sie

VILLA DIANA in Mils: exklusives Wohnprojekt mit nur sechs barrierefreien Wohnungen in großartiger Ruhelage nahe dem Dorfkern, mit Südwest-Ausrichtung, hochwertiger Ausstattung, viel Privatsphäre und zwei Garagenplätzen pro Einheit. Die VILLA DIANA vereint die Vorzüge eines Einfamilienhauses und die einer Wohnanlage.

 

Die VILLA DIANA besteht aus zwei Gebäudeteilen, die sich wie Flügel auf dem Grundstück erheben, so dass jede Wohnung über größtmögliche Privatsphäre verfügt. 

* Grundstück in absoluter Ruhelage mit herrlicher Aussicht, trotzdem verkehrsgünstig gelegen
* perfekte Süd-Westausrichtung der Wohnungen
* großzügiges offenes Wohnen, lichtdurchflutet und barrierefrei
* gemütliche Außenflächen mit viel Privatsphäre
* hochwertige geschmackvolle Materialwahl und Ausstattung
* individuelle Planung abweichend von der Grundausstattung möglich
* Sicherheit und zeitgemäße technische Standards wie versperrte Tiefgarage, Personenlift, energieeffiziente Heizung, Photovoltaikanlage, Wärme- Schalldämmung, Barrierefreiheit vom Keller bis zum Dach, einbruchhemmende Türen, Holz/Alufenster, Videosprechanlage, usw.
* für jede Wohnung sind zwei Garagenparkplätze reserviert zum Preis von je Euro 35.000,-

 

Das Wohnbauprojekt wurde für Personen konzipiert, die eine barrierefreie Wohnung mit allem Komfort und Sicherheit in bester Ruhelage suchen! 

Rufen Sie uns an und sichern Sie sich Ihren Wohntraum in diesem exklusiven Wohnbauprojekt!

Villa Diana in Mils - Wohnen auf höchstem Niveau - Exklusivität wird Realität:
Sechs barrierefreie Wohnungen mit allem Komfort, in Ruhelage, nahe dem Dorfkern.

 

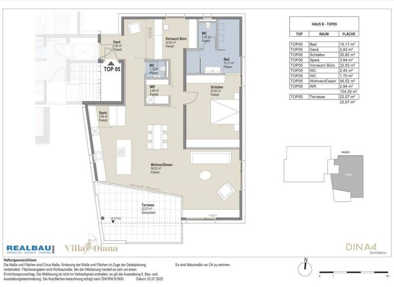
TOP 05 - Lebensumfeld

 

Ankommen: Sie wollen nicht einfach etwas kaufen, Sie wollen ankommen? Die Dachgeschosswohnung Top 05 bietet auf knapp 125 m² nicht nur die klassischen Fakten in Sachen Qualität, Nachhaltigkeit und Lebensqualität, sie bietet Selbstverständnis und Klarheit im gehobenen Segment.

Offenheit und Eleganz verspürt man, wenn sich der Personenlift direkt in der Wohnung öffnet. Das durchdachte Raumkonzept ist umsichtig geplant. Die Küche mit Speis und der Essbereich bilden das Herz der Top 05 - das Wohnzimmer eine Nische der Geborgenheit.

Das Schlafzimmer verfügt über einen privaten Sanitärbereich, der auf Wunsch zur Wellnessoase umgestaltet werden kann, Dampfbad, Sauna, ... vieles ist denkbar. Im nördlichen Bereich der Wohnung findet ein Büro oder ein zweites Schlafzimmer Platz, die Garderobe und der Wirtschaftraum runden das Raumkonzept ab und beherbergen notwendige Infrastruktur.

 

Außergewöhnlich: Die besondere Atmosphäre dieser Wohnung nimmt auf der südlich ausgerichteten Dachterrasse Gestalt an. Die außergewöhnliche Aussicht ist unverbaubar. Mehr wie 180 Grad weit ist der Blickwinkel, der vom Oberland bis ins Unterland reicht. Hier bekommt der Begriff "Lebensumfeld" eine neue Bedeutung.

Infrastruktur / Entfernungen

Gesundheit
Arzt <425m
Apotheke <550m
Klinik <1.875m
Krankenhaus <1.575m

Kinder & Schulen
Schule <175m
Kindergarten <225m
Höhere Schule <7.625m
Universität <1.375m

Nahversorgung
Supermarkt <1.025m
Bäckerei <1.025m
Einkaufszentrum <6.250m

Sonstige
Bank <450m
Geldautomat <450m
Post <350m
Polizei <2.175m

Verkehr
Bus <150m
Straßenbahn <5.800m
Autobahnanschluss <1.575m
Bahnhof <2.475m

Angaben Entfernung Luftlinie / Quelle: OpenStreetMap

Merkmale

  • Dachgeschoss, 2. Geschoss
  • Personenaufzug
  • 2 Stellplätze: 2 Garagen
  • Gäste-WC
  • Terrasse
  • Barrierefrei, Rollstuhlgerecht
  • Raumaufteilung flexibel
  • Badezimmer: Badewanne, Bad mit Dusche, Bad mit Fenster

Grundrisse

Grundrisse
1 / 4

Realisiere Dein Projekt

Bausubstanz und Energie

Heizwärmebedarf (HWB)

B

Gesamtenergieeffizienz (fGEE)

A
  • Baujahr2026
  • Zustand der ImmobilieNeubau, Erstbezug
  • HeizungsartFußbodenheizung
  • EnergieträgerLuft-/Wasser-Wärmepumpe
Immowelt logo

Preisdetails

Kaufpreis
1350000 €
10.860,82 €/m²
Provision für Käufer
Bitte beachte, das Angebot kann bei Vertragsabschluss die Zahlung einer Provision beinhalten. Weitere Informationen erhältst Du vom Anbieter.
Weitere Preisinformationen
2 Garagenstellplätze

Lage

address-icon
Jagdweg 1Mils (6068)

Weitere Informationen

Sonstiges
Projekt-Homepage - https://www.realbau.at/wohnbauprojekte/villa-diana/ Stichworte Tiefgarage vorhanden, Süd-Balkon/Terrasse, Fahrradraum, Anzahl der Badezimmer: 1, Anzahl der separaten WCs: 2, Anzahl Terrassen: 1, Balkon-Terrassen-Fläche: 22,07 m², Kellerfläche: 9,50 m², Bundesland: Tirol, 4 Etagen, Wohnungsnr.: Top 05 Sonstiges/Wohnen: seniorengerechtes Wohnen

Weitere Services

Lust auf eine Besichtigung?
Eine Frage zur Immobilie?
Nachricht hinzufügen
Mit der Nutzung der oben angegebenen Telefonnummer oder durch Klicken auf „Kontaktieren“ akzeptierst Du die Allgemeinen Nutzungsbedingungen, denen Du jederzeit widersprechen kannst. Weitere Informationen zum Datenschutz

Über den Anbieter

Realbau GmbH
Realbau GmbHMaklerbüro
Brockenweg 2, 6060 Hall in Tirol
partner badge
6 Jahre Partnerschaft
Frau Eva Maria KremsmairDein Kontakt

Weitere Unterlagen

Online-ID: 2nz4m56
Referenznummer: OBGC20250710153449084bac8040382
Realbau GmbH
Realbau GmbH
Nachricht hinzufügen
Mit der Nutzung der oben angegebenen Telefonnummer oder durch Klicken auf „Kontaktieren“ akzeptierst Du die Allgemeinen Nutzungsbedingungen, denen Du jederzeit widersprechen kannst. Weitere Informationen zum Datenschutz
Wie zufrieden bist du mit dieser Seite (nicht mit der Immobilie selbst)?