Die Doppelhaushälfte wurde im Bungalowstil errichtet. Das Ursprungsbaujahr wurde um 1965 ermittelt. Zum Zeitpunkt der Errichtung wurde es von der LPG als Bürogebäude genutzt.
Mit viel Liebe und Leidenschaft wurde ein individuelles kleines Domizil geschaffen, welches heute nach einem neuen Hausherrn sucht.
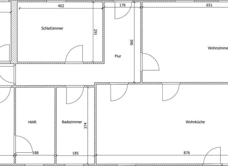
Die Haushälfte empfängt Sie mit einem kleinen Flur, welcher Sie in alle Räumlichkeiten führt. Herzstück der Haushälfte ist die Wohnküche mit einem wunderschönen und naturnahen Ausblick auf die Warnowwiesen. Die naturbelassene, wilde Landschaft ist ein Biotop für unsere heimische Flora und Fauna und ein einzigartiges Naturschutzgebiet.
Die Wohnküche verfügt über eine Einbauküche, einen wasserführenden Kamin, eine kleine Sitzecke sowie über die Möglichkeit, auf die Terrasse hinauszugelangen. Bei einem Glas Wein kann man hier gut und gern die Tage ausklingen lassen. Die geräumige Küche verfügt über genügen Platz, um daraus einen gemütlichen Mittelpunkt für die ganze Familie zu gestalten.
Der Wohnbereich orientiert sich angrenzend zur Küche. Ein Schlafzimmer sowie ein Wannenbad runden die Raumaufteilung ab. Das Dachgeschoss ist nicht ausbaufähig aber als Abstellmöglichkeit nutzbar. Ein Kellergeschoss ist nicht vorhanden.
Die ehemals genutzte Garage sollte als zusätzlicher Wohnraum Verwendung finden. Hier befinden Sie zwei Räumlichkeiten sowie einen Heizungsraum/HWR mit der Möglichkeit, eine weitere Dusche und ein WC einzubauen. Vorbereitenden Ausbauarbeiten wurden bereits getätigt.
Zu den Außenanlagen gehört ein Hundezwinger sowie ein Abstellraum.
Hinweis: Bei den Aufnahmen handelt es sich um Bilder nach der Fußbodenneuerung. Mittlerweile sind neue Türen und Zargen verbaut worden.
Merkmale
1.732 m² Grundstück
Einbauküche, offene Küche
Kein Keller
1 WC
Terrasse
DSL-Anschluss
Nicht möbliert
Badezimmer: Badewanne, Bad mit Fenster
Grundrisse
Grundrisse
1 / 1
Realisiere Dein Projekt
Bausubstanz und Energie
Energieausweis
G
Baujahr1965
Letzte Modernisierung2025
Zustand der ImmobilieSaniert
HeizungsartZentralheizung: Fußbodenheizung
EnergieträgerFlüssiggas
Preisdetails
Kaufpreis
135000 €135.000 €
1.421,05 €/m²
Provision für Käufer
3,57%, Die Courtage für beide Parteien (Eigentümer und Käufer) beträgt jeweils 3 % zuzüglich der Umsatzsteuer i.H.v. 19%, derzeit also insgesamt 3,57 % des Kaufpreises und ist bei notariellem Vertragsabschluss verdient und fällig.
Geschätzte Gesamtkosten
149.850 €1
Kaufpreis
135.000 €
Kaufnebenkosten
14.850 €
2
Notarkosten (1,5%)
2.025 €
Grunderwerbsteuer (6%)
8.100 €
Provision für Käufer (3%)
4.050 €
Grundbucheintrag (0,5%)
675 €
1Der angezeigte Wert ist eine automatisch berechnete Schätzung von immowelt.
2Bei den Angaben handelt es sich um ortsübliche Werte. Individuelle Kosten können abweichen.
Lage
Warnow (18249)
Der Anbieter hat die genaue Adresse nicht freigegeben
Warnow ist eine Gemeinde im Westen des Landkreises Rostock. Die Ortschaft liegt am Durchbruchstal des Flusses Warnow, die unterhalb des Ortes in das Bützower Becken eintritt und bis Schwaan nach Nordosten folgt. Umgeben wird Warnow von den Nachbargemeinden Baumgarten, Rühn, Tarnow, Witzin und Sternberg.
Die Umgebung wird von der Ladwirtschaft auch zunehmend vom Tourismus geprägt. Sehenswert ist neben dem Warnow-Durchbruchstal auch das Naturdorf im Ortsteil Eickhof. Zusätzlich zu diversen Freizeitmöglichkeiten mit hohem Erholungswert gibt es zudem mehrere Lokalitäten in unmittelbarer Nähe, die sich um Ihr leibliches Wohl kümmern.
Ärzte, Kreditinstitute, Apotheken und Einkaufsmöglichkeiten sind in Bützow und Sternberg vorhanden und stellen Warnow als attraktiven Lebensmittelpunkt dar.
Schulen
Die schulische Anbindung ist in Bützow vorhanden. Unter anderem sind eine Grundschule, eine Regional- und eine Förderschule ortsansässig. Kindergärten befinden sich in Warnow selbst und in Baumgarten.
Anbindung
Die nächstgelegenen Autobahnanschlussstellen ist in Kröpelin an der A 20 (Lübeck–Rostock)gegeben und etwa 26 km entfernt. Eine Bahnanbindung ist in Bützow vorhanden.