Wohnung 113m2 zum Kauf - Privlaka, Privlaka
In Privlaka entsteht ein Luxusgebäude mit 6 Wohnungen. Die Immobilie befindet sich in ausgezeichneter Lage, zweite Reihe zum Meer, ca. 70 Meter. Es hat einen schönen Blick auf das Meer, die nahe gelegenen Inseln, den Strand und den Sonnenuntergang. Es besteht aus Erdgeschoss, erstem und zweitem Stock. Der Baubeginn ist für März 2023 geplant.
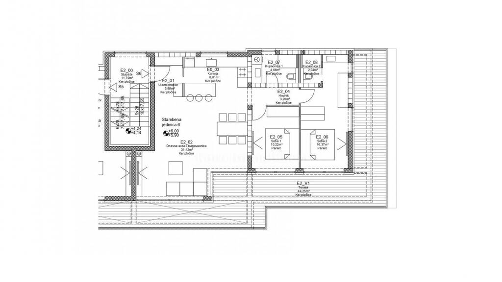
WOHNUNGEN VERFÜGBAR
Erdgeschoss:
Apartment 1 befindet sich im Erdgeschoss und verfügt über drei Schlafzimmer, zwei Badezimmer, eine Küche, ein Esszimmer und ein großes Wohnzimmer. Die Gesamtfläche nach Koeffizient beträgt 118 m2 = 389.999,99 €
Apartment 2 befindet sich im Erdgeschoss und verfügt über zwei Schlafzimmer, zwei Badezimmer, eine Küche, ein Esszimmer und ein großes Wohnzimmer. Die Gesamtfläche nach Koeffizient beträgt 120 m2 = 379.999,99 €
Zweiter Stock:
Apartment 5 befindet sich im 2. Stock und verfügt über zwei Schlafzimmer, zwei Badezimmer, eine Küche, ein Esszimmer und ein großes Wohnzimmer. Die Gesamtfläche nach Koeffizient beträgt 113 m2 = 399.999,99 €
Apartment 5 befindet sich im 2. Stock und verfügt über zwei Schlafzimmer, zwei Badezimmer, eine Küche, ein Esszimmer und ein großes Wohnzimmer. Die Gesamtfläche nach Koeffizient beträgt 119 m2 = 399.999,99 €
Beim Bau werden hochwertige Materialien und Ausstattungen verwendet, wie z. B.: 10 cm dicke Fassade, Rehau-Schreinerei mit großen Schiebewänden mit elektrischen Jalousien und Moskitonetzen, Fußbodenheizung mit WLAN-Thermostat in Bädern, Esszimmer und Wohnzimmer, Villeroy & Boch und Hansgrohe Sanitär Geschirr, Klimaanlagen in jedem Zimmer, erstklassige Keramik, Swimmingpools im Erdgeschoss und Vorbereitung für einen Whirlpool und eine Dachküche in den Penthouse-Wohnungen. Mit einer ausgezeichneten Lage und Meerblick sind diese Immobilien eine Aufmerksamkeit wert!
ID CODE: 4695
Euro Immobilien d.o.o.
Mob: 00385 (0)99 444 0660
Tel: +385 51 220 024
E-mail: info@euro-immobilien.hr
www.euro-immobilien.hr
Provizija agencije za kupca iznosi 3% + PDV i placa se u slucaju kupovine nekretnine kod zakljucenja kupoprodajnog Ugovora.