Version: 8.25.1Navigation überspringen
Stuttgart Immobilien Kontor GmbH -  ENGEL & VÖLKERS Stuttgart
1.390.000 €
6,5 Zimmer  •  170 m²  •  473 m² Grundstück

Einfamilienhaus zum Kauf
1390000 €
8.176 €/m²
6,5 Zimmer  •  170 m²  •  473 m² Grundstück

Familienfreundliches Einfamilienhaus in sonniger Lage

Das durch uns zum Verkauf kommende Einfamilienhaus wurde 1983 errichtet und befindet sich in einem sehr gepflegten Zustand. Die grüne Umgebung sowie die ausgesprochen ruhige Lage vermitteln ein äußerst gemütliches und entspanntes Wohngefühl. Die Nähe zum Wald bietet Gelegenheit zu verschiedensten Freizeitaktivitäten und langen Spaziergängen.

Merkmale

  • 473 m² Grundstück
  • Einbauküche
  • Garage, Außen-Stellplatz
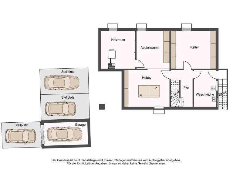
Im Eingangsbereich des Hauses gelangen Sie über die Diele zum offen gestalteten Wohn- und Essbereich mit angrenzender Küche. Ideal präsentiert sich hier der Zugang zum Terrassen- und Gartenbereich. Breite Fensterfronten sorgen für eine angenehme Belichtung. Der großzügige Grundriss bietet auf dieser Ebene 2 weitere Zimmer (diese können bei Bedarf auch zusammengelegt werden), sowie ein Badezimmer und ein Gäste-WC. Im Obergeschoss befinden sich Arbeitszimmer, Gäste- bzw. Kinderzimmer sowie das Elternschlafzimmer mit Balkon und großzügigem Bad. Nutzflächen wie Waschraum, Abstellraum sowie die Haustechnik befinden sich im Untergeschoss. Daneben befindet sich auf dieser Ebene ein großzügiger Hobbyraum, der unterschiedliche Nutzungsmöglichkeiten zulässt. Der Gartenbereich vor und hinter dem Haus bildet mit seinem Baumbestand und den gut nutzbaren Flächen einen echten Mehrwert. Eine große Garage sowie weitere PKW-Stellplätze runden das attraktive Angebot ab. Besonders hervorzuheben ist der energetische Zustand der Immobilie. So wurde im Jahr 2024 neben der Luftwärmepumpe eine PV- Anlage eingebaut. Die großen Fensterflächen sind dreifachverglast und bieten daher eine ideale Ausgangssituation. Überzeugen Sie sich selbst vom hohen Wohnwert sowie den praktischen Vorteilen dieser Immobilie bei einer Besichtigung.

Grundrisse

Grundrisse
1 / 3

Realisiere Dein Projekt

Bausubstanz und Energie

Energieausweis

A
  • Baujahr1983
  • EnergieträgerElektro
MediumRectangleTop

Preisdetails

Kaufpreis
1390000 €
8.176,47 €/m²
Provision für Käufer
3,57 % inkl. MwSt. aus dem beurkundeten Kaufpreis
Geschätzte Gesamtkosten
1.536.923 €1
Kaufpreis
1.390.000 €
Notarkosten (1,5%)
20.850 €
Grunderwerbsteuer (5%)
69.500 €
Provision für Käufer (3,57%)
49.623 €
Grundbucheintrag (0,5%)
6.950 €
1Der angezeigte Wert ist eine automatisch berechnete Schätzung von immowelt.
2Bei den Angaben handelt es sich um ortsübliche Werte. Individuelle Kosten können abweichen.

Lage

address-icon
SchönbergStuttgart (70599)
Der Anbieter hat die genaue Adresse nicht freigegeben
Schönberg zählt zu den exklusiven Stadtteilen von Stuttgart und profitiert von der perfekten Lage zwischen Wäldern und Wiesen. Für Pendler ist der Standort geradezu ideal, da man über die nahe gelegene B27 direkten Anschluss zum Stuttgarter Flughafen, als auch zur A81 und A8 in alle Richtungen hat. Diese günstigen Verkehrsverbindungen und das ruhige Umfeld mit hohem Freizeit- und Erholungswert machen Schönberg zu einem begehrten Wohnort.

Weitere Informationen

Sonstiges Alle Angaben sind ohne Gewähr und basieren ausschließlich auf Informationen, die uns von unserem Auftraggeber übermittelt wurden. Wir übernehmen keine Gewähr für die Vollständigkeit, Richtigkeit und Aktualität dieser Angaben. Zwischenvermietung/-verkauf bleiben vorbehalten. Im Übrigen gelten die allgemeinen Geschäftsbedingungen für die Rechtsbeziehung zwischen Ihnen und der Stuttgart Immobilien Kontor GmbH (Lizenznehmer der Engel & Völkers Residential GmbH).

Weitere Services

Lust auf eine Besichtigung?
Eine Frage zur Immobilie?
Nachricht hinzufügen
Mit der Nutzung der oben angegebenen Telefonnummer oder durch Klicken auf „Kontaktieren“ akzeptierst Du die Allgemeinen Nutzungsbedingungen, denen Du jederzeit widersprechen kannst. Weitere Informationen zum Datenschutz

Über den Anbieter

Eberhardstr. 2, 70173 Stuttgart
partner badge
3 Jahre Partnerschaft
Frau Tanja  Knauer
Frau Tanja KnauerDein Kontakt
Online-ID: 26SDKQBA7WXQ
Referenznummer: W-048D0W
Stuttgart Immobilien Kontor GmbH -  ENGEL & VÖLKERS Stuttgart
title
Stuttgart Immobilien Kontor GmbH - ENGEL & VÖLKERS Stuttgart
Bewertung: 4,1 von 5 Sternen
Nachricht hinzufügen
Mit der Nutzung der oben angegebenen Telefonnummer oder durch Klicken auf „Kontaktieren“ akzeptierst Du die Allgemeinen Nutzungsbedingungen, denen Du jederzeit widersprechen kannst. Weitere Informationen zum Datenschutz
MediumRectangleTop
MediumRectangleBottom
MediumRectangleTop
Wie zufrieden bist du mit dieser Seite (nicht mit der Immobilie selbst)?