Version: 8.25.1Navigation überspringen
473.000 €
3,5 Zimmer  •  98 m²  •  2. Geschoss
Immowelt logo

Wohnung zum Kauf - Erstbezug • provisionsfrei
473000 €
4.827 €/m²
3,5 Zimmer  •  98 m²  •  2. Geschoss

Jetzt oder nie: Die letzte barrierefreie Neubauwohnung wartet!

Finale Gelegenheit: Moderne Neubauwohnung (barrierefrei) sichern!
Willkommen in diesem modernen Neubau-Mehrfamilienhaus, das Ihnen den besonderen Vorteil des Erstbezugs bietet.

Die Wohnungen überzeugen mit einer hochwertigen Ausstattung: Fußbodenheizung, dreifach verglaste Fenster, elektrische Jalousien sowie ein komfortabler Personenaufzug gehören hier zum Standard.

Zur Wohnung Nr. 06 zählen zudem eine eigene Garage (Nr. 06) sowie ein separater Kellerraum (Nr. 06).

Dank barrierefreier Gestaltung und eines durchdachten Grundrisses eignen sich diese Wohnungen für jede Lebensphase - und bieten insbesondere Senioren ein komfortables, sicheres und zukunftsorientiertes Zuhause.

Noch Fragen? +49 (0)7742 96 777

Merkmale

  • Bezug: Nach Vereinbarung!
  • 2. Geschoss
  • Personenaufzug
  • Keller
  • offener Kamin
  • Balkon
  • Terrasse
  • 2 Stellplätze: Garage, Außen-Stellplatz
- Wohnung-Nr.06 -
Bezug nach Vereinbarung!
. Bad mit Dusche
. Balkon und/oder Terrasse
. barrierefrei
. Fenster: Kunststofffenster, 3-fach-Verglasung, UG 0,6 W/m2K
. Sonnenschutz: An Süd-West- und Ostseite - Raffstoren elektrisch
. Balkone: an Balkonaußenkante Senkrechtmarkise
. Bodenbelege: Diese können Sie ganz nach Ihren persönlichen Wünschen und Vorstellungen gestalten

Die Wohnanlage
. Neubau / Erstbezug
. KfW-55-Standard
. Heizung: Hybridgasbrennwert und Luft-Wasser-Wärmepumpe
. Schornsteine für Kaminöfen
. Personenaufzug: Fa. Vestner, 8 Personen, 600 kg
. Serviceleistungen: Reinigungsservice
. Hauseingangstüre: Aluminium mit Drehflügelantrieb
. Garagentore: Sektionaltore, Fa. Belutec, glatt mit Funksendern
. PV-Anlage: 15,84 KWp mit Batteriespeicher, Nutzung für Allgemeinstrom
. u.v.m.

Noch Fragen? +49 (0)7742 96 777

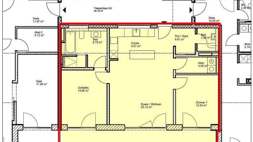
Grundrisse

Grundrisse
1 / 2

Realisiere Dein Projekt

Bausubstanz und Energie

Energieausweis

A+
  • Baujahr2022
  • Zustand der ImmobilieMassivhaus, Erstbezug
  • HaustypKfW 55
  • HeizungsartFußbodenheizung
  • EnergieträgerGas
Immowelt logo

Preisdetails

Kaufpreis
473000 €
4.826,53 €/m²
Provision für Käufer
provisionsfrei
Weitere Preisinformationen
1 Stellplatz
1 Garagenstellplatz
Geschätzte Gesamtkosten
506.110 €1
Kaufpreis
473.000 €
Notarkosten (1,5%)
7.095 €
Grunderwerbsteuer (5%)
23.650 €
Grundbucheintrag (0,5%)
2.365 €
1Der angezeigte Wert ist eine automatisch berechnete Schätzung von immowelt.
2Bei den Angaben handelt es sich um ortsübliche Werte. Individuelle Kosten können abweichen.

Lage

address-icon
ErzingenKlettgau / Erzingen (79771)
Der Anbieter hat die genaue Adresse nicht freigegeben
Das Objekt befindet sich in einer attraktiven Lage.

Alle Geschäfte des täglichen Lebens sind fußläufig erreichbar und bieten Ihnen eine Vielzahl von
Einkaufsmöglichkeiten, Restaurants und Cafés.

Ein besonderes Merkmal ist die ruhige Lage des Objekts in einer verkehrsberuhigten Seitenstraße,
die für eine angenehme und entspannte Wohnatmosphäre sorgt.

Eine gute Verkehrsanbindung durch Bus und Bahn ist durch den nahegelegenen Bahnhof gegeben
und der Flughafen Zürich/Kloten ist auch in weniger als 30 Autominuten erreichbar.

Weitere Informationen

Sonstiges Sie wollen Verkaufen, oder nur den Marktwert Ihrer Immobilie wissen? 

Wir bieten Ihnen einen umfassenden Rundum-Service für Immobilieneigentümer! Egal, ob Sie verkaufen möchten oder einfach nur den aktuellen Marktwert Ihrer Immobilie wissen wollen - wir sind für Sie da!

Weitere Infos finden Sie unter:
https://www.dinucci.de/fuer-eigentuemer/immobilie-verkaufen/ Stichworte Nutzfläche: 35,00 m², Anzahl der Schlafzimmer: 2, Anzahl der Badezimmer: 1, Anzahl der separaten WCs: 1, Anzahl Balkone: 1, Anzahl Terrassen: 1, 2 Etagen

Weitere Services

Lust auf eine Besichtigung?
Eine Frage zur Immobilie?
Nachricht hinzufügen
Mit der Nutzung der oben angegebenen Telefonnummer oder durch Klicken auf „Kontaktieren“ akzeptierst Du die Allgemeinen Nutzungsbedingungen, denen Du jederzeit widersprechen kannst. Weitere Informationen zum Datenschutz

Über den Anbieter

Gartenstraße 24b, 79771 Klettgau
Herr Salvatore Di Nucci
Herr Salvatore Di NucciDein Kontakt
Online-ID: 25QAB7AWQ2HT
Referenznummer: DI-26-006
di nucci - immobilien
title
di nucci - immobilien
Bewertung: 5 von 5 Sternen
Nachricht hinzufügen
Mit der Nutzung der oben angegebenen Telefonnummer oder durch Klicken auf „Kontaktieren“ akzeptierst Du die Allgemeinen Nutzungsbedingungen, denen Du jederzeit widersprechen kannst. Weitere Informationen zum Datenschutz
Wie zufrieden bist du mit dieser Seite (nicht mit der Immobilie selbst)?