Version: 8.24.0Navigation ĂĽberspringen
429.000 €
4 Zimmer  â€˘  92,3 m²  â€˘  1. Geschoss
Immowelt logo

Wohnung zum Kauf - Erstbezug • provisionsfrei
429000 €
4.647 €/m²
4 Zimmer  â€˘  92,3 m²  â€˘  1. Geschoss

Reichertshofen! 4-ZKB OG-Whg. mit 7 m² West-Balkon, FBH, elektr. Rollläden, Videosprech., Keller!

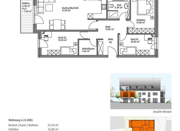
Bei der angebotenen Wohnung handelt es sich um eine 4-Zimmer Wohnung im 1. Obergeschoss, mit einem ca. 7 m² großen West-Balkon.

Die Bauausführung erfolgt in massiver Ziegelbauweise mit Wärmedämmverbundsystem, sowie 3fach verglasten Fenstern.
Beheizt wird die Wohnanlage mit einer Wärmepumpe.

Der Baubeginn ist fĂĽr FrĂĽhjahr 2026 vorgesehen, die Fertigstellung wird ca. Ende 2027 erfolgen.

Auf dem Grundstück entstehen zwei Mehrfamilienhäuser mit insgesamt 17 Wohneinheiten.

Auf Wunsch erhalten Sie gerne das Gesamtexposé inkl. Baubeschreibung und Preisliste.

Energieausweis:
Der Energieausweis wird gerade erstellt und liegt zur Besichtigung vor.

Merkmale

  • Bezug: Ende 2027
  • 1. Geschoss
  • Personenaufzug
  • Kelleranteil
  • Carport
  • Balkon
  • Badezimmer: Badewanne, Bad mit Dusche, Bad mit Fenster
  • Bodenbelag: Fliesen, Parkett
- Aufzug
- Balkon nach Westen ausgerichtet, mit ca. 7 m² Grundfläche
- FuĂźbodenheizung mit Raumthermostaten
- Elektrische Rollläden
- Videosprechanlage
- Bodengleich geflieste Dusche im Bad
- Hochwertiger Waschtisch mit Vigour-Designunterschrank (Model Clivia in verschiedenen Farbvarianten)
- Bad mit Fenster
- KĂĽche mit Fenster
- Abstellraum
- Echtholzböden und hochwertige Fliesen
- Keller
- Waschmaschinenanschluss im eigenen Keller

Grundrisse

Grundrisse
1 / 4

Realisiere Dein Projekt

Bausubstanz und Energie

Der Anbieter hat keine Informationen zum Energieverbrauch bereit gestellt.
  • Baujahr2026
  • Zustand der ImmobilieErstbezug
  • EnergieträgerElektro
Immowelt logo

Preisdetails

Kaufpreis
429000 €
4.646,88 €/m²
Preis pro Stellplatz
17000 €
Provision für Käufer
provisionsfrei
Weitere Preisinformationen
1 Carportplatz, Kaufpreis: 17.000,00 EUR
Geschätzte Gesamtkosten
452.595 €1
Kaufpreis
429.000 €
Notarkosten (1,5%)
6.435 €
Grunderwerbsteuer (3,5%)
15.015 €
Grundbucheintrag (0,5%)
2.145 €
1Der angezeigte Wert ist eine automatisch berechnete Schätzung von immowelt.
2Bei den Angaben handelt es sich um ortsübliche Werte. Individuelle Kosten können abweichen.

Lage

address-icon
Johannisstraße 14, Reichertshofen (85084)
Sehr ruhige und sehr zentrale Lage in der JohannisstraĂźe 14 in Reichertshofen.

Weitere Informationen

Sonstiges Rechtlicher Hinweis
Dieses Exposé ist eine Vorabinformation. Vorstehende Angaben beruhen auf Auskünften der Eigentümer oder Bauträger, wir übernehmen hierfür sowie für Tippfehler keine Haftung! Ein Rechtsverbindlicher Kaufvertrag kommt nur durch notarielle Beurkundung zustande. Die Kaufnebenkosten errechnen sich aus dem beurkundeten Kaufpreis. Energiepass Energieausweis wird bei Besichtigung vorgelegt. Stichworte Carport vorhanden, Nutzfläche: 99,85 m², Anzahl der Schlafzimmer: 3, Anzahl der Badezimmer: 1, Anzahl Balkone: 1, Balkon-Terrassen-Fläche: 6,90 m², Bundesland: Bayern, 2 Etagen

Weitere Services

Lust auf eine Besichtigung?
Eine Frage zur Immobilie?
Nachricht hinzufĂĽgen
Mit der Nutzung der oben angegebenen Telefonnummer oder durch Klicken auf „Kontaktieren“ akzeptierst Du die Allgemeinen Nutzungsbedingungen, denen Du jederzeit widersprechen kannst. Weitere Informationen zum Datenschutz

Ăśber den Anbieter

Riederweg 5, 85276 Pfaffenhofen
partner badge
Partnerschaft
Herr Daniel SprengDein Kontakt
Online-ID: 2ngy95h
Referenznummer: JS - Whg. 6
Irchenhauser & Spreng Immobilien GmbH
Irchenhauser & Spreng Immobilien GmbH
Bewertung: 5 von 5 Sternen
Nachricht hinzufĂĽgen
Mit der Nutzung der oben angegebenen Telefonnummer oder durch Klicken auf „Kontaktieren“ akzeptierst Du die Allgemeinen Nutzungsbedingungen, denen Du jederzeit widersprechen kannst. Weitere Informationen zum Datenschutz
Wie zufrieden bist du mit dieser Seite (nicht mit der Immobilie selbst)?