

Dirk Hülsmann Immobilien
Frau Frances Delling
017 ···
Nr. anzeigenPreise & Kosten
Provision für Käufer
provisionsfrei
Lage
Velgast ist eine Gemeinde westlich von Stralsund im Landkreis Vorpommern-Rügen. Die Gemeinde wird vom Amt Franzburg-Richtenberg mit Sitz in der Stadt Franzburg verwaltet, sie ist die flächen- und bevölkerungsmäßig größte Gemeinde im Amt, ca. 1.500 Einwohner leben hier.
Entfernungen:
Hansestadt Stralsund: ca. 20...
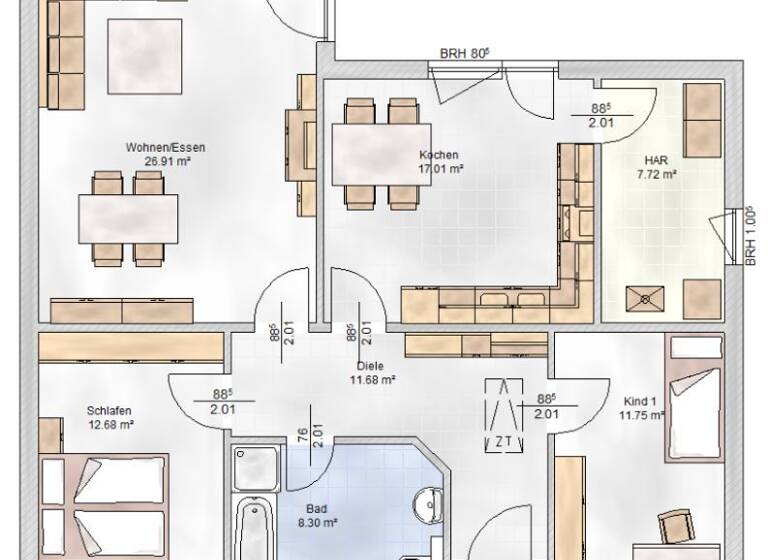
Das Haus
Geschosse
1 Geschoss
Baujahr
2025
Energie & Heizung
Warum sehe ich diese Anzeige? – Du siehst diese Anzeige basierend auf Ihrer Navigation auf unserer Website und den Suchkriterien, die du verwendet hast.
Weitere Energiedaten
Haustyp
Massivhaus
Heizungsart
Luft-/Wasser-Wärmepumpe
Details
Objektbeschreibung
Wohngrundstück für ein klassisches Einfamilienhaus oder Bungalow von Elbe-Haus®.
Objektbeschreibung:
*Maßgeschneidertes und individuelles Haus
*Transparente Verträge
*Versicherung
*Festpreisgarantie
*Baubeginngarantie
*Bauzeitgarantie
*Alles aus einer Hand...
Weitere Informationen
Sonstiges
Das Angebot ist freibleibend und unverbindlich. Zwischenverkauf, Irrtum, Auslassung und Änderung sind vorbehalten.
Wir bitten um Verständnis, dass wir nur vollständige, schriftliche Anfragen mit Namen, Anschrift und Telefonnummer beantworten können.
Anbieter der Immobilie
Dirk Hülsmann Immobilien
Keneser Straße 17, 18233 Neubukow

Online-ID: 2jxcq5v
Referenznummer: Bun98B904Vel
Finde Angebote wie dieses
Hier geht es zu unserem Impressum, den Allgemeinen Geschäftsbedingungen, den Hinweisen zum Datenschutz und nutzungsbasierter Online-Werbung.