Spektakuläres Grundstück in Rottach-Egern *Baugenehmigung vorhanden*
Das Objekt befindet sich am Ortsrand in idyllischer Lage mit freiem Blick über Wiesen und Felder.
Aufgrund der Ausrichtung können Sie von morgens bis abends Sonne und Berge genießen.
Schulen, Kindergärten, ärztliche Versorgung, Geschäfte für den täglichen Bedarf, Hotels und Restaurants befinden sich ebenfalls in wenigen Hundert Metern entfernt.
Für das Grundstück liegt eine Baugenehmigung für zwei Mehrfamilien- häuser mit insgesamt 5 Wohneinheiten und dazugehörigen Hobbyräumen sowie einer Tiefgarage für 14 Stellplätzen vor.
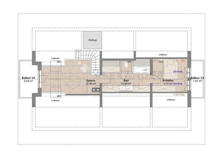
Moderne Grundrisse mit jeweils großzügigen Hobbyräumen, Balkonen und großen Terras- sen sind genehmigt.
Merkmale
2.050 m² Grundstück
Bergblick, Fernblick
voll erschlossen
Strom, Gas, Telekommunikation, Wasser
Gesamtfläche Grundstück: ca. 2.050 m²
Baugenehmigung für zwei Mehrfamilienhäuser mit 2 bzw. 3 Wohneinheiten liegt vor.
Haus 1: - 2 Wohnungen genehmigt - ca. 394 m² Wohnfläche - ca. 183 m² Nutzfläche - Gemeinsame Tiefgarage mit 14 Stellplätzen + 6 zusätzlichen Außenstellplätzen
Haus 2: - 2 oder 3 Wohnungen je nach Wunsch genehmigt - ca. 400 m² Wohnfläche - ca. 192 m² Nutzfläche - Gemeinsame Tiefgarage mit 14 Stellplätzen + 6 zusätzlichen Außenstellplätzen
Grundrisse
Grundrisse
1 / 8
Realisiere Dein Projekt
Bausubstanz und Energie
Der Anbieter hat keine Informationen zu Energieverbrauch oder Zustand der Immobilie bereit gestellt.
Preisdetails
Preis auf Anfrage
Provision für Käufer
3,57% vom not. Kaufpreis inkl. 19% gesetzl. MwSt. 3,57 % inkl. ges. MwSt. sind aus dem not. Kaufpreis vom Käufer an den Makler zu entrichten, fällig mit wirksamen Abschluß des Kaufvertrages. Weitere Informationen siehe Provisionshinweis.
Lage
Hagrain, Rottach-Egern (83700)
Der Anbieter hat die genaue Adresse nicht freigegeben
Rottach-Egern ist immer noch der gefragteste Ort am Südufer des Tegernsees. Der heute heilklimatische Kurort liegt in einer Höhe von 736 m und hat ca. 6800 Einwohner. Blickfang und Hausberg ist der 1722 Meter hohe Wallberg. Rund um die Egerner Bucht, einen Ausläufer des Tegernsees, schmiegt sich das Örtchen seit mehr als 1000 Jahren in die Landschaft und hat durch die Zeiten nichts von dem ihm eigenen Flair eingebüßt.
Weitere Informationen
Provisionshinweis
3,57% vom not. Kaufpreis inkl. 19% gesetzl. MwSt. 3,57 % inkl. ges. MwSt. sind aus dem not. Kaufpreis vom Käufer an den Makler zu entrichten, fällig mit wirksamen Abschluß des Kaufvertrages. Ebenso ist eine Maklercourtage in gleicher Höhe mit dem Verkäufer vereinbart
Sonstiges
---
Im Falle des Abschlusses eines Kaufvertrages zu vorgenanntem Objekt ist eine Käuferprovision i.H.v. 3,57 % inkl. 19 % gesetzl. Mehrwertsteuer aus dem notariell verbrieften Kaufpreis fällig.
Die Entrichtung der Provision wird im Kaufvertrag geregelt.
Stichworte
Anzahl Balkone: 1, Anzahl Loggias: 1, Bundesland: Bayern