Version: 8.25.1Navigation überspringen
139.900 €
440 m² Grundstück

Grundstück zum Kauf
139900 €
318 €/m²
440 m² Grundstück

Grundstück in Bergkamen

Optimale Größe: mit 440 m² bietet dieses Grundstück genügend Platz für ein großzügiges Wohnhaus und einen schönen Garten.

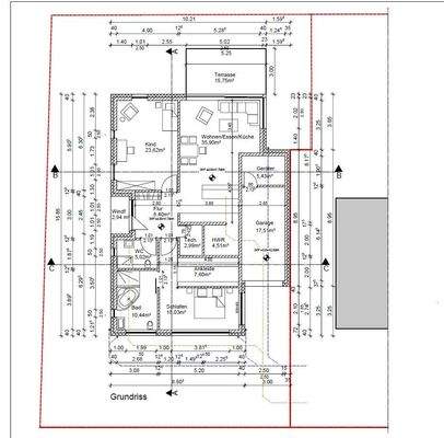
Die bereits vorliegende Baugenehmigung erlaubt die Errichtung eines ansprechenden Bungalows. Dieser kann individuell nach Ihren Vorstellungen gestaltet werden - profitieren Sie von der Möglichkeit, Ihr Traumhaus ohne lange Wartezeiten zu realisieren.

Das Grundstück ist sofort verfügbar und eignet sich ideal für Bauherren, die ohne Verzögerung starten möchten.

Für weitere Informationen oder zur Vereinbarung eines Besichtigungstermins stehen wir Ihnen gerne zur Verfügung.

Die zentrale Lage von Bergkamen ermöglicht eine hervorragende Erreichbarkeit:

Straßenverkehr: Über die Bundesstraßen B61 und B233 sowie die nahegelegene Autobahn A1 sind Städte wie Dortmund, Hamm und Münster schnell zu erreichen.

ÖPNV: Busverbindungen und Bahnhöfe in den Nachbarstädten gewährleisten eine gute Anbindung an den Nah- und Fernverkehr.

Flughafen: Der Flughafen Dortmund ist nur etwa 20 Minuten entfernt und bietet eine ideale Anbindung für Geschäfts- und Urlaubsreisen.

Merkmale

  • Bezug: Ab Sofort!
  • 440 m² Grundstück
  • Bebauungsplan
Grundstücksfläche: ca. 440 m²

Baugenehmigung: vorhanden für einen modernen Bungalow

Sofort baubar: Dank der Baugenehmigung kann das Projekt direkt gestartet werden

Zentrale Lage: Alles, was das tägliche Leben erleichtert, befindet sich in unmittelbarer Umgebung

Grundrisse

Grundrisse
1 / 3

Realisiere Dein Projekt

Bausubstanz und Energie

Möchtest du Details zum Energieverbrauch?info_energy_calculation-icon

Preisdetails

Kaufpreis
139900 €
317,95 €/m²
Provision für Käufer
4,00 zzgl. MwSt.
Geschätzte Gesamtkosten
139.900 €1
Kaufpreis
139.900 €
1Der angezeigte Wert ist eine automatisch berechnete Schätzung von immowelt.

Lage

address-icon
OberadenBergkamen (59192)
Der Anbieter hat die genaue Adresse nicht freigegeben
Dieses attraktive Baugrundstück befindet sich in einer zentralen, dennoch ruhigen Wohnlage. Die Nachbarschaft zeichnet sich durch eine angenehme Mischung aus Einfamilienhäusern und gepflegten Gärten aus. Einkaufsmöglichkeiten, Schulen, Kindergärten und Ärzte sind in wenigen Minuten erreichbar. Auch die Anbindung an den öffentlichen Nahverkehr und überregionale Straßen ist ideal, sodass Sie flexibel und schnell alle Ziele erreichen können.

Bergkamen, gelegen im Herzen von Nordrhein-Westfalen, bietet eine perfekte Kombination aus städtischem Komfort und naturnahem Wohnen. Die Stadt gehört zum Kreis Unna und liegt verkehrsgünstig in der Metropolregion Ruhrgebiet, einer der dynamischsten Regionen Deutschlands. Mit rund 50.000 Einwohnern ist Bergkamen eine lebendige Stadt mit einem vielfältigen Angebot an Infrastruktur, Kultur und Freizeitmöglichkeiten.

Weitere Informationen

Sonstiges Ansprechpartner: Herr Christian Schramm, Mobil 0171 - 6112678 Festnetz 02924/88457
e-Mail: christian.schramm@cs-immobilien.net

Die im Expose angegebenen Daten, Werte und Maße sind ungefähre Angaben. Die CS Immobilien Vermittlungs und Verwaltungs GmbH übernimmt keine Verantwortung für die Richtigkeit der bereitgestellten Informationen. Die genaue Raumaufteilung kann den beigefügten Grundriss-Skizzen entnommen werden (die lediglich illustrativen Charakter haben und nicht verbindlich sind). Alle Angaben basieren auf den uns vorliegenden Informationen des Auftraggebers und wurden nach bestem Wissen und Gewissen gemacht.

Die aufgeführte Provision ist verdient und fällig gemäß § 652 BGB 1-2. Gerne weisen wir darauf hin, dass wir sowohl für den aktuellen Eigentümer wie auch für Sie als Interessenten mit selber Provision tätig sind. Stichworte Distanz zum Kindergarten: 5.00, Distanz zur Grundschule: 5.00, Distanz zur Realschule: 5.00, Distanz vom Zentrum: 5.00

Weitere Services

Lust auf eine Besichtigung?
Eine Frage zur Immobilie?
Nachricht hinzufügen
Mit der Nutzung der oben angegebenen Telefonnummer oder durch Klicken auf „Kontaktieren“ akzeptierst Du die Allgemeinen Nutzungsbedingungen, denen Du jederzeit widersprechen kannst. Weitere Informationen zum Datenschutz

Über den Anbieter

Linkstraße 27a, 59519 Delecke
partner badge
Partnerschaft
Herr Christian SchrammDein Kontakt
Online-ID: 26DTTLRRXA5W
Referenznummer: 16293
CS Immobilien Vermittlungs- und Verwaltungs GmbH
Bewertung: 2,5 von 5 Sternen
Nachricht hinzufügen
Mit der Nutzung der oben angegebenen Telefonnummer oder durch Klicken auf „Kontaktieren“ akzeptierst Du die Allgemeinen Nutzungsbedingungen, denen Du jederzeit widersprechen kannst. Weitere Informationen zum Datenschutz
Wie zufrieden bist du mit dieser Seite (nicht mit der Immobilie selbst)?