Version: 8.25.1Navigation überspringen
Nageler Immobilien GmbH
311.000 €
3 Zimmer  •  71,5 m²  •  2. Geschoss

Wohnung zum Kauf - Erstbezug • provisionsfrei
311000 €
4.349 €/m²
3 Zimmer  •  71,5 m²  •  2. Geschoss

Charmante 3 - Zimmer Wohnung mit intelligenter Raumaufteilung

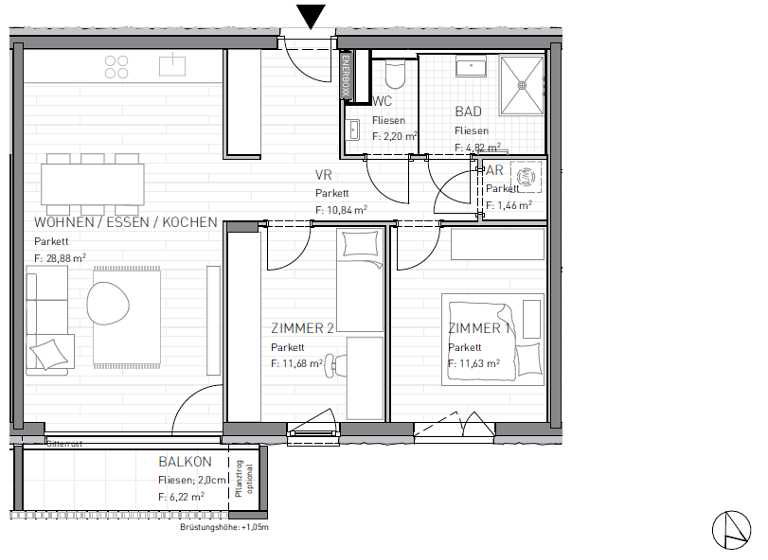
Diese charmante 3 - Zimmer Wohnung überzeugt durch Ihre intelligente Raumaufteilung. Schon beim Eintritt begrüßt Sie ein knapp 11m2 großer Vorraum, welcher ausreichend Platz für eine Garderobe bietet. Zu Ihrer Rechten befindet sich der geräumige 28,88m2 Wohn- und Essbereich mit direktem Zugang zum südlich ausgerichteten Balkon. Dieser durchflutet den Wohnbereich optimal mit Tageslicht. Zwei Schlafzimmer schaffen eine Wohlfühloase, in welcher Sie den Alltagsstress hinter sich lassen können. Gegenüber vom Schlafzimmer befindet sich das moderne Badezimmer und getrennte WC. Weiters steht Ihnen in dieser Wohnung ein Abstellraum zur Verfügung.
Weiters kann ein Tiefgaragenplatz, je nach Größe zwischen 17.900 – 25.000€, oder ein freier Autoabstellplatz um 7.500€ erworben werden.

HeimatGlück ist die Antwort auf Wohnbedürfnisse der modernen Gesellschaft. Ein lebendiges Miteinander, bedarfsorientiertes Bauen, umweltfreundliche Mobilität und die besondere Grünraumgestaltung sind innovativ und zeitgemäß. Einfach Smart.
Die Wohnanlage setzt auf smarte Mobilität, um einen nachhaltigen Lebensstil zu fördern. Ein zentraler Mobilitätsknoten im Süden umfasst neben Fahrradabstellplätzen und Leihfahrrädern (nextbike), auch E-Car- und E-Bike-Sharing mit Trolleysystem, E-Lademöglichkeiten und Mobilitätsberatung. Ein gut ausgebautes Busliniennetz ermöglicht Ihnen zudem eine bequeme Anbindung ans Stadtzentrum. Hier wird Nachhaltigkeit großgeschrieben. Auch stehen vor Ort ausreichend Parkplätze für Besucher*innen zur Verfügung.

Merkmale

  • 2. Geschoss
  • Personenaufzug
  • Tiefgarage
  • Bad/WC getrennt
  • Balkon
  • Barrierefrei
  • Bodenbelag: Parkett

Grundrisse

Grundrisse
1 / 3

Realisiere Dein Projekt

Bausubstanz und Energie

Heizwärmebedarf (HWB)

B

Gesamtenergieeffizienz (fGEE)

A+
  • Zustand der ImmobilieNeubau, Erstbezug
  • EnergieträgerFernwärme
MediumRectangleTop

Preisdetails

Kaufpreis
311000 €
4.349,04 €/m²
Provision für Käufer
provisionsfrei

Lage

address-icon
Harbacherstraße 47cSt. PeterKlagenfurt(Stadt) (9020)
Die Lage des Gesamtentwicklungskonzepts HiHarbach besticht durch zahlreiche Vorteile. Trotz der guten Anbindung an den Südring und die Völkermarkterstraße, sowie die Autobahnauffahrt Ost, die Sie in wenigen Autominuten erreichen, genießen Sie aufgrund der umliegenden 30er – Zone und den vielen Freiflächen mit großzügiger Bepflanzung, eine idyllische Ruhelage mit unverbaubaren Blick auf die südlichen Bergketten Kärntens.
Kindergarten, Schulen, Ärzte, Nahversorger, oder der sich nebenan befindende Bauernladen von Frau Rupp, der mit wunderbaren regionalen Köstlichkeiten ausgestattet ist, komplementieren das Wohnangebot.
Das Juwel Kärntens, der Wörthersee, befindet sich nur 15 Autominuten von Ihrem Zuhause entfernt.

Weitere Informationen

Sonstiges Der Baubeginn des Projektes ist für dieses Jahr geplant und die Fertigstellung wird somit für 2026 angesetzt (für den genauen Baubeginn und die Fertigstellung kann keine Garantie übernommen werden).
Bei den Projektabbildungen (Broschüren, Werbeanzeigen, etc.) handelt es sich lediglich um symbolische Darstellungen. Für mögliche Abweichungen zwischen den Symbolfotos, Darstellungen und den tatsächlichen Gegebenheiten in der Natur wird deshalb keine Haftung übernommen. Vorbehaltlich Fehler und Irrtümer.
Die Möblierungen in den Grundrissen dienen als Orientierungshilfe und sind nicht im Kaufpreis inkludiert.
Eine ausführliche Bau- und Ausstattungsbeschreibung erhalten Sie gerne auf Anfrage.

Weitere Services

Lust auf eine Besichtigung?
Eine Frage zur Immobilie?
Nachricht hinzufügen
Mit der Nutzung der oben angegebenen Telefonnummer oder durch Klicken auf „Kontaktieren“ akzeptierst Du die Allgemeinen Nutzungsbedingungen, denen Du jederzeit widersprechen kannst. Weitere Informationen zum Datenschutz

Über den Anbieter

Nageler Immobilien GmbH
Hausergasse 9, 9500 VILLACH
partner badge
Partnerschaft
Online-ID: 242Y15KY8GF3
Nageler Immobilien GmbH
Nageler Immobilien GmbH
Nachricht hinzufügen
Mit der Nutzung der oben angegebenen Telefonnummer oder durch Klicken auf „Kontaktieren“ akzeptierst Du die Allgemeinen Nutzungsbedingungen, denen Du jederzeit widersprechen kannst. Weitere Informationen zum Datenschutz
MediumRectangleTop
MediumRectangleBottom
MediumRectangleTop
Wie zufrieden bist du mit dieser Seite (nicht mit der Immobilie selbst)?