

Ahoi Immobilien Ostfriesland
Frau Jasmin Wuttge
049 ···
Nr. anzeigenPreise & Kosten
Provision für Käufer
keine Provision für den Käufer
Lage
Der Ort Berumbur liegt in der Samtgemeinde Hage im schönen Ostfriesland in unmittelbarer Nähe der Nordseeküste. In direkter Nähe zum Objekt befindet sich ein naturbelassener Kiessee sowie der Ferienpark Berumbur. Der ideale Ort zur Erholung und für Freizeitaktivitäten. Zudem befinden sich in der Samtgemeinde Hage zahlreiche...
Die Wohnung
Wohnungslage
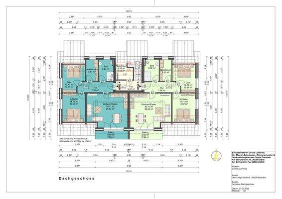
Dachgeschoss
Bezug
Sommer 2027
Wohnanlage
Energie & Heizung
Warum sehe ich diese Anzeige? – Du siehst diese Anzeige basierend auf Ihrer Navigation auf unserer Website und den Suchkriterien, die du verwendet hast.
Energieausweistyp
Bedarfsausweis
Gebäudetyp
Wohngebäude
Baujahr laut Energieausweis
2025
Wesentliche Energieträger
LUFTWP
Gültigkeit
bis 03.04.2030
Effizienzklasse
A+
Endenergiebedarf
16,80 kWh/(m²·a)
Weitere Energiedaten
Heizungsart
Luft-/Wasser-Wärmepumpe
Details
Objektbeschreibung
In ruhiger Lage direkt am Kiessee in Berumbur entsteht ein modernes Wohnhaus mit fünf
energieeffizienten (EH 55) Neubauwohnungen in Massivbauweise.
Diese Dachgeschosswohnung bietet eine Wohnfläche von 75,60 m² und eine Nutzfläche von 4,99 m². Zudem ist die Wohnung mit einem Süd-Balkon ausgestattet.
Der...
Ausstattung
- Große praktisch geschnittene Räume
- Offenes Wohnen (ohne Einbauküche)
- Tageslichtbad mit Walk-in Dusche
- Dreifachverglaste Fenster in Anthrazitgrau genarbt ähnlich RAL 7016
- Besonderer Schallschutz (Wohnungstrennwände zweischalig aus Kalksandvollstein RDK 2,0 und Schalldämmplatte)
- Elektrische...
Preisinformation
1 Stellplatz
Weitere Informationen
Sonstiges
Energiebedarfsausweis
Endenergiebedarf: 16,8 kWh/(m²a)
Energieeff.-Klasse: A+
wesentlicher Energieträger: Luft-Wärmepumpe/Strom-Mix
Baujahr laut Energieausweis: 2025
Stichworte
Nutzfläche: 4,99 m², Anzahl der Schlafzimmer: 2, Anzahl der Badezimmer: 1, Anzahl Balkone: 1
Anbieter der Immobilie

Online-ID: 2mj6s5j
Referenznummer: 1500
Finde Angebote wie dieses
Hier geht es zu unserem Impressum, den Allgemeinen Geschäftsbedingungen, den Hinweisen zum Datenschutz und nutzungsbasierter Online-Werbung.