Wohnung zum Kauf - Erstbezug • provisionsfrei439000 €4.413 €/m²3,5 Zimmer • 99,5 m² • 1. Geschoss
439000 €
4.413 €/m²
3,5 Zimmer • 99,5 m² • 1. Geschoss
Geisenfeld! 3,5-ZKB Obergeschoss-Wohnung mit 2 Balkonen, Aufzug, Fußbodenheizung, elektrischen Rollläden, Videosprechanlage und TG-Stellplatz!
Merkmale
- Bezug: Ende 2025
- 1. Geschoss
- offene Küche
- Personenaufzug
- Kelleranteil
- Tiefgarage
- Balkon
- Badezimmer: Badewanne, Bad mit Dusche, Bad mit Fenster
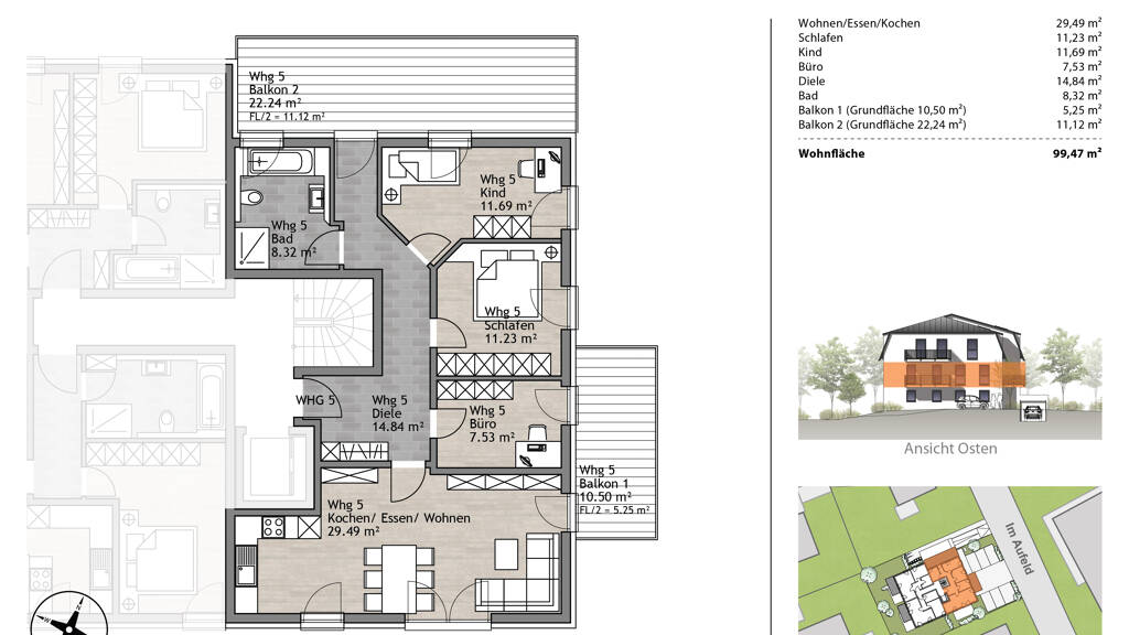
Grundrisse
Verschaffe dir einen genauen Überblick über die Raumaufteilung.

Bausubstanz und Energie
Möchtest du Details zum Energieverbrauch?

- Baujahr2024
- Zustand der ImmobilieNeubau, Erstbezug
- HeizungsartFußbodenheizung
- EnergieträgerElektro, Luft-/Wasser-Wärmepumpe
Preisdetails
Kaufpreis
439000 €
4.413,39 €/m²
Preis pro Stellplatz
22000 €
Provision für Käufer
provisionsfrei
Geschätzte Gesamtkosten
463.145 €1
Kaufpreis
439.000 €
Kaufnebenkosten
24.145 €
2Notarkosten (1,5%)
6.585 €
Grunderwerbsteuer (3,5%)
15.365 €
Grundbucheintrag (0,5%)
2.195 €
1Der angezeigte Wert ist eine automatisch berechnete Schätzung von immowelt.
2Bei den Angaben handelt es sich um ortsübliche Werte. Individuelle Kosten können abweichen.
Lage

Im Aufeld 16, Geisenfeld (85290)
Weitere Informationen
Weitere Services
Lust auf eine Besichtigung?
Eine Frage zur Immobilie?
Über den Anbieter
Riederweg 5, 85276 Pfaffenhofen
6 Jahre Partnerschaft

Herr Daniel SprengDein Kontakt
Online-ID: 24MRW2YFCJD8
Referenznummer: IA-5
Wie zufrieden bist du mit dieser Seite (nicht mit der Immobilie selbst)?
