
IMMO-EXPERT Immobilien GmbH & Co.KG
Herr Philipp Gritsch
+43 ···
Nr. anzeigenPreise & Kosten
Provision für Käufer
3% des Kaufpreises zzgl. 20% USt.
Die Wohnung
Wohnungslage
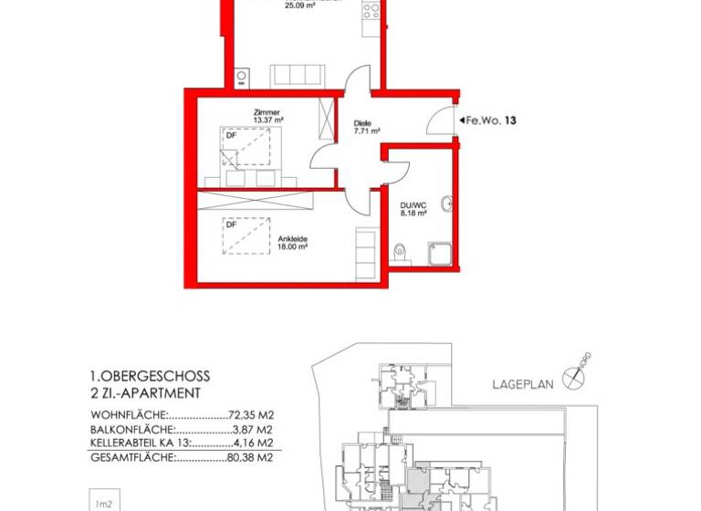
1. Geschoss
Wohnanlage
Energie & Heizung
Warum sehe ich diese Anzeige? – Du siehst diese Anzeige basierend auf Ihrer Navigation auf unserer Website und den Suchkriterien, die du verwendet hast.
Heizwärmebedarf (HWB)
45,00 kWh/(m²·a)
Gesamtenergieeffizienz (fGEE)
0,92
Weitere Energiedaten
Energieträger
Gas
Heizungsart
Zentralheizung
Details
Objektbeschreibung
Apartment-Stubai - Ferienapartments in wunderschöner Lage von Neustift als Kapitalanlage durch Buy-to-Let Modell.
Grundbücherlich gesichertes und wertsteigerndes Investment in Tirol.
Mit zu erwartenden Renditen von ca. 5% bis 8%.
"Apartment-Stubai" - Traditionell, modern und dennoch...
Weitere Informationen
Stichworte
Stellplatz vorhanden, Anzahl Balkone: 1, Balkon-Terrassen-Fläche: 3,87 m², Kellerfläche: 4,16 m², Bundesland: Tirol, 5 Etagen, Wohnungsnr.: 13
Anbieter der Immobilie
IMMO-EXPERT Immobilien GmbH & Co.KG
Müllerstraße 1, 6020 INNSBRUCK
Online-ID: 2la365f
Referenznummer: OBGC202207060951075562f83d9cd01
Finde Angebote wie dieses
Günstige Immobilienfinanzierung einfach online berechnen
Persönliches Angebot berechnenWarum sehe ich diese Werbung? – Du siehst diese Werbung basierend auf Deiner Navigation auf unserer Website und der von Dir verwendeten Suchkriterien.
Diese Werbung wird bezahlt von durchblicker
Werbung melden
Hier geht es zu unserem Impressum, den Allgemeinen Geschäftsbedingungen, den Hinweisen zum Datenschutz und nutzungsbasierter Online-Werbung.