Falkensteiner Park Residences Lake Garda Appartement Mirto M2
Etagenwohnung Mirto
Merkmale
offene Küche
Tiefgarage
Bidet
Terrasse
Badezimmer: Bad mit Dusche, Bad mit Fenster
voll klimatisiert
Swimmingpool
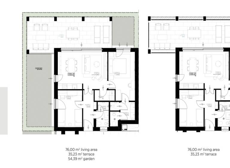
Grundrisse
Grundrisse
1 / 1
Realisiere Dein Projekt
Bausubstanz und Energie
Möchtest du Details zum Energieverbrauch?
Baujahr2023
Zustand der ImmobilieErstbezug
Preisdetails
Kaufpreis
661400 €661.400 €
8.702,63 €/m²
Preis pro Stellplatz
55000 €55.000 €
Provision für Käufer
provisionsfrei
Weitere Preisinformationen
1 Tiefgaragenstellplatz, Kaufpreis: 55.000,00 EUR
Lage
Salo' (25087)
Der Anbieter hat die genaue Adresse nicht freigegeben
Die Anlage des Park Residences befindet sich in einer beliebten Lage, nur wenige Schritte vom Seeufer und vom historischen Zentrum von Salo entfernt. Genießen Sie die unvergleichliche Schönheit des Gardasees, während Sie in einer ruhigen und privaten Umgebung residieren. Das südwestlich des Gardasees gelegene Salo bietet Ihnen eine charmante Altstadt mit erstklassigen Restaurants, exklusiven Boutiquen und einer lebendigen Kulturszene. Der Ort ist ebenfalls ein idealer Startpunkt, um die Schönheiten der Umgebung zu erkunden. Die malerische Straße entlang des Westufers des Gardasees führt Sie vorbei an urigen Dörfern bis nach Riva del Garda im Norden. Der lebhafte, mondäne Urlaubsort Riva liegt umgeben von mächtigen Bergen an der schmalen Nordspitze des Lago di Garda und ist zugleich der zweitgrößte Ort am Gardasee. Er ist ein beliebter Spot für Wassersportler wie Windsurfer und Kiter. Im Süden des Sees befinden sich weitere herrliche Ausflugsziele wie zum Beispiel Sirmione mit seinem imposanten Stadtschloss, seinen Thermalbädern und Grotten des Catull. Auch das historische Verona ist nicht weit entfernt. Entdecken Sie idyllische Dörfer, genießen Sie die kulinarischen Highlights der italienischen Küche und lassen Sie sich von der Schönheit des Gardasees begeistern.
Weitere Informationen
Stichworte
Anzahl der Schlafzimmer: 2, Anzahl der Badezimmer: 2, Anzahl Terrassen: 1, Balkon-Terrassen-Fläche: 32,74 m², Bundesland: Lombardei
Wellness: Wellnessbereich