

Addo Bauträger GmbH & Co. KG
Frau Alla Becker
041 ···
Nr. anzeigenPreise & Kosten
Provision für Käufer
provisionsfrei
Lage
Die Immobilie im Munstermannskamp 50, 21335 Lüneburg, besticht durch ihre erstklassige Lage im Stadtteil Rotes Feld.
Sie bietet eine ideale Kombination aus städtischem Komfort und naturnaher Ruhe.
Die Nähe zum Stadtzentrum von Lüneburg ermöglicht schnellen Zugang zu Einkaufsmöglichkeiten,
kulturellen Angeboten...
Die Wohnung
Kategorie
Penthouse
Wohnungslage
Dachgeschoss
Wohnanlage
Energie & Heizung
Warum sehe ich diese Anzeige? – Du siehst diese Anzeige basierend auf Ihrer Navigation auf unserer Website und den Suchkriterien, die du verwendet hast.
Weitere Energiedaten
Energieträger
Elektro
Haustyp
KfW 55
Heizungsart
Fußbodenheizung, Luft-/Wasser-Wärmepumpe, Zentralheizung
Details
Objektbeschreibung
Diese exklusive Immobilie umfasst ein stilvolles
Wohnhaus mit 13 eleganten Wohneinheiten auf
einem großzügigen Grundstück von 606 qm.
Mit einer Gesamtwohnfläche von 473,1 qm bietet sie ein herausragendes Wohnambiente und setzt neue Maßstäbe für gehobenes Wohnen.
Baubeginn geplant: 01.05.2026
Fertigstellung...
Ausstattung
Idealer Grundriss: großzügiger Wohn- und Schlafbereich, Badezimmer und Kellerabteil Hochwertige Materialien von namhaften
Herstellern wie: Geberit, Hans Grohe,
Busch-Jaeger, Vallox und Samsung
Nachhaltiges Wohnen: Lüftungsanlage,
Photovoltaikanlage, Wärmeluftpumpe
Weitere Informationen
Sonstiges
Info: Anzahl Etagen: 4
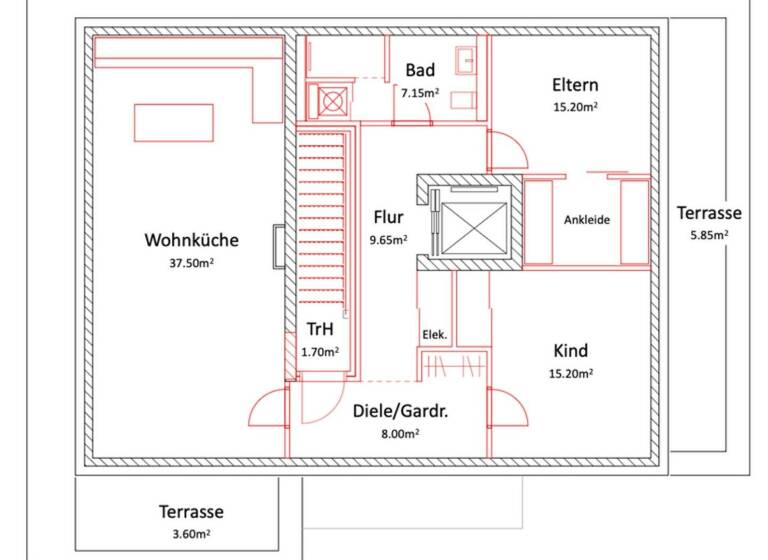
Diese außergewöhnliche Penthousewohnung bietet auf 102,15 m² ein großzügiges Wohnkonzept mit
höchstem Komfort.
Der Mittelpunkt ist die große, offene Wohnküche, die viel Raum für gemeinsames Kochen und geselliges Beisammensein schafft.
Zwei Balkone erweitern den Wohnraum ins...
Anbieter der Immobilie
Addo Bauträger GmbH & Co. KG
Bunsenstraße 8, 21365 Adendorf

Online-ID: 2l55b5q
Finde Angebote wie dieses
Hier geht es zu unserem Impressum, den Allgemeinen Geschäftsbedingungen, den Hinweisen zum Datenschutz und nutzungsbasierter Online-Werbung.