Version: 8.24.0Navigation ĂĽberspringen
272.000 €
2 Zimmer  â€˘  65,7 m²
Immowelt logo

Wohnung zum Kauf - Erstbezug • provisionsfrei
272000 €
4.140 €/m²
2 Zimmer  â€˘  65,7 m²

Bitburg - St. Maximin - Bauteil 4 - Wohnung W-1-03

Im Herzen der Stadt Bitburg entstand der Wohnpark "St. Maximin". In insgesamt 4 Gebäuden entstehen 54 hochwertige Eigentumswohnungen, Studios und Penthäuser mit Wohnflächen von 29 bis 156 m². Die Immobilien verfügen über eine moderne Ausstattung. Alle Etagen sind bequem mit dem Aufzug zu erreichen. Auf dem Gelände entstehen zudem ausreichend Parkmöglichkeiten für die einzelnen Bewohner.

Die weit über die Grenzen hinaus bekannte Eifel-Haus-Qualität wird durch die mehr als 50-Jährige Teamerfahrung garantiert. Wertbeständigkeit, Nachhaltigkeit, Energieeffizienz sind nur einige Merkmale einer Eifel-Haus-Immobilie.

Informieren Sie sich ĂĽber unsere Projektreferenzen.

Haben wir Ihr Interesse geweckt?

Kontaktieren Sie uns.

Wir freuen uns auf Ihre RĂĽckmeldung.


Ăśber folgenden Link gelangen Sie zu unseren Immobilienangeboten:

https://www.eifel-haus.de/de/immobilienangebote/alle-immobilienangebote

Merkmale

  • Personenaufzug
  • Balkon
Das Gebäude 4 wird nach traditioneller und massiver Bauweise mit Luft/Wasser Wärmepumpe und Fußbodenheizung ausgeführt. Für die technische Gebäudeplanung und Ausführungsplanung werden etablierte, erfahrene Fachbüros und Fachingenieure eingesetzt.

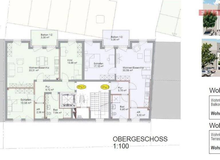
Grundrisse

Grundrisse
1 / 3

Realisiere Dein Projekt

Bausubstanz und Energie

Energieausweis

A
  • Baujahr2025
  • Zustand der ImmobilieErstbezug
  • EnergieträgerLuft-/Wasser-Wärmepumpe
Immowelt logo

Preisdetails

Kaufpreis
272000 €
4.140,03 €/m²
Provision für Käufer
provisionsfrei
Geschätzte Gesamtkosten
291.040 €1
Kaufpreis
272.000 €
Notarkosten (1,5%)
4.080 €
Grunderwerbsteuer (5%)
13.600 €
Grundbucheintrag (0,5%)
1.360 €
1Der angezeigte Wert ist eine automatisch berechnete Schätzung von immowelt.
2Bei den Angaben handelt es sich um ortsübliche Werte. Individuelle Kosten können abweichen.

Lage

address-icon
Bahnhofstraße 6, Bitburg (54634)
Der Wohnpark "St. Maximin" ist fußläufig innerhalb von 5 Minuten vom Stadtzentrum aus erreichbar und durch eine schnelle Anbindung an die Bundesstraßen 50 / 51 sowie als Drehkreuz zu Trier und Luxemburg verkehrsgünstig gelegen. Im näheren Umfeld ist bereits ein umfangreiches Dienstleistungsangebot mit vielseitigen Einkaufsmöglichkeiten, Gastronomie sowie Sport- und Fitnesseinrichtungen vorhanden.

Weitere Informationen

Stichworte Anzahl Balkone: 1, 3 Etagen, Distanz zum Kindergarten: 0.20, Distanz zur Grundschule: 0.43, Distanz zur Realschule: 0.99, Distanz zum Gymnasium: 0.76, Distanz zum Flughafen: 58.00, Distanz zum Hauptbahnhof: 4.40, Distanz zur Autobahn: 7.71, Distanz zum Bus: 0.19, Distanz zur nächsten Gaststätte: 0.11, Distanz zur Hauptschule: 1.37

Weitere Services

Lust auf eine Besichtigung?
Eine Frage zur Immobilie?
Nachricht hinzufĂĽgen
Mit der Nutzung der oben angegebenen Telefonnummer oder durch Klicken auf „Kontaktieren“ akzeptierst Du die Allgemeinen Nutzungsbedingungen, denen Du jederzeit widersprechen kannst. Weitere Informationen zum Datenschutz

Ăśber den Anbieter

Eifel GmbH
Eifel GmbHMaklerbĂĽro
Ostallee 57, 54290 Trier
partner badge
Partnerschaft
Online-ID: 2m3j35s
Referenznummer: 2025-00176_6
Eifel GmbH
Eifel GmbH
Nachricht hinzufĂĽgen
Mit der Nutzung der oben angegebenen Telefonnummer oder durch Klicken auf „Kontaktieren“ akzeptierst Du die Allgemeinen Nutzungsbedingungen, denen Du jederzeit widersprechen kannst. Weitere Informationen zum Datenschutz
Wie zufrieden bist du mit dieser Seite (nicht mit der Immobilie selbst)?