Version: 8.25.1Navigation überspringen
Viktor Klapper GmbH
377.868 €
2 Zimmer  •  85 m²

Terrassenwohnung zum Kauf • provisionsfrei
377868 €
4.447 €/m²
2 Zimmer  •  85 m²

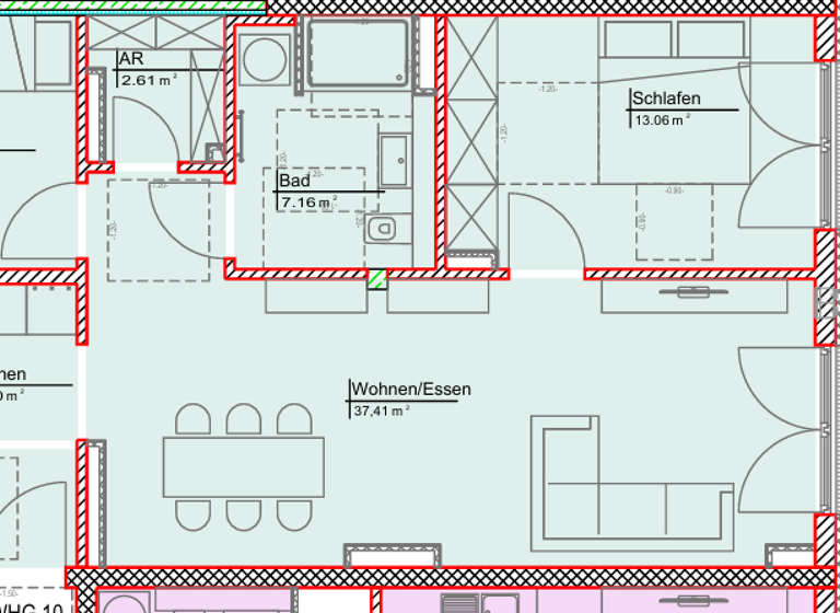
PROVISIONSFREI - Neubauwohnungen im Vierseithof Mankham: Whg. 10 - 3-Zi-Wohnung vor Alpen und Chiemsee

Die neu entstehende Wohnanlage im Ortsteil Mankham unweit von Tachterting mit insgesamt zwei mal 20 Wohnungen, Tiefgarage, Aufzügen, Balkonen, Loggien und Gartenanteilen ist ein schönes Beispiel wie ein Mehrfamilienhaus und ländliches Bauen und Wohnen vereint werden können. Die beiden Häuser sind wie ein Vierseithof arrangiert mit grünem Herzen und grüner Umgebung und Bergblick. Da lediglich zwei Vollgeschosse errichtet werden, fügt sich das Bauwerk harmonisch in das Ortsbild der schönen Gemeinde ein. Die große Tiefgarage mit Fahrradkeller und die Außenstellplätze bietet genug Platz für die Fahrzeuge der Bewohner. Stellplatz-Optionen: Tiefgaragen-Stellplatz: 20.000 Euro Außenstellplatz: 8.000 Euro Die Wohnung Nr. 10 besticht durch ihren großzügigen Grundriss. Insgesamt zwei Schlafzimmer, einen Sanitärraum, eine Kochnische sowie ein riesiger Wohn- und Essbereich runden neben dem schönen Gartenanteil das Paket ab.

Merkmale

  • Kochnische
  • Personenaufzug
  • Außen-Stellplatz, Tiefgarage
  • Gartenanteil
  • Terrasse
  • DSL-Anschluss

Grundrisse

Grundrisse
1 / 1

Realisiere Dein Projekt

Bausubstanz und Energie

Energieausweis

A
  • Baujahr2024
  • HaustypKfW 55
  • HeizungsartZentralheizung: Fußbodenheizung
  • EnergieträgerFernwärme
MediumRectangleTop

Preisdetails

Kaufpreis
377868 €
4.447,08 €/m²
Provision für Käufer
provisionsfrei
Geschätzte Gesamtkosten
398.650 €1
Kaufpreis
377.868 €
Notarkosten (1,5%)
5.668 €
Grunderwerbsteuer (3,5%)
13.225 €
Grundbucheintrag (0,5%)
1.889 €
1Der angezeigte Wert ist eine automatisch berechnete Schätzung von immowelt.
2Bei den Angaben handelt es sich um ortsübliche Werte. Individuelle Kosten können abweichen.

Lage

address-icon
MankhamMankhamFeichten an der Alz (84550)
Feichten an der Alz ist eine Gemeinde im oberbayerischen Landkreis Altötting und liegt nur gute 15 Minuten Autofahrt vom Chiemsee oder der österreichischen Grenze entfernt. In den Bergen ist man in ca. einer halben Stunde Fahrtzeit. Unmittelbar an den Ort schließt sich Tachterting westlich an, hier können bequem alle Besorgungen des täglichen Bedarfs erledigt werden. Im Süden liegen hintereinander die Städte Trostberg und Traunreut. Im Osten ist Kirchweidach nur einen Katzensprung entfernt und im Norden sind Garching an der Alz und Burgkirchen an der Alz die nächsten großen Ortschaften bevor man schließlich die berühmte Kreisstadt Altötting in gut 20 Minuten erreicht.

Weitere Informationen

Wir bitten von unangemeldeten Baustellenbegehungen aus Sicherheitsgründen Abstand zu nehmen. Besichtigungen können nach telefonischer Rücksprache jederzeit vereinbart werden. Auf Anfrage sind weitere Wohnungen in verschiedenen Größen verfügbar. Wir freuen uns auf Ihre Kontaktaufnahme!

Weitere Services

Lust auf eine Besichtigung?
Eine Frage zur Immobilie?
Nachricht hinzufügen
Mit der Nutzung der oben angegebenen Telefonnummer oder durch Klicken auf „Kontaktieren“ akzeptierst Du die Allgemeinen Nutzungsbedingungen, denen Du jederzeit widersprechen kannst. Weitere Informationen zum Datenschutz

Über den Anbieter

Mitterweg 14, 84339 Unterdietfurt
partner badge
6 Jahre Partnerschaft
Herr Viktor Klapper jun.
Herr Viktor Klapper jun.Dein Kontakt

Weitere Unterlagen

Online-ID: 2679I41L62JC
Referenznummer: Feichten - Wo. 10
Viktor Klapper GmbH
title
Viktor Klapper GmbH
Bewertung: 4,3 von 5 Sternen
Nachricht hinzufügen
Mit der Nutzung der oben angegebenen Telefonnummer oder durch Klicken auf „Kontaktieren“ akzeptierst Du die Allgemeinen Nutzungsbedingungen, denen Du jederzeit widersprechen kannst. Weitere Informationen zum Datenschutz
MediumRectangleTop
MediumRectangleBottom
MediumRectangleTop
Wie zufrieden bist du mit dieser Seite (nicht mit der Immobilie selbst)?