
REIMANN Immobilien
Frau Renate Reimann
(02 ···
Nr. anzeigenPreise & Kosten
Provision für Käufer
provisionsfrei
Abschreibung/Anlage
als Kapitalanlage geeignet
Lage
Bendorf-Sayn ist ein Stadtteil der Stadt Bendorf im Landkreis Mayen-Koblenz, gelegen am rechten Rheinufer zwischen Koblenz und Neuwied. Der Ort zeichnet sich durch seine ruhige, grüne Wohnlage und die Nähe zur Natur aus. Umgeben von Wäldern und dem Sayntal bietet Sayn einen hohen Freizeitwert mit zahlreichen Wander- und...
Die Wohnung
Wohnungslage
Erdgeschoss
Bezug
nach Vereinbarung
Derzeitige Nutzung
frei
Wohnanlage
Energie & Heizung
Warum sehe ich diese Anzeige? – Du siehst diese Anzeige basierend auf Ihrer Navigation auf unserer Website und den Suchkriterien, die du verwendet hast.
Energieausweistyp
Verbrauchsausweis
Gebäudetyp
Wohngebäude
Baujahr laut Energieausweis
1978
Wesentliche Energieträger
Strom
Gültigkeit
16.10.2018 bis 15.10.2028
Effizienzklasse
B
Endenergieverbrauch
68,90 kWh/(m²·a)
Weitere Energiedaten
Energieträger
Elektro
Heizungsart
Fußbodenheizung
Details
Objektbeschreibung
Wir bieten Ihnen hier eine Wohnung in einem Mehrfamilienhaus zum Kauf an.
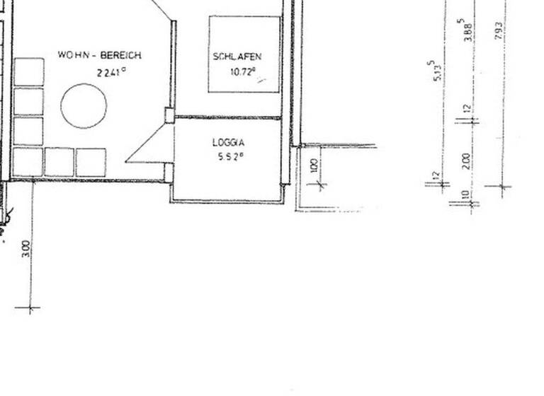
Die ca. 45 m² große Wohnung überzeugt mit einem durchdachten Grundriss: Sie verfügt über ein großzügiges Wohnzimmer mit direktem Zugang zur Loggia Balkon, ein Schlafzimmer und einen Flur der mit Einbauschränken ausgestattet ist.
Außerdem...
Ausstattung
Fenster: Die Fenster der Wohnung wurden im Sommer 2025 erneuert.
Böden: Die Böden sind gefliest oder mit Vinyl ausgelegt.
Heizung: Die Wohnung wird mit einer Fußbodenheizung die mit Strom betrieben beheizt.
Weitere Informationen
Sonstiges
Für das Objekt liegt ein Energieausweis nach EnEV 2014 vor. Dieser basiert auf dem tatsächlichen Energieverbrauch und weist einen Energieverbrauchskennwert von 68,90 kWh/(m²*a) aus. Der Energieverbrauch für Warmwasser ist hierin nicht enthalten. Dies entspricht der Energieeffizienzklasse B. Der wesentliche...
Anbieter der Immobilie

REIMANN Immobilien
Online-ID: 2m8ys56
Referenznummer: 473
Finde Angebote wie dieses
Hier geht es zu unserem Impressum, den Allgemeinen Geschäftsbedingungen, den Hinweisen zum Datenschutz und nutzungsbasierter Online-Werbung.