Version: 8.26.0Navigation überspringen
Sparkasse Harburg-Buxtehude, S-Immobilie
229.000 €
5 Zimmer  •  124 m²

Wohnung zum Kauf
229000 €
1.847 €/m²
5 Zimmer  •  124 m²

Wohnen mit viel Potenzial!

Diese großzügig geschnittene Eigentumswohnung befindet sich im 1. Obergeschoss eines Mehrfamilienhauses mit nur 3 Wohneinheiten aus dem Baujahr 1995. Mit einer Wohnfläche von ca.124,50 m², verteilt auf 5 Zimmer, bietet sie viel Raum für individuelle Gestaltung. Geheizt wird mittels Gaszentralheizung aus dem Jahr 2022. Zur Wohnung gehört ein Stellplatz. Die Wohnung ist aktuell vermietet.

Merkmale

  • Bezug: nach Vereinbarung
  • vermietet
  • Dachgeschoss
  • Einbauküche
  • Badezimmer: Badewanne, Bad mit Dusche, Bad mit Fenster
  • Bodenbelag: Parkett
  • Terrasse
  • Garten
Individuelle Ausstattungsmerkmale:

- teilweise renovierungsbedürftig

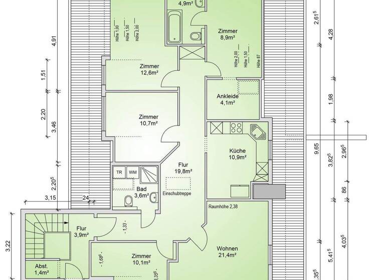
Diese Wohnung bietet großes Potenzial! Ein Highlight ist der durchdachte Grundriss dieser Wohnung - 5 Zimmer, die ideal als Schlafzimmer, Kinderzimmer oder Büro genutzt werden können. Und das Beste: Für Wellnessmomente nach einem langen Tag sorgen gleich zwei Bäder, eines mit Badewanne, das andere mit Dusche. Die funktionale Küche ist zeitlos gestaltet und bietet auch Platz für Sitzgelegenheiten. Ein weiteres Schmuckstück dieser Wohnung ist das Ankleidezimmer, in der die Garderobe übersichtlich geordnet ihren Platz finden kann. Die genaue Aufteilung der einzelnen Räume entnehmen Sie bitte der beigefügten Grundrisszeichnung. Neugierig geworden? Vereinbaren Sie gerne einen Besichtigungstermin, wir freuen uns auf Ihren Anruf!

Grundrisse

Grundrisse
1 / 1

Bausubstanz und Energie

Energieausweis

E
  • Baujahr1995
  • Zustand der ImmobilieMassivhaus
  • HeizungsartZentralheizung
  • EnergieträgerGas
MediumRectangleTop

Preisdetails

Kaufpreis
229000 €
1.846,77 €/m²
Provision für Käufer
3,57 % inkl. MwSt.
Weitere Preisinformationen
Soll-Mieteinnahmen pro Jahr: 10.200,00 EUR
Ist-Mieteinnahmen pro Jahr: 10.200,00 EUR
Geschätzte Gesamtkosten
253.205 €1
Kaufpreis
229.000 €
Notarkosten (1,5%)
3.435 €
Grunderwerbsteuer (5%)
11.450 €
Provision für Käufer (3,57%)
8.175 €
Grundbucheintrag (0,5%)
1.145 €
1Der angezeigte Wert ist eine automatisch berechnete Schätzung von immowelt.
2Bei den Angaben handelt es sich um ortsübliche Werte. Individuelle Kosten können abweichen.

Lage

address-icon
EckelRosengarten (21224)
Der Anbieter hat die genaue Adresse nicht freigegeben
Eckel ist ein Ortsteil der Gemeinde Rosengarten. Die direkte Umgebung ist geprägt durch eine typisch kleinteilige, gewachsene Bebauung, großzügige Grünflächen und alten Baumbestand. Im Nachbarort Klecken befinden sich zahlreiche Dienstleistungs- und Nahversorgungseinrichtungen. Auch ist dort ist ein moderner und großer Lebensmittelmarkt entstanden. Weitere Einkaufsmöglichkeiten finden sich in der nahegelegenen Stadt Buchholz, sowie in den Orten Hittfeld und Nenndorf, wo auch die Gemeindeverwaltung ansässig ist. Direkt in Eckel ist der Kindergarten und diverse Sport- und Freizeiteinrichtungen sind ebenfalls gut zu erreichen. Die Schulen finden Sie in Klecken. Trotz der ruhigen ländlichen Lage bietet sich durch die Autobahnen A1 (AS Dibbersen) und A7 (AS Hittfeld) eine optimale Anbindung in alle Richtungen. Ein besonderer Vorteil ist die nahegelegene Metronom-Haltestelle in Klecken. Mit dieser in den HVV eingebundenen Regionalbahn ist der Hamburger Hauptbahnhof in 18 Minuten erreichbar.

Weitere Informationen

Sonstiges VERBRAUCHERINFO
1. Maklerleistung ist der Nachweis der Gelegenheit zum Abschluss eines Vertrages bzw. Vermittlung eines Vertrages über eine Immobilie gegen die Courtagezahlungspflicht des Kunden
2. Unternehmer,Anschrift,Beschwerdeadressat
LBSi NordWest, Himmelreichallee 40, 48149 Münster, Tel:0251/973233-997, eMail:info@lbsi-nw.de
GF:Martin Englert, Volker Goldbeck
3. Es besteht ein Widerrufsrecht
4. Weitere Infos: verbraucherinfo.lbsi-nordwest.de

Verbraucherinformationen - http://verbraucherinfo.lbsi-nordwest.de Stichworte Anzahl der Badezimmer: 2, Anzahl Terrassen: 1, Bundesland: Niedersachsen

Weitere Services

Lust auf eine Besichtigung?
Eine Frage zur Immobilie?
Nachricht hinzufügen
Mit der Nutzung der oben angegebenen Telefonnummer oder durch Klicken auf „Kontaktieren“ akzeptierst Du die Allgemeinen Nutzungsbedingungen, denen Du jederzeit widersprechen kannst. Weitere Informationen zum Datenschutz

Über den Anbieter

Sand 2, 21073 Hamburg
Frau Josephine Ramm
Frau Josephine RammDein Kontakt

Weitere Unterlagen

Online-ID: 25VDGH737MAP
Referenznummer: 11347
MediumRectangleTop
Wie zufrieden bist du mit dieser Seite (nicht mit der Immobilie selbst)?