Version: 8.24.0Navigation ĂĽberspringen
775.000 €
3 Zimmer  â€˘  102 m²  â€˘  EG
Immowelt logo

Wohnung zum Kauf
775000 €
7.045 €/m²
3 Zimmer  â€˘  102 m²  â€˘  EG

Zentrale Zwei-Zimmer-Wohnung in Residenz mit Schwimmbad

Im Herzen von Desenzano, in einer der begehrtesten Gegenden der Stadt, bieten wir eine perfekte Wohnung für diejenigen zum Verkauf, die in direktem Kontakt mit dem See leben möchten, ohne auf die Annehmlichkeiten des Zentrums zu verzichten.
In einer modernen, eleganten und gepflegten Residenz mit Schwimmbad gelegen, ist diese neu gebaute Dreizimmerwohnung komplett bezugsfertig und ideal für diejenigen, die eine schlüsselfertige Lösung suchen. Die Lage ist einfach beneidenswert: sehr zentral und praktisch direkt am See, mit allen Dienstleistungen, Restaurants und Geschäften in Gehweite.
Die Wohnung befindet sich im Erdgeschoss. Die Innenräume sind groß und gut aufgeteilt, was bei neueren Bauten schwer zu finden ist: ein Detail, das dieses Angebot noch interessanter macht.

Die Wohnung besteht aus einem geräumigen Wohnbereich mit offener Küche, zwei Schlafzimmern und zwei Bädern.
Abgerundet wird das Angebot durch eine bequeme Privatgarage und den Zugang zu einem herrlichen Gemeinschaftsschwimmbad.
Eine ideale Immobilie sowohl als Hauptwohnsitz als auch als prestigeträchtige Ferieninvestition.

Hausnummer: DV-550

Desenzano del Garda wird allgemein als Hauptstadt des Gardasees bezeichnet, und das nicht zufällig. Es ist das lebendigste und vollständigste Zentrum des gesamten Gardaseebeckens, das in der Lage ist, die Eleganz der Seelandschaft mit einem reichen Angebot an Dienstleistungen, Infrastrukturen und Möglichkeiten zu verbinden, die es im Vergleich zu den anderen Städten am See einzigartig machen.
Hier finden Sie Schulen, ein Krankenhaus, einen Hochgeschwindigkeitsbahnhof sowie ein dichtes Netz von Geschäften, Restaurants, Vereinen und Sportanlagen, die zu jeder Jahreszeit ein komfortables, aktives und hochwertiges Lebensgefühl garantieren. Der historische Hafen, die belebten Plätze, das malerische Schloss und die Seepromenade zeugen von der historischen Seele der Stadt, während Veranstaltungen, Märkte und kulturelle Aktivitäten die Dynamik und Gastfreundschaft der Stadt unterstreichen.
Desenzano ist nicht nur ein touristisches Ziel, sondern ein echter Bezugspunkt für alle, die ein perfektes Gleichgewicht zwischen Schönheit, Dienstleistungen und Lebensqualität im Herzen einer der faszinierendsten Gegenden Italiens suchen.

Merkmale

  • Erdgeschoss
  • Personenaufzug
  • Bidet
  • Terrasse
  • Fernblick
  • möbliert
  • Bad mit Dusche

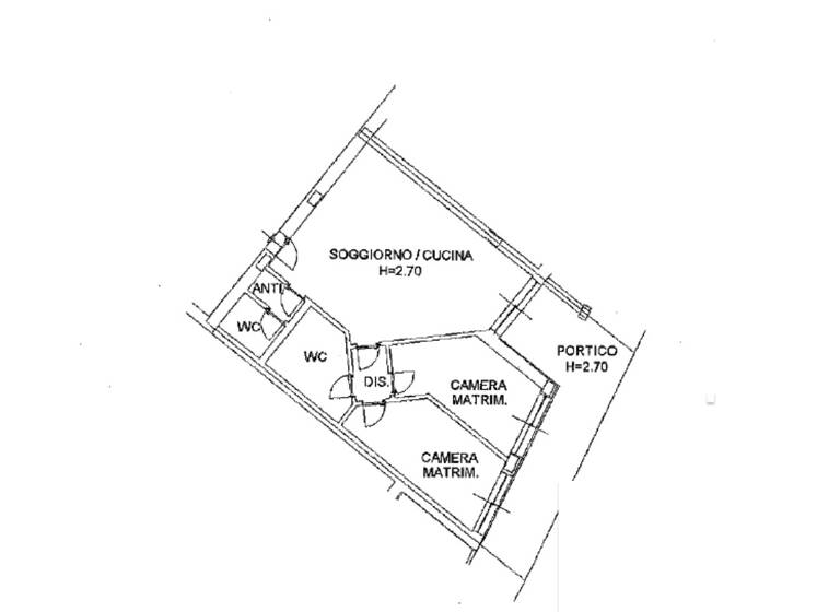
Grundrisse

Grundrisse
1 / 2

Virtueller Rundgang

Video

Realisiere Dein Projekt

Bausubstanz und Energie

Der Anbieter hat keine Informationen zum Energieverbrauch bereit gestellt.
  • Baujahr2024
  • HeizungsartFuĂźbodenheizung
  • EnergieträgerLuft-/Wasser-Wärmepumpe
Immowelt logo

Preisdetails

Kaufpreis
775000 €
7.045,45 €/m²
Hausgeld
100 €
Provision für Käufer
ja maklerprovision im Preis nicht inbegriffen inkl. MwSt.

Lage

address-icon
Desenzano del Garda (25015)
Der Anbieter hat die genaue Adresse nicht freigegeben

Weitere Informationen

Sonstiges Vi accompagneremo personalmente agli immobili su appuntamento e saremo al vostro fianco come partner forte e competent durante l'intero processo di acquisto della vostra proprietà. Con noi non scendete a compromessi e non lasciate nulla al caso. Per noi il servizio completo non è solo una parola, ma una filosofia aziendale. Vi sosteniamo attivamente e superiamo tutte le barriere linguistiche e culturali nel percorso verso la proprietà dei vostri sogni sul Lago di Garda. Stichworte Garage vorhanden, Nutzfläche: 110,00 m², Grundstücksfläche: 15,00 m², Verkaufsfläche: 110,00 m², Anzahl der Schlafzimmer: 2, Anzahl der Badezimmer: 2, Anzahl Terrassen: 1, Anzahl der Wohneinheiten: 20, Bundesland: Lombardia, 1 Etagen

Weitere Services

Lust auf eine Besichtigung?
Eine Frage zur Immobilie?
Nachricht hinzufĂĽgen
Mit der Nutzung der oben angegebenen Telefonnummer oder durch Klicken auf „Kontaktieren“ akzeptierst Du die Allgemeinen Nutzungsbedingungen, denen Du jederzeit widersprechen kannst. Weitere Informationen zum Datenschutz

Ăśber den Anbieter

Garda Haus Srl
Garda Haus SrlMaklerbĂĽro
Via Meucci 77, 25080 PADENGHE SUL GARDA
partner badge
Partnerschaft
Frau Olga Heller
Frau Olga HellerDein Kontakt
Online-ID: 2lmg45p
Referenznummer: DV-550
Garda Haus Srl
title
Garda Haus Srl
Nachricht hinzufĂĽgen
Mit der Nutzung der oben angegebenen Telefonnummer oder durch Klicken auf „Kontaktieren“ akzeptierst Du die Allgemeinen Nutzungsbedingungen, denen Du jederzeit widersprechen kannst. Weitere Informationen zum Datenschutz
Wie zufrieden bist du mit dieser Seite (nicht mit der Immobilie selbst)?