

Wohnung zum Kauf279000 €3.013 €/m²3 Zimmer • 92,6 m² • frei ab 01.06.2026
279000 €
3.013 €/m²
3 Zimmer • 92,6 m² • frei ab 01.06.2026
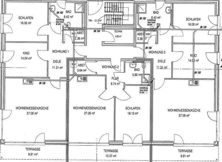
Langwedel| Moderne 3-Zimmer-Erdgeschosswohnung mit Terrasse (Wohnung 1)
Merkmale
- frei ab 01.06.2026
- Lastenaufzug
- Terrasse
Grundrisse
Grundrisse
1 / 1
Realisiere Dein Projekt
Bausubstanz und Energie
Energieausweis
A
- Baujahr2017
- Zustand der ImmobilieMassivhaus
- EnergieträgerGas
Preisdetails
Kaufpreis
279000 €
3.012,96 €/m²
Provision für Käufer
3,57% inkl. MwSt.
Weitere Preisinformationen
Ist-Mieteinnahmen pro Jahr: 12.000,00 EUR
Geschätzte Gesamtkosten
308.490 €1
Kaufpreis
279.000 €
Kaufnebenkosten
29.490 €
2Notarkosten (1,5%)
4.185 €
Grunderwerbsteuer (5%)
13.950 €
Provision für Käufer (3,57%)
9.960 €
Grundbucheintrag (0,5%)
1.395 €
1Der angezeigte Wert ist eine automatisch berechnete Schätzung von immowelt.
2Bei den Angaben handelt es sich um ortsübliche Werte. Individuelle Kosten können abweichen.
Lage

Daverden, Langwedel (27299)
Der Anbieter hat die genaue Adresse nicht freigegeben
Weitere Informationen
Weitere Services
Lust auf eine Besichtigung?
Eine Frage zur Immobilie?
Ăśber den Anbieter
Aller Weser Immobilien GmbH & Co.KGMaklerbĂĽro
Bahnhofstrasse 52, 28832 Achim
Partnerschaft
Herr Wilken DankleffDein Kontakt
Online-ID: 2n67g5m
Referenznummer: WDWG001

Aller Weser Immobilien GmbH & Co.KG
Wie zufrieden bist du mit dieser Seite (nicht mit der Immobilie selbst)?

