
KLAUS Wohnbau GmbH
+49 ···
Nr. anzeigenDieses Angebot ist Teil des Neubauprojekts
ZUG5PITZ
Preise & Kosten
Provision für Käufer
Bitte beachte, das Angebot kann bei Vertragsabschluss die Zahlung einer Provision beinhalten. Weitere Informationen erhältst Du vom Anbieter.
Lage
HARMONISCH ZWISCHEN ZWEI WELTEN GELEGEN
Nachhaltig, grün und dennoch urban: Die Lage im Augsburger Stadtteil Hochzoll vereint die Vorzüge städtischer Infrastruktur mit einer naturnahen Lage von hohem Freizeitwert.
Das neue Wohnprojekt ZUG5PITZ von KLAUS Wohnbau bietet eine attraktive Wohnlage, in der Sie von den...
Die Wohnung
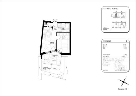
Wohnungslage
Erdgeschoss
Wohnanlage
Das Neubauprojekt
Weitere Einheiten des Projekts
Energie & Heizung
Warum sehe ich diese Anzeige? – Du siehst diese Anzeige basierend auf Ihrer Navigation auf unserer Website und den Suchkriterien, die du verwendet hast.
Energieausweistyp
Bedarfsausweis
Gebäudetyp
Wohngebäude
Wesentliche Energieträger
Holzpellets
Gültigkeit
23.09.2024 bis 23.09.2034
Weitere Energiedaten
Energieträger
Pellets
Heizungsart
Fußbodenheizung
Details
Objektbeschreibung
ZUG5PITZ - WOHNEN IN AUGSBURG-HOCHZOLL
In den 36 Wohnungen des ZUG5PITZ finden unterschiedlichste Bedürfnisse ihren Raum: Ob Sie sich mit Ihrer Familie ein neues Zuhause schaffen wollen, ein barrierefreies Domizil für Ihr Alter suchen oder einfach eine moderne Wohnung in sehr guter Lage beziehen wollen - im ZUG5PITZ...
Ausstattung
DIE AUSSTATTUNG:
ANSPRUCHSVOLL UND ZUKUNFTSWEISEND
Alle Wohnungen im neuen ZUG5PITZ bieten eine hochwertige Ausstattung und moderne Designelemente. Hervorragende Isolierungen, natürliche Materialien und nachhaltige Funktionselemente wie Wohnraumlüftungen mit Wärmerückgewinnung sorgen für zukunftsgerechte...
Weitere Informationen
Sonstiges
Angaben zum Energieausweis:
Bedarfsausweis | Bj:2022 | Kennwert Haus A+B: 54,4 kWh / m²a, Haus C+D 67,6 kWh/m2a | EEK: B | Energieträger: Pelletheizung mit Solarthermie
Stichworte
Anzahl der Badezimmer: 1, Anzahl Terrassen: 1, Flur: 3003/5 und 3003/7, Gemarkung: Hochzoll, Wohnungsnr.: A02-00, im...
Dokumente
Anbieter der Immobilie
Weitere Angebote des Anbieters
Online-ID: 2d2rc5r
Referenznummer: 279-415