
Wohnbau Birkenmaier GmbH & Co. KG
070 ···
Nr. anzeigenDieses Angebot ist Teil des Neubauprojekts
Beurener Straße 17 + 19 in Owen
Preise & Kosten
Provision für Käufer
Bitte beachte, das Angebot kann bei Vertragsabschluss die Zahlung einer Provision beinhalten. Weitere Informationen erhältst Du vom Anbieter.
Lage
In der Beurener Straße in Owen erstellen wir zwei attraktive Mehrfamilienhäuser in ansprechender, moderner Architektur.
Von den Terrassen und Balkonen hat man eine herrliche Aussicht in Richtung Schwäbische Alb und zur Burg Teck.
In unmittelbarer Nähe befinden sich verschiedene Einkaufsmöglichkeiten, darunter ein...
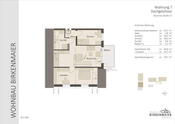
Die Wohnung
Wohnungslage
2. Geschoss
Bezug
Sommer 2027
Wohnanlage
Das Neubauprojekt
Weitere Einheiten des Projekts
Details
Objektbeschreibung
- 3-Zimmer-Masionette-Wohnung in Südausrichtung
- Gehobene Ausstattung mit Fußbodenheizung und hochwertigen Bodenbelägen
- Balkon
- Empore
- Gemeinsame Tiefgarage mit direktem Zugang zu beiden Treppenhäusern
- Hausmeisterservice
- KfW-55-Standard
- sparsame Luft-Wasser-Wärmepumpenheizung
- sehr guter...
Ausstattung
Fenster: Kunststofffenster mit Dreischeiben-Isolierverglasung
Sonnenschutz: Wohnungsfenster erhalten Rollläden mit elektrischem Antrieb, ausgenommen Flachdachfenster, Erkerfenster und Dachfenster Nord
Eingangstür: Holztüre, Schallschutzelement nach DIN 4109, Dreifachverriegelung, Türspion
Aluminiumtüre...
Weitere Informationen
Stichworte
Ergänzendes dezentrales Warmwasser, Anzahl der Schlafzimmer: 2, Anzahl der Badezimmer: 1, Anzahl Balkone: 1, Bundesland: Baden-Württemberg, 3 Etagen
Anbieter der Immobilie

Wohnbau Birkenmaier GmbH & Co. KG
Weitere Angebote des Anbieters
Online-ID: 2j7ky5h
Referenznummer: 162007