

CUBION Immobilien AG
Herr Niklas Klein
+49 ···
Nr. anzeigenPreise & Kosten
Provision für Mieter
provisionsfrei
Warum sehe ich diese Anzeige? – Du siehst diese Anzeige basierend auf Ihrer Navigation auf unserer Website und den Suchkriterien, die du verwendet hast.
Lage
Mitten im Herzen Dortmunds: Die Innenstadt ist das pulsierende Zentrum der Ruhrmetropole und bietet eine erstklassige Lage für Unternehmen, die Wert auf Sichtbarkeit, Kundenfrequenz und kurze Wege legen. Zahlreiche Einkaufsstraßen mit hoher Passantenfrequenz, ein vielfältiges Gastronomie- und Caféangebot sowie sämtliche...
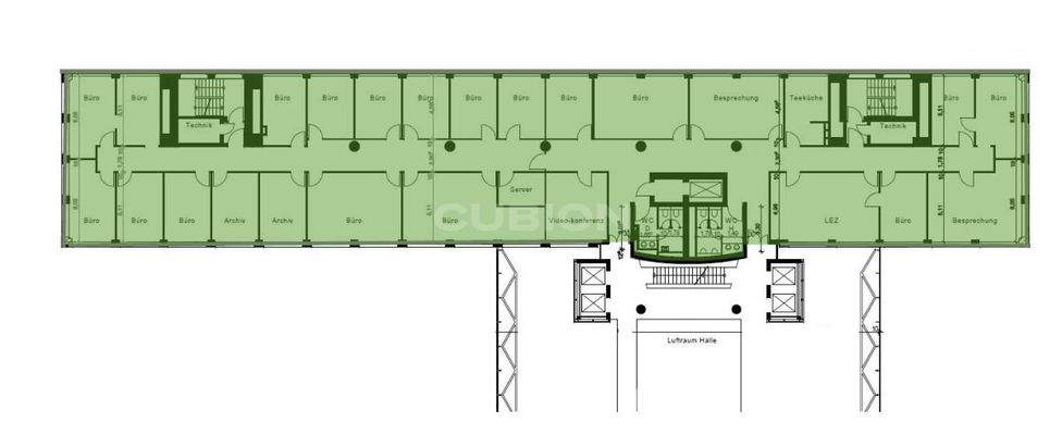
Büro-/Praxisfläche
Baujahr
1994
Bezug
nach Vereinbarung
Energie & Heizung
Warum sehe ich diese Anzeige? – Du siehst diese Anzeige basierend auf Ihrer Navigation auf unserer Website und den Suchkriterien, die du verwendet hast.
Weitere Energiedaten
Energieträger
Fernwärme
Details
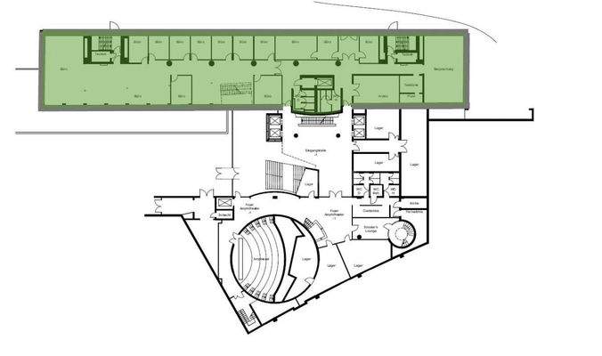
Objektbeschreibung
Das Harenberg City Center ist nicht nur eines der höchsten Gebäude Dortmunds, es besticht auch durch spektakuläre Architektur, anspruchsvolles Design und Flexibilität bis in das oberste Stockwerk.
Die insgesamt 18 oberirdischen Geschosse des Hauptgebäudes verfügen neben zahlreichen Büroeinheiten u. a. auch über Lounges...
Ausstattung
Bodenbelag: nach Mieterwunsch
EDV-Verkabelung: Mietersache
Kabelführung: Hohlraumboden (Bodentanks)
Kühlung: Vollklimatisierung
Sonnenschutz: Blendschutz (innen)
Küche: vom Vormieter
Beleuchtung: Deckenleuchten
Aufzug: Personenaufzug
Empfang: 24 Stunden besetzt
Heizung: Fernwärme
Barrierearm...
Weitere Informationen
Sonstiges
GEG 2020: Ein Energieausweis liegt zurzeit nicht vor.
Dieses Angebot ist provisionsfrei für den Mieter!
Alle Informationen in diesem Exposé beruhen auf Angaben, die wir vom Vermieter erhalten haben. Für Richtigkeit und Vollständigkeit übernehmen wir keine Gewähr. Zwischenvermietung vorbehalten...
Anbieter der Immobilie

CUBION Immobilien AG
Akazienallee 65, 45478 Mülheim

Weitere Angebote des Anbieters
Online-ID: 2kf9k5d
Referenznummer: 1140/G1/E11