
Raiffeisenbank Ems-Vechte eG
Herr Bernd Sieve
Kontaktiere den Anbieter schriftlich, es ist keine Telefonnummer hinterlegt.
Preise & Kosten
Provision für Käufer
provisionsfrei
Lage
Der Waterender Weg 4 liegt im lebendigen Stadtteil Donnerschwee in Oldenburg, nur etwa 2 Kilometer nordöstlich der Innenstadt. Die Lage bietet eine gute Verkehrsanbindung über die Donnerschweer Straße sowie eine schnelle Erreichbarkeit der Autobahnen A28 und A29. Einkaufsmöglichkeiten, Schulen und öffentliche Verkehrsmittel...
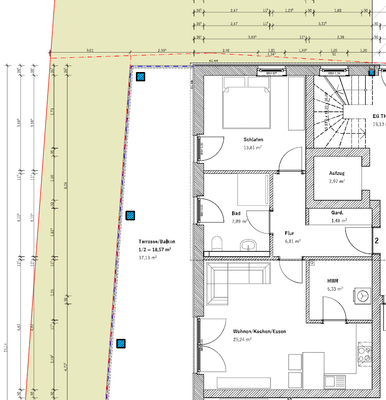
Die Wohnung
Kategorie
Apartment
Wohnungslage
1. Geschoss
Wohnanlage
Energie & Heizung
Warum sehe ich diese Anzeige? – Du siehst diese Anzeige basierend auf Ihrer Navigation auf unserer Website und den Suchkriterien, die du verwendet hast.
Energieausweistyp
Bedarfsausweis
Gebäudetyp
Wohngebäude
Baujahr laut Energieausweis
2025
Wesentliche Energieträger
Strom
Gültigkeit
18.01.2022 bis 17.01.2032
Effizienzklasse
A+
Endenergiebedarf
17,50 kWh/(m²·a)
Weitere Energiedaten
Energieträger
Elektro
Details
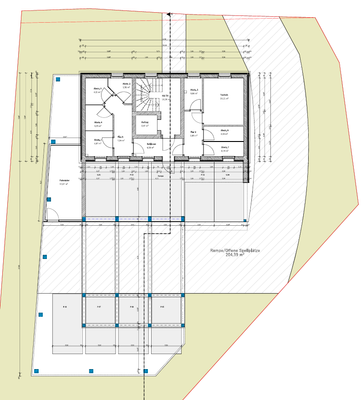
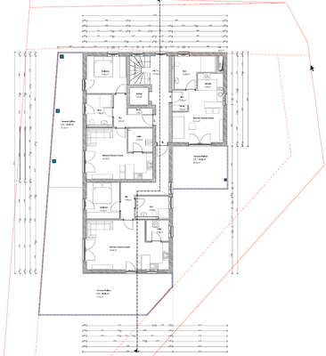
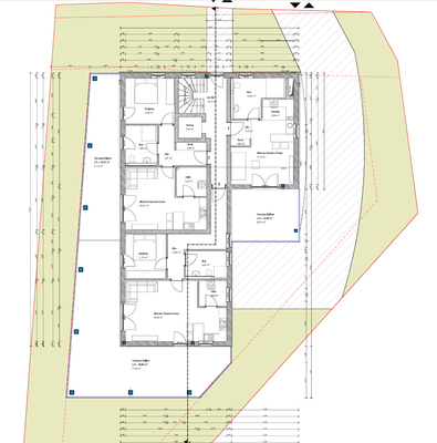
Objektbeschreibung
Moderne Erdgeschosswohnung mit großem Balkon - Effizientes Wohnen im KfW-55-EE-Haus
Diese stilvolle Erdgeschosswohnung Nr. 2 vereint modernes Wohnen mit hoher Energieeffizienz und bietet eine attraktive Wohnfläche von ca. 79,13 qm. Sie befindet sich in einem zeitgemäßen KfW-55-EE-Energieeffizienzhaus und überzeugt...
Ausstattung
Weitere Informationen erhalten Sie gerne auf Anfrage.
Die in diesem Exposé enthaltenen Angaben beruhen auf Informationen des Eigentümers und dienen ausschließlich der unverbindlichen Vorabinformation. Für die Richtigkeit und Vollständigkeit wird keine Haftung übernommen. Irrtum und Zwischenverkauf vorbehalten.
Preisinformation
1 Stellplatz
Weitere Informationen
Stichworte
Stellplatz vorhanden, Anzahl der Schlafzimmer: 1, Anzahl der Badezimmer: 1, Anzahl Balkone: 1, 3 Etagen
Dokumente
Anbieter der Immobilie
Raiffeisenbank Ems-Vechte eG
Sögeler Str. 2 , 49777 Klein Berßen
Herr Bernd Sieve
Dein Ansprechpartner
Kontaktiere den Anbieter schriftlich, es ist keine Telefonnummer hinterlegt.
Weitere Angebote des Anbieters
Online-ID: 2k8fc5s
Referenznummer: 160#PTgVS